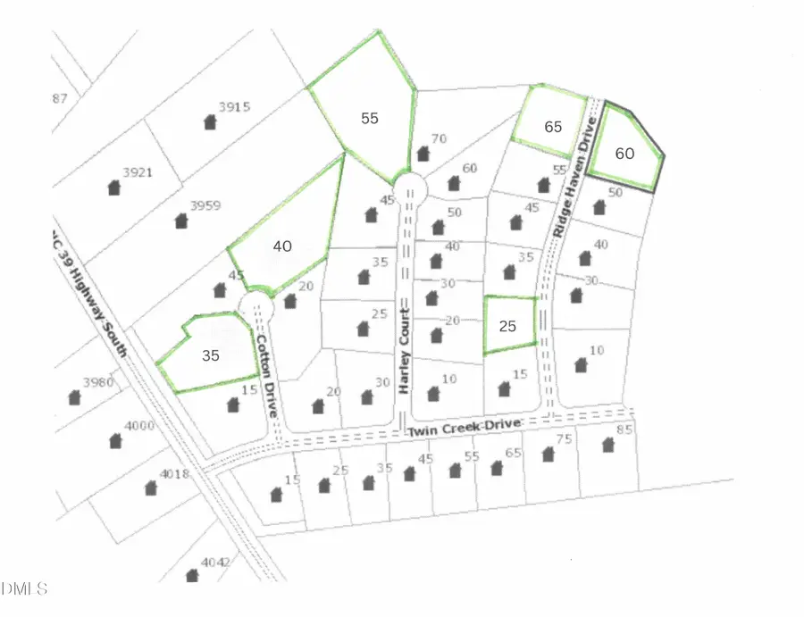
60 Ridge Haven Drive, Louisburg, NC 27549

Local realty services provided by:CENTURY 21 Total Real Estate Solutions
60 Ridge Haven Drive,Louisburg, NC 27549
$40,000
  • 0.82 Acres
  • Lots / Land
  • Pending
Listed by: katherine falk, mary welch
Office: carolina life & homes realty l
MLS#:10138905
Source:RD

Price summary

  • Price:$40,000

About this home

Large level lot ready for building! Wooded and in a great established subdivision. Bring your own builder or use our recommended!

Contact an agent

contact an agent

Yes, I would like more information. Please use and/or share my information with an independent agent affiliated with the CENTURY 21®  brand to contact me about my real estate needs. By clicking Send message, I request to be contacted by phone or text message and consent to being contacted by automated means. I understand that my consent to receive calls or texts is not a condition of purchasing any property, goods, or services. Alternatively, I understand that I can access real estate services by email or I can contact the agent myself.

If an independent agent affiliated with the CENTURY 21®  brand is not available in the area where I need assistance, I agree to be contacted by a real estate agent affiliated with another brand owned or licensed by Anywhere Real Estate (BHGRE® , Coldwell Banker® , Corcoran® , ERA® , Sotheby's International Realty® ).
 I acknowledge that I have read and agree to theTerms of useandPrivacy notice

Home facts

  • Listing ID #:10138905
  • Added:14 day(s) ago
  • Updated:January 15, 2026 at 02:43 AM

Structure and exterior

  • Lot area:0.82 Acres

Schools

  • High school:Franklin - Bunn
  • Middle school:Franklin - Bunn
  • Elementary school:Franklin - Royal

Utilities

  • Water:Public, Water Available
  • Sewer:Septic Needed

Finances and disclosures

  • Price:$40,000
  • Tax amount:$410
MLS LogoListings marked with a Doorify MLS icon are provided courtesy of the Doorify MLS, of North Carolina, Internet Data Exchange Database. Brokers make an effort to deliver accurate information, but buyers should independently verify any information on which they will rely in a transaction. The listing broker shall not be responsible for any typographical errors, misinformation, or misprints, and they shall be held totally harmless from any damages arising from reliance upon this data. This data is provided exclusively for consumers’ personal, non-commercial use. Copyright 2026 Doorify MLS of North Carolina. All rights reserved.