4620 Sams Road, Mebane, NC 27302

Local realty services provided by:CENTURY 21 Total Real Estate Solutions
4620 Sams Road,Mebane, NC 27302
$200,000
  • 3 Beds
  • 1 Baths
  • 1,184 sq. ft.
  • Single family
  • Pending
Listed by: dianne gray, dana wicker cantrell
Office: coldwell banker - hpw
MLS#:10116861
Source:RD

Price summary

  • Price:$200,000
  • Price per sq. ft.:$168.92

About this home

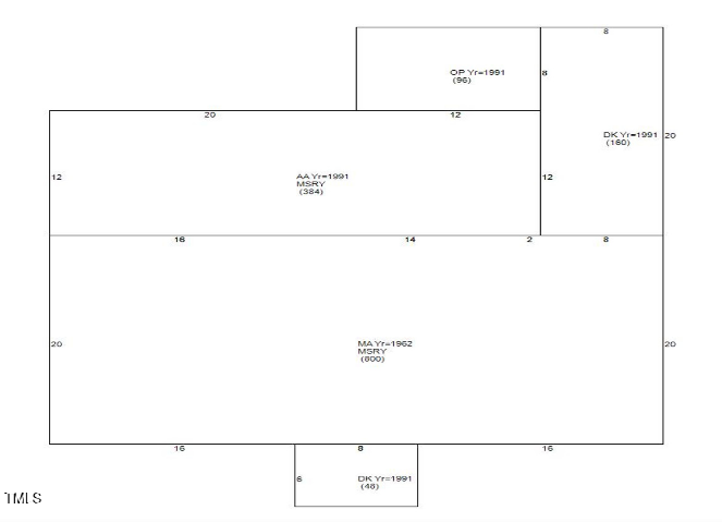
Live in the country yet be close to all the shopping and recreation in Mebane, Hillsborough, Saxapahaw & Chapel Hill. Sweet, natural setting at the end of a short street.Bring new life to this beautiful 2+ acre parcel and 1957 home with 3 bedrooms and 1 bath awaiting your vision. Walls around half bath were removed with fixtures to create ensuite bath for the new primary bedroom. Finish the attic space to add to this 1187 Sq ft home. OR, tear down and build YOUR dream! PLEASE USE CAUTION IF YOU ENTER THE HOME. Call Orange County school board to verify schools,

Contact an agent

contact an agent

Yes, I would like more information. Please use and/or share my information with an independent agent affiliated with the CENTURY 21®  brand to contact me about my real estate needs. By clicking Send message, I request to be contacted by phone or text message and consent to being contacted by automated means. I understand that my consent to receive calls or texts is not a condition of purchasing any property, goods, or services. Alternatively, I understand that I can access real estate services by email or I can contact the agent myself.

If an independent agent affiliated with the CENTURY 21®  brand is not available in the area where I need assistance, I agree to be contacted by a real estate agent affiliated with another brand owned or licensed by Anywhere Real Estate (BHGRE® , Coldwell Banker® , Corcoran® , ERA® , Sotheby's International Realty® ).
 I acknowledge that I have read and agree to theTerms of useandPrivacy notice

Home facts

  • Year built:1957
  • Listing ID #:10116861
  • Added:252 day(s) ago
  • Updated:April 30, 2026 at 07:30 AM

Rooms and interior

  • Bedrooms:3
  • Total bathrooms:1
  • Full bathrooms:1
  • Rooms Total:3
  • Living area:1,184 sq. ft.

Heating and cooling

  • Heating:Fireplace(s)

Structure and exterior

  • Roof:Shingle
  • Year built:1957
  • Building area:1,184 sq. ft.
  • Lot area:2.3 Acres
  • Architectural Style:Ranch
  • Construction Materials:Frame
  • Foundation Description:Brick/Mortar, Other
  • Levels:One

Schools

  • High school:Orange - Cedar Ridge
  • Middle school:Orange - Gravelly Hill
  • Elementary school:Orange - Efland Cheeks

Utilities

  • Water:Well
  • Sewer:Septic Tank

Finances and disclosures

  • Price:$200,000
  • Price per sq. ft.:$168.92
  • Tax amount:$482
MLS LogoListings marked with a Doorify MLS icon are provided courtesy of the Doorify MLS, of North Carolina, Internet Data Exchange Database. Brokers make an effort to deliver accurate information, but buyers should independently verify any information on which they will rely in a transaction. The listing broker shall not be responsible for any typographical errors, misinformation, or misprints, and they shall be held totally harmless from any damages arising from reliance upon this data. This data is provided exclusively for consumers’ personal, non-commercial use. Copyright 2026 Doorify MLS of North Carolina. All rights reserved.