1012 Croaker Court, New Bern, NC 28562
Local realty services provided by:CENTURY 21 Triangle Group
1012 Croaker Court,New Bern, NC 28562
$410,000
- 4 Beds
- 3 Baths
- 2,618 sq. ft.
- Single family
- Pending
Listed by: jeremy smith, kayla caudel
Office: keller williams realty
MLS#:100568366
Source:NC_CCAR
Price summary
- Price:$410,000
- Price per sq. ft.:$156.61
About this home
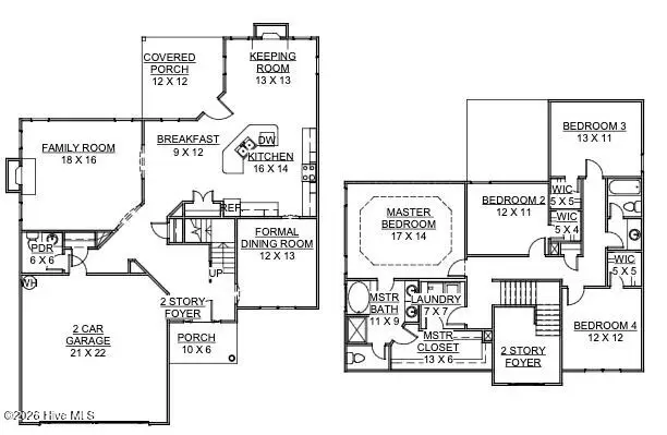
''Palomar'' floor plan is under construction in the new Atlas Valley Phase at Bluewater Rise. $10,000 buyers closing cost incentive w/ use of preferred lender & attorney! Contract early & make full design center color selections. This impressive floor plan features a two-story foyer entry, large family room, formal dining room, and open kitchen area w/ breakfast nook and keeping room w/ gas log fireplace. Granite counter tops & covered back porch. Quick commute to Cherry Point MCAS and Downtown New Bern.
Contact an agent
Home facts
- Year built:2026
- Listing ID #:100568366
- Added:2 day(s) ago
- Updated:April 23, 2026 at 07:46 AM
Rooms and interior
- Bedrooms:4
- Total bathrooms:3
- Full bathrooms:2
- Half bathrooms:1
- Rooms Total:10
- Flooring:Carpet, Tile
- Bathrooms Description:Walk-in Shower
- Kitchen Description:Dishwasher, Disposal, Pantry
- Bedroom Description:Walk-In Closet(s)
- Living area:2,618 sq. ft.
Heating and cooling
- Cooling:Heat Pump, Zoned
- Heating:Electric, Heat Pump, Heating, Zoned
Structure and exterior
- Roof:Architectural Shingle
- Year built:2026
- Building area:2,618 sq. ft.
- Lot area:0.19 Acres
- Lot Features:Interior Lot
- Construction Materials:Stone, Vinyl Siding, Wood Frame
- Exterior Features:Covered, Porch
- Foundation Description:Slab
- Levels:2 Story
Schools
- High school:New Bern
- Middle school:Grover C.Fields
- Elementary school:Creekside Elementary School
Utilities
- Water:Water Connected
- Sewer:Sewer Connected
Finances and disclosures
- Price:$410,000
- Price per sq. ft.:$156.61
Features and amenities
- Appliances:Dishwasher, Disposal
- Laundry features:Laundry Room
- Amenities:Ceiling Fan(s), Management, Solid Surface, Tray Ceiling(s), Walk-In Closet(s)
Parking
- Total parking spaces:2
- Parking description:Attached Garage, Concrete, Garage Door Opener, On Site
- Garage:Yes
New listings near 1012 Croaker Court
- New
$265,000Active3 beds 2 baths1,457 sq. ft.1311 Pelican Drive, New Bern, NC 28560
MLS# 100569084Listed by: COLDWELL BANKER SEA COAST ADVANTAGE - New
$470,000Active3 beds 3 baths2,569 sq. ft.2514 Hickory Street, New Bern, NC 28562
MLS# 100569113Listed by: KELLER WILLIAMS REALTY - Open Sat, 10am to 12pmNew
$375,000Active3 beds 2 baths1,456 sq. ft.510 George Street, New Bern, NC 28560
MLS# 100569054Listed by: REALTY ONE GROUP EAST - Open Sat, 10am to 12pmNew
$250,000Active2 beds 2 baths1,152 sq. ft.508 George Street #A, New Bern, NC 28560
MLS# 100569058Listed by: REALTY ONE GROUP EAST - New
$220,000Active2 beds 1 baths840 sq. ft.315 River Walk, New Bern, NC 28560
MLS# 100568993Listed by: COLDWELL BANKER SEA COAST ADVANTAGE - New
$200,000Active2 beds 2 baths960 sq. ft.3414 Elizabeth Avenue, New Bern, NC 28562
MLS# 100569000Listed by: KELLER WILLIAMS REALTY - New
$425,000Active4 beds 3 baths2,900 sq. ft.113 Sidler Street, New Bern, NC 28562
MLS# 100569011Listed by: KELLER WILLIAMS REALTY - New
$350,000Active3 beds 3 baths2,268 sq. ft.1015 Montford Drive, New Bern, NC 28562
MLS# 100568974Listed by: RE/MAX OCEAN PROPERTIES EI - New
$336,990Active3 beds 2 baths1,618 sq. ft.4063 Topsail Trail, New Bern, NC 28560
MLS# 100568800Listed by: D.R. HORTON, INC. - New
$356,490Active3 beds 3 baths2,164 sq. ft.4067 Topsail Trail, New Bern, NC 28560
MLS# 100568819Listed by: D.R. HORTON, INC.