4601 Timbermill Court #303, Raleigh, NC 27612
Local realty services provided by:CENTURY 21 Triangle Group
4601 Timbermill Court #303,Raleigh, NC 27612
$225,000
- 2 Beds
- 2 Baths
- 1,061 sq. ft.
- Condominium
- Active
Listed by: suzanne coan
Office: wieland properties, inc.
MLS#:10155952
Source:RD
Price summary
- Price:$225,000
- Price per sq. ft.:$212.06
- Monthly HOA dues:$300
About this home
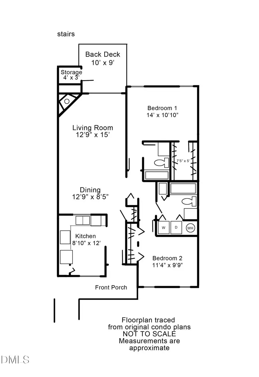
Welcome to the top floor in a phenomenal LOCATION! Only one flight of stairs gets you the top level condo with vaulted ceilings, and views of the trees! QUIET 2 bed/2 bath move-in ready condo with lots of extra features. Come in from the front porch you can personalize, through the storm door and front door to a little foyer before accessing the rest of the space. To your left is a great cook's kitchen with white painted cabinets and newer stainless appliances: fridge ('22), smooth-top stove with convection oven & air-fry setting, microwave ('21), dishwasher with stainless tub, 3 levels and even a light inside. The kitchen is light-filled, with luxury vinyl plank floors, privacy film on the windows, pantry and a place for a small table. Laminate counters and a pass-through to the large living/dining area over the double-bowled sink with high-arc faucet. The dining area currently has a large built-in desk and Google Fiber access. The living room has a vaulted ceiling, ceiling fan, wood-burning fireplace (seller has not used) with blower fan, and remote-controlled wi-fi window coverings for the sliding glass door. That door opens to a generous deck and rare (for condos) second-egress set of stairs, along with an exterior storage closet. The view is high and wooded, a great get-away. Next to the living room is a bedroom with walk-in closet, remote wi-fi window shades and attached bath with tub/shower combo. The other guest bath is large, with Samsung washer and dryer conveying to the next buyers. Behind that bath is the second bedroom with a double-door large closet, two windows, and a sunny view. A coat closet and linen closet provide extra storage. HVAC was manufactured in 2021/2022, roofs were replaced sometime recently (check with HOA for exact date on this building), State water heater date code is 2024. Nest programmable thermostat included. HOA dues cover maintenance of the building and grounds, so you can have a turn-key lifestyle! Tennis and pickleball courts, as well as a pool are part of your $300/month dues. Harris Teeter is less than 5 minutes away, and nearly as close is UNC/Rex, access to I-440 and I-40, Lenovo Center and the Fairgrounds, as well as the NC Museum of Art. Less than 15 min to RDU. The location CANNOT be beat....
Contact an agent
Home facts
- Year built:1985
- Listing ID #:10155952
- Added:8 day(s) ago
- Updated:April 05, 2026 at 02:58 PM
Rooms and interior
- Bedrooms:2
- Total bathrooms:2
- Full bathrooms:2
- Rooms Total:4
- Flooring:Carpet, Vinyl
- Dining Description:Living/Dining Room Combination
- Bathrooms Description:Bathtub/Shower Combination
- Kitchen Description:Dishwasher, Disposal, Electric Water Heater, Free-Standing Electric Range, Free-Standing Refrigerator, Microwave, Self Cleaning Oven, Stainless Steel Appliance(s)
- Living area:1,061 sq. ft.
Heating and cooling
- Cooling:Heat Pump
- Heating:Heat Pump
Structure and exterior
- Roof:Shingle
- Year built:1985
- Building area:1,061 sq. ft.
- Architectural Style:Transitional
- Construction Materials:Wood Siding
- Exterior Features:Balcony, Rear Porch
- Foundation Description:Other
- Levels:One
Schools
- High school:Wake County Schools
- Middle school:Wake County Schools
- Elementary school:Wake County Schools
Utilities
- Water:Public, Water Connected
- Sewer:Public Sewer, Sewer Connected
Finances and disclosures
- Price:$225,000
- Price per sq. ft.:$212.06
- Tax amount:$2,166
Features and amenities
- Appliances:Dishwasher, Disposal, Dryer, Electric Water Heater, Free-Standing Electric Range, Free-Standing Refrigerator, Microwave, Self Cleaning Oven, Stainless Steel Appliance(s), Washer
- Laundry features:Dryer, Electric Dryer Hookup, In Bathroom, Laundry Closet, Washer, Washer Hookup
- Amenities:Ceiling Fan(s), Electric Water Heater, Entrance Foyer, High Speed Internet, Laminate Counters, Management, Open Floorplan, Pantry, Pool, Recessed Lighting, Smooth Ceilings, Storage, Tennis Court(s), Vaulted Ceiling(s), Walk-In Closet(s), Washer
Parking
- Parking description:Parking Lot
New listings near 4601 Timbermill Court #303
- New
$2,930,000Active4 beds 6 baths5,022 sq. ft.3438 Leonard Street, Raleigh, NC 27607
MLS# 10157697Listed by: BEACON REALTY - New
$449,000Active3 beds 3 baths2,957 sq. ft.5456 Thunderidge Drive, Raleigh, NC 27610
MLS# 10157674Listed by: FATHOM REALTY NC, LLC - Coming Soon
$550,000Coming Soon3 beds 2 baths106 Plainview Avenue, Raleigh, NC 27604
MLS# 10157681Listed by: TRIANGLE RESIDENTIAL REALTY - Coming Soon
$539,900Coming Soon5 beds 3 baths4937 Abundance Avenue, Raleigh, NC 27616
MLS# 10157648Listed by: EXP REALTY LLC - New
$775,000Active4 beds 3 baths2,624 sq. ft.6709 Johnsdale Road, Raleigh, NC 27615
MLS# 10157614Listed by: LPT REALTY, LLC - New
$614,900Active4 beds 3 baths2,343 sq. ft.1400 Crete Drive, Raleigh, NC 27606
MLS# 10157610Listed by: NORTHSIDE REALTY INC. - New
$600,000Active3 beds 3 baths2,003 sq. ft.808 Culpepper Lane, Raleigh, NC 27610
MLS# 10157612Listed by: APERTURE LIFESTYLE REAL ESTATE - New
$499,900Active4 beds 3 baths2,301 sq. ft.847 Historian Street, Raleigh, NC 27603
MLS# 10157599Listed by: TRU REALTY LLC - New
$265,000Active2 beds 2 baths1,041 sq. ft.8021 Allyns Landing Way, Raleigh, NC 27615
MLS# 10157570Listed by: HOWARD HANNA ALLEN TATE RALEIGH FALLS OF NEUSE - New
$365,000Active3 beds 3 baths1,734 sq. ft.3513 Wickersham Way, Raleigh, NC 27604
MLS# 10157571Listed by: RELEVATE REAL ESTATE INC.