1200 Touchstone Way, Wake Forest, NC 27587
Local realty services provided by:CENTURY 21 Triangle Group
1200 Touchstone Way,Wake Forest, NC 27587
$875,000
- 4 Beds
- 4 Baths
- 3,225 sq. ft.
- Single family
- Active
Upcoming open houses
- Sat, Apr 2501:00 pm - 03:00 pm
Listed by: gretchen coley, kendall bailey
Office: compass -- raleigh
MLS#:10147875
Source:RD
Price summary
- Price:$875,000
- Price per sq. ft.:$271.32
- Monthly HOA dues:$60
About this home
*RATE BUY DOWN OFFERED WITH USE OF PREFERRED LENDER! Inquire with co-listing agent for more details!*
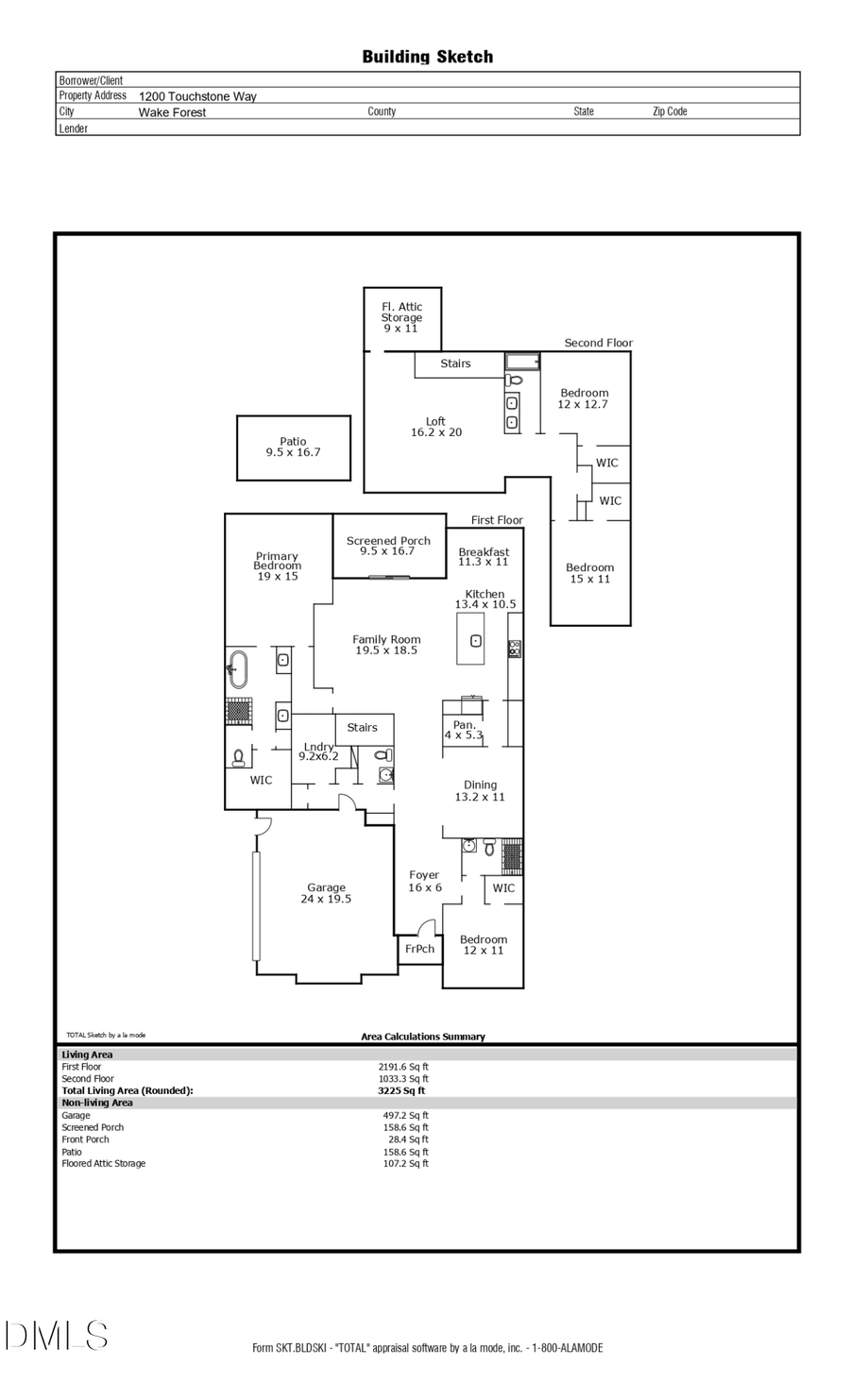
Positioned in Wake Forest with access to daily conveniences and commuter routes, this two-story home offers approx. 3,225 sq ft with a layout designed for both main-level living and flexible second-floor space. The primary suite is located on the main level, creating separation from additional bedrooms upstairs.
The main living area features an open-concept layout with tall ceilings and abundant natural light, connecting the kitchen, breakfast area, and family room into a central gathering space. Interior finishes include detailed trim, wainscoting, and tray ceilings throughout.
The kitchen is designed with function and storage in mind, featuring an oversized island, walk-in pantry, and extended butler's pantry with additional cabinetry. Premium Thermador and Bosch appliances are included, along with quartz countertops in the kitchen, island, butler's pantry, and primary bath. A Samsung Bespoke refrigerator, along with washer and dryer, convey with the home. A dedicated dining room is positioned adjacent to the kitchen for additional seating and entertaining space.
Outdoor living includes a screened porch with fireplace overlooking a private, tree-lined backyard, along with a rear patio offering additional open-air space for seating or dining.
Upstairs, a loft measuring approximately 16' x 20' provides flexible space for a home office, media area, or additional living. Multiple bedrooms include walk-in closets, and a floored attic storage area adds functional storage beyond traditional closet space. Secondary bathrooms feature upgraded granite countertops.
Additional features include a two-car garage and a main-level laundry room.
Located approximately 0.7 miles to Publix at Crenshaw Corners, 1 mile to Harris Teeter and US-1 / Capital Blvd access, and about 3 miles to downtown Wake Forest. Nearby coffee shops, retail, parks, and golf provide access to dining, recreation, and everyday services....
Contact an agent
Home facts
- Year built:2022
- Listing ID #:10147875
- Added:62 day(s) ago
- Updated:April 24, 2026 at 01:51 AM
Rooms and interior
- Bedrooms:4
- Total bathrooms:4
- Full bathrooms:3
- Half bathrooms:1
- Rooms Total:11
- Flooring:Carpet, Hardwood, Tile
- Dining Description:Eat-in Kitchen
- Bathrooms Description:Double Vanity, Walk-In Shower
- Kitchen Description:Dishwasher, Range Hood, Stainless Steel Appliance(s)
- Bedroom Description:Master Downstairs
- Living area:3,225 sq. ft.
Heating and cooling
- Cooling:Central Air
- Heating:Forced Air
- Central air:Yes
Structure and exterior
- Roof:Shingle
- Year built:2022
- Building area:3,225 sq. ft.
- Lot area:0.26 Acres
- Architectural Style:Traditional, Transitional
- Construction Materials:Fiber Cement
- Exterior Features:Covered, Deck, Enclosed, Front Porch, Lighting, Porch, Private Entrance, Private Yard, Rain Gutters, Storage
- Levels:Two
Schools
- High school:Wake - Wake Forest
- Middle school:Wake - Wake Forest
- Elementary school:Wake - Richland Creek
Utilities
- Water:Public
- Sewer:Public Sewer
Finances and disclosures
- Price:$875,000
- Price per sq. ft.:$271.32
- Tax amount:$7,494
Features and amenities
- Appliances:Dishwasher, Range Hood, Stainless Steel Appliance(s)
- Laundry features:Laundry Room, Main Level
- Amenities:Built-in Features, Entrance Foyer, High Ceilings, Kitchen Island, Pantry, Smooth Ceilings, Storage, Walk-In Closet(s)
Parking
- Parking description:Concrete, Driveway, Garage
- Garage:Yes
- Garage spaces:2
New listings near 1200 Touchstone Way
- New
$640,000Active5 beds 4 baths3,310 sq. ft.4612 Capefield Drive, Wake Forest, NC 27587
MLS# 10162196Listed by: BARTON ESTATE REALTY - New
$950,000Active4 beds 4 baths4,390 sq. ft.960 Shasta Daisy Drive, Wake Forest, NC 27587
MLS# 10162233Listed by: LPT REALTY, LLC - Open Sat, 2 to 4pmNew
$1,775,000Active4 beds 5 baths4,728 sq. ft.2100 Kinsale Meadow Lane, Wake Forest, NC 27587
MLS# 10162161Listed by: MURRAY REAL ESTATE GROUP, LLC - Open Sat, 10am to 12pmNew
$645,000Active5 beds 4 baths3,545 sq. ft.313 Toadstool Trail, Wake Forest, NC 27587
MLS# 10162039Listed by: LONG & FOSTER REAL ESTATE INC/RALEIGH - New
$844,000Active5 beds 4 baths3,462 sq. ft.308 Stearns Way, Wake Forest, NC 27587
MLS# 10162035Listed by: COLDWELL BANKER ADVANTAGE - Open Sat, 2 to 4pmNew
$250,000Active2 beds 3 baths1,076 sq. ft.203 Highgate Circle, Wake Forest, NC 27587
MLS# 10161973Listed by: REAL BROKER, LLC - Open Sat, 1 to 4pmNew
$665,000Active5 beds 4 baths3,528 sq. ft.321 Toadstool Trail, Wake Forest, NC 27587
MLS# 10161977Listed by: REDFIN CORPORATION - Open Sat, 10am to 1pmNew
$735,000Active5 beds 4 baths3,055 sq. ft.3608 Thorndike Drive, Wake Forest, NC 27587
MLS# 10161951Listed by: KELLER WILLIAMS REALTY
$1,492,000Pending4 beds 5 baths4,217 sq. ft.2141 Lowery Estates, Wake Forest, NC 27587
MLS# 10161891Listed by: NORTHGROUP REAL ESTATE, INC.- Coming SoonOpen Sat, 11am to 1pm
$750,000Coming Soon4 beds 3 baths7208 Shepstone Place, Wake Forest, NC 27587
MLS# 10161839Listed by: LPT REALTY, LLC