- CENTURY 21 Real Estate
- North Carolina
- Warrenton
- 401 Church Street
401 Church Street, Warrenton, NC 27589
Local realty services provided by:CENTURY 21 New Beginnings
401 Church Street,Warrenton, NC 27589
$439,000
- 3 Beds
- 3 Baths
- 888 sq. ft.
- Multi-family
- Active
Listed by: steven elliot
Office: fathom realty nc
MLS#:10110063
Source:RD
Price summary
- Price:$439,000
- Price per sq. ft.:$494.37
About this home
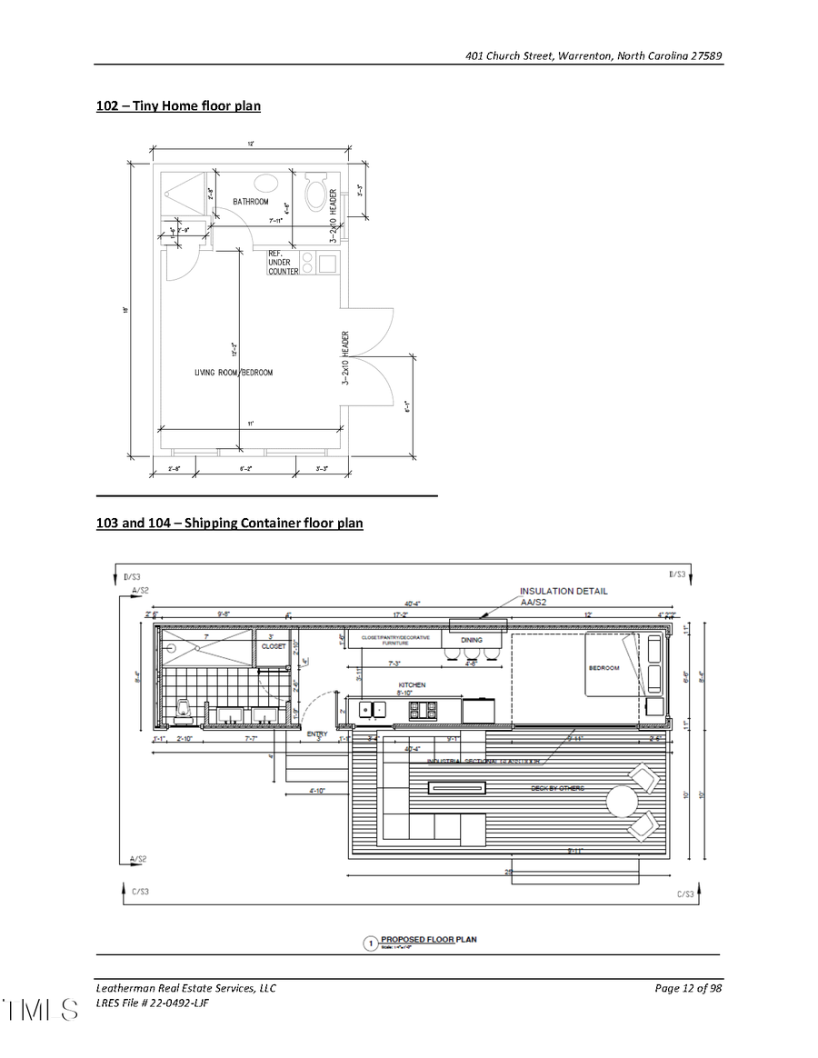
Welcome to an exclusive tiny home village investment opportunity in the heart of Warrenton, NC! This income-producing property consists of three fully furnished, high-end tiny homes operating as successful short-term rentals, plus four additional vacant lots ready for expansion. Whether you're looking to scale an existing Airbnb business, develop more units, or create a private community, this property offers incredible flexibility. 💰 Turnkey AirbnbBusiness with Strong Income History 📈 Proven Short-Term Rental Demand in a Growing Market 🌳 Expansive 1.794-Acre Lot with Room for More HomesExisting Tiny Homes (Fully Furnished & Operational Airbnb Rentals) 🏠 Tiny Home #1 - Modern Loft Retreat • Size: 399 sq. ft. • Features: Lofted sleeping area, full kitchen, spa-inspired bathroom, stainless steel appliances, smart home technology, large windows, and a modern design that attracts high rental demand. 🏠 Tiny Home #2 - Scandinavian Minimalist Haven • Size: 399 sq. ft. • Features: Single-level layout, quartz countertops, energy-efficient appliances, private deck, washer/dryer, and sleek wood cabinetry with a contemporary aesthetic. 🏠 Tiny Home #3 - Rustic Chic Getaway • Size: 399 sq. ft. •Features: Cozy studio-style layout, barn wood accents, built-in storage, a full bath with modern fixtures, and an outdoor fire pit & seating area for guests to enjoy. 🌟 Proven Rental Performance: • Average Nightly Rate: $157 • Occupancy Rate: 52% • Annual Rental Income Potential: Over $70K per homeExpansion & Development Potential 🚧 4 Vacant Lots Included - Ready for additional tiny homes or further development 🛠 Zoned R-12 - Allows for residential single-family development 📍 Strategic Location - Warrenton's emerging vacation rental market provides a low-competition, high-demand opportunity Location & Market Appeal 🌳 Charming Warrenton, NC - A Growing Destination 🏖 Minutes from Lake Gaston, a major tourist attraction 🚗 EasyAccess to Raleigh-Durham & Virginia Border 📈 Rising Demand for Unique Short-Term Rentals Investment Highlights ✅ Fully Operational Airbnb Business with a Proven Track Record ✅ Prime Location in a High-Growth Short-Term Rental Market ✅ Expansion Opportunity - Develop More Tiny Homes or Custom Build ✅ Turnkey Investment - Start Earning from Day One! 💰 📞 Contact us today for a private tour or financials!
Contact an agent
Home facts
- Year built:2020
- Listing ID #:10110063
- Added:196 day(s) ago
- Updated:January 30, 2026 at 04:22 PM
Rooms and interior
- Bedrooms:3
- Total bathrooms:3
- Full bathrooms:3
- Living area:888 sq. ft.
Heating and cooling
- Cooling:Wall Unit(s)
Structure and exterior
- Roof:Metal
- Year built:2020
- Building area:888 sq. ft.
- Lot area:1.46 Acres
Utilities
- Water:Public
- Sewer:Public Sewer
Finances and disclosures
- Price:$439,000
- Price per sq. ft.:$494.37
- Tax amount:$1,520
New listings near 401 Church Street
- New
$350,000Active3 beds 3 baths3,071 sq. ft.1266 Dr Martin Luther King Jr Boulevard, Warrenton, NC 27589
MLS# 10142613Listed by: FATHOM REALTY NC
$187,000Active3 beds 2 baths1,274 sq. ft.149 Ridgecrest Drive, Warrenton, NC 27589
MLS# 10142057Listed by: ROCHELLE MOON REALTY
$55,000Pending8 Acres147 Charles Brown Road, Warrenton, NC 27589
MLS# 10141417Listed by: TRIANGLE NORTH REALTY
$269,000Pending4 beds 3 baths1,610 sq. ft.122 Ridgecrest Drive, Warrenton, NC 27589
MLS# 10141218Listed by: TRIANGLE NORTH REALTY
$225,000Active2 beds 1 baths1,013 sq. ft.1003 Alert Road, Warrenton, NC 27589
MLS# 10138862Listed by: CHOICE RESIDENTIAL REAL ESTATE
$295,900Active3 beds 2 baths2,000 sq. ft.420 Rodwell Street, Warrenton, NC 27589
MLS# 10137614Listed by: COLDWELL BANKER ADVANTAGE
$315,000Active3 beds 2 baths1,906 sq. ft.656 N Bottom Road, Warrenton, NC 27589
MLS# 10136472Listed by: KELLER WILLIAMS PREMIER
$125,000Active3 beds 2 baths1,064 sq. ft.3686 Nc Highway 58, Warrenton, NC 27589
MLS# 10134454Listed by: RAYNOR REALTY POWERED BY REAL
$164,900Active3 beds 2 baths800 sq. ft.424 Halifax Street, Warrenton, NC 27589
MLS# 10133800Listed by: DAVIS REAL ESTATE SERVICES
$300,000Pending4 beds 3 baths1,930 sq. ft.1164 Shocco Springs Road, Warrenton, NC 27589
MLS# 10131869Listed by: COLDWELL BANKER HPW