56 N Oscar Lane, Wendell, NC 27591

Local realty services provided by:CENTURY 21 New Beginnings
56 N Oscar Lane,Wendell, NC 27591
$475,000
  • 4 Beds
  • 3 Baths
  • - sq. ft.
  • Single family
  • Sold
Listed by: andrea lauren felso
Office: mark spain real estate
MLS#:10146151
Source:RD

Sorry, we are unable to map this address


Price summary

  • Price:$475,000
  • Monthly HOA dues:$20

About this home

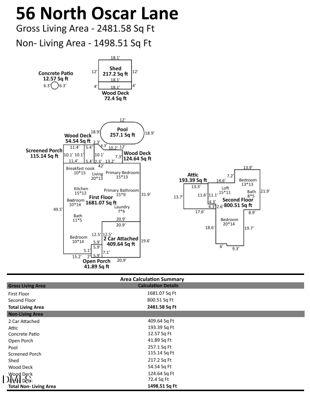
Fantastic Wendell location. Located in between Wendell Falls and Flowers Plantation. Convenient to shopping and entertainment. Short Drive to Raleigh. Fresh paint and new carpet on the first floor. Strong and involved community from 4th of July Parades to community yard sales. This 4 bedroom 3 bath boasts main level bedrooms and open living space with hardwood floors. Upstairs has a 4th bedroom and bath with loft space and a bonus room. Loads of storage space that includes walk in attic access. Level .58 acre lot perfect for entertaining. 12X24 saltwater low maintenance pool, fire pit, shade trees, privacy fence, wired shed, screened in porch to catch the sunrise. Perfect for get togethers. 30 amp hook up on the side parking pad. Amazing home, location, and community. Book your private showing today!

Contact an agent

contact an agent

Yes, I would like more information. Please use and/or share my information with an independent agent affiliated with the CENTURY 21®  brand to contact me about my real estate needs. By clicking Send message, I request to be contacted by phone or text message and consent to being contacted by automated means. I understand that my consent to receive calls or texts is not a condition of purchasing any property, goods, or services. Alternatively, I understand that I can access real estate services by email or I can contact the agent myself.

If an independent agent affiliated with the CENTURY 21®  brand is not available in the area where I need assistance, I agree to be contacted by a real estate agent affiliated with another brand owned or licensed by Anywhere Real Estate (BHGRE® , Coldwell Banker® , Corcoran® , ERA® , Sotheby's International Realty® ).
 I acknowledge that I have read and agree to theTerms of useandPrivacy notice

Home facts

  • Year built:2018
  • Listing ID #:10146151
  • Added:69 day(s) ago
  • Updated:April 23, 2026 at 06:51 AM

Rooms and interior

  • Bedrooms:4
  • Total bathrooms:3
  • Full bathrooms:3
  • Rooms Total:13
  • Flooring:Carpet, Hardwood, Tile, Vinyl
  • Basement Description:Crawl Space

Heating and cooling

  • Cooling:Central Air
  • Heating:Forced Air
  • Central air:Yes

Structure and exterior

  • Roof:Shingle
  • Year built:2018
  • Architectural Style:Craftsman, Transitional
  • Construction Materials:Stone, Vinyl Siding
  • Exterior Features:Screened
  • Foundation Description:Other
  • Levels:One and One Half

Schools

  • High school:Johnston - Corinth Holder
  • Middle school:Johnston - Archer Lodge
  • Elementary school:Johnston - Riverwood

Utilities

  • Water:Public
  • Sewer:Septic Tank

Finances and disclosures

  • Price:$475,000
  • Tax amount:$2,686

Features and amenities

  • Amenities:Granite Counters
  • Pool features:Above Ground

Parking

  • Parking description:Attached, Garage
  • Garage:Yes
  • Garage spaces:2
MLS LogoListings marked with a Doorify MLS icon are provided courtesy of the Doorify MLS, of North Carolina, Internet Data Exchange Database. Brokers make an effort to deliver accurate information, but buyers should independently verify any information on which they will rely in a transaction. The listing broker shall not be responsible for any typographical errors, misinformation, or misprints, and they shall be held totally harmless from any damages arising from reliance upon this data. This data is provided exclusively for consumers’ personal, non-commercial use. Copyright 2026 Doorify MLS of North Carolina. All rights reserved.