628 Cobalt Lane, Wilmington, NC 28412
Local realty services provided by:CENTURY 21 The Realty Group
628 Cobalt Lane,Wilmington, NC 28412
$575,000
- 3 Beds
- 3 Baths
- - sq. ft.
- Single family
- Sold
Listed by: simone & tinder real estate group
Office: intracoastal realty corp
MLS#:100548010
Source:NC_CCAR
Sorry, we are unable to map this address
Price summary
- Price:$575,000
About this home
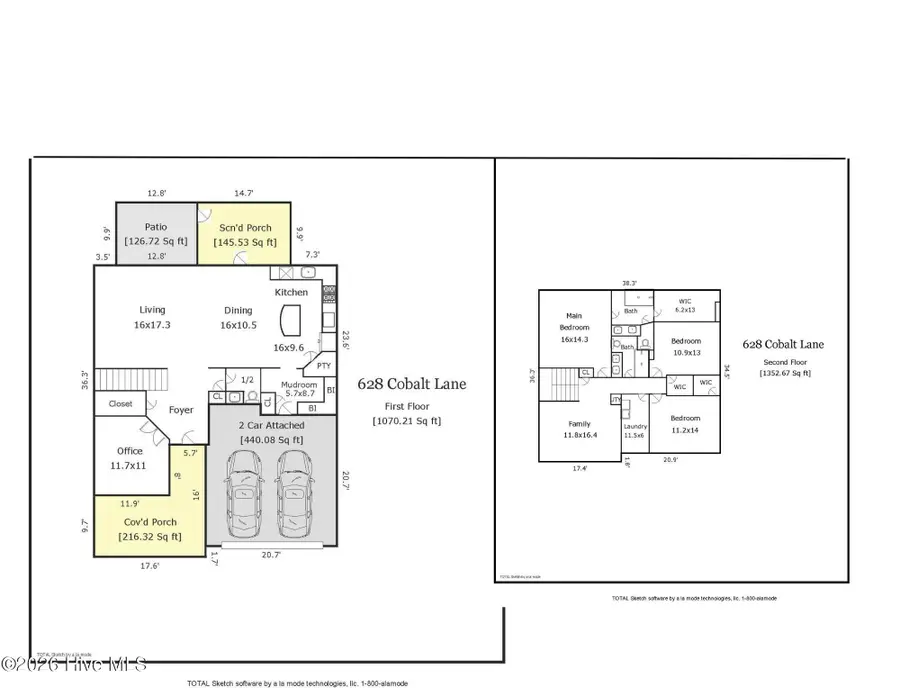
Location truly sets this home apart. Situated directly across from a community park with a playground, it offers open views, easy access, and a front-row seat to neighborhood life—creating a setting that feels both peaceful and connected. Step inside to a light-filled main living area highlighted by beautiful Craftsman-style trim and crown molding, with thoughtful upgrades found throughout the home. The bright kitchen is a true centerpiece, featuring quartz countertops, upgraded cabinetry, a gas cooktop with vented hood, and a pantry. A Butler's pantry adds both function and style, ideal for entertaining, extra storage, or even an office nook. The primary suite is thoughtfully designed with crown molding, a spacious walk-in closet, and a spa-like bath complete with a walk-in shower and private water closet. Two additional bedrooms and a versatile bonus room complete the upstairs. A dedicated office near the front entry provides the perfect work-from-home space or flex room, while the open living areas flow effortlessly for everyday living and entertaining. Step outside to enjoy a large backyard, screened porch, and patio creating the perfect spot for relaxing mornings or evening gatherings. All appliances convey. Move-in ready! Enjoy the active RiverLights lifestyle, now featuring two amenity centers. Residents have access to a wide range of amenities, including clubhouses, fitness centers, outdoor saltwater pools, playgrounds, parks, dog parks, and pickleball courts. The neighborhood also offers scenic trails, sidewalks, and streetlights throughout, along with a variety of clubs and activities for all interests. (HOA: 6-month rental minimum.) This home is a MUST see!
Contact an agent
Home facts
- Year built:2024
- Listing ID #:100548010
- Added:53 day(s) ago
- Updated:March 03, 2026 at 07:23 AM
Rooms and interior
- Bedrooms:3
- Total bathrooms:3
- Full bathrooms:2
- Half bathrooms:1
- Rooms Total:9
- Flooring:Carpet, Laminate, Tile
- Bathrooms Description:Walk-in Shower
- Kitchen Description:Dishwasher, Disposal, Kitchen Island, Refrigerator
- Bedroom Description:Walk-In Closet(s)
Heating and cooling
- Cooling:Central Air
- Heating:Electric, Heat Pump, Heating, Zoned
Structure and exterior
- Roof:Architectural Shingle
- Year built:2024
- Construction Materials:Fiber Cement
- Exterior Features:Covered, Irrigation System, Patio, Porch, Screened
- Foundation Description:Slab
- Levels:2 Story
Schools
- High school:New Hanover
- Middle school:Myrtle Grove
- Elementary school:Williams
Utilities
- Water:Water Connected
- Sewer:Sewer Connected
Finances and disclosures
- Price:$575,000
Features and amenities
- Appliances:Dishwasher, Disposal, Dryer, Refrigerator, Washer, Water Softener
- Laundry features:Dryer, Washer
- Amenities:Billiard Room, Blinds/Shades, Ceiling Fan(s), Clubhouse, Community Pool, Dog Park, Fitness Center, Jogging Path, Park, Pickleball, Picnic Area, Walk-In Closet(s)
- Pool features:Community Pool
New listings near 628 Cobalt Lane
- New
$866,362Active5 beds 5 baths4,289 sq. ft.265 Heart Pine Avenue #96, Wilmington, NC 28411
MLS# 100557599Listed by: MUNGO HOMES - New
$485,000Active4 beds 3 baths2,001 sq. ft.302 Semmes Drive, Wilmington, NC 28412
MLS# 100557594Listed by: INTRACOASTAL REALTY CORP - New
$625,000Active4 beds 4 baths2,558 sq. ft.518 Mcginnis Lane, Wilmington, NC 28412
MLS# 100557574Listed by: BEYCOME BROKERAGE REALTY LLC - Open Sat, 11am to 2pmNew
$699,000Active3 beds 2 baths1,991 sq. ft.110 Tanbridge Road, Wilmington, NC 28405
MLS# 100557550Listed by: INTRACOASTAL REALTY CORP - New
$12,500,000Active6 beds 7 baths4,393 sq. ft.4 Jib Road, Wilmington, NC 28411
MLS# 100557560Listed by: INTRACOASTAL REALTY CORP - New
$385,000Active3 beds 3 baths1,529 sq. ft.436 Morning Glory Court, Wilmington, NC 28405
MLS# 100557511Listed by: ESSENTIAL RENTAL MANAGEMENT COMPANY - New
$375,000Active3 beds 3 baths1,606 sq. ft.6680 Lemon Lane, Wilmington, NC 28412
MLS# 100557529Listed by: KELLER WILLIAMS INNOVATE-PLEASURE ISLAND - New
$218,900Active3 beds 2 baths1,498 sq. ft.4527 Sagedale Drive #Unit 201, Wilmington, NC 28405
MLS# 100557540Listed by: INTRACOASTAL REALTY CORP - New
$669,000Active3 beds 3 baths1,576 sq. ft.311 Nun Street, Wilmington, NC 28401
MLS# 100557542Listed by: KELLER WILLIAMS INNOVATE-WILMINGTON - New
$330,000Active3 beds 2 baths1,162 sq. ft.131 Meadowood Drive, Wilmington, NC 28411
MLS# 100557502Listed by: BERKSHIRE HATHAWAY HOMESERVICES CAROLINA PREMIER PROPERTIES