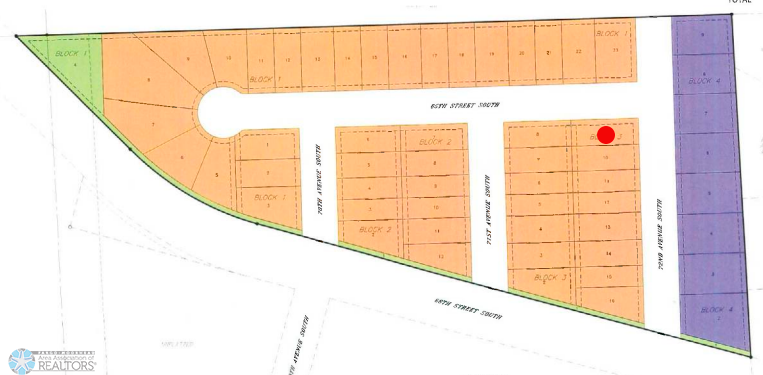
6503 72 Avenue S, Horace, ND 58047

Local realty services provided by:CENTURY 21 Atwood
6503 72 Avenue S,Horace, ND 58047
$39,490
  • 0.15 Acres
  • Lots / Land
  • Active
Listed by: vivian thingelstad
Office: dakota plains realty
MLS#:6698018
Source:NSMLS

Price summary

  • Price:$39,490

About this home

56 lots to choose from

Contact an agent

contact an agent

Yes, I would like more information. Please use and/or share my information with an independent agent affiliated with the CENTURY 21®  brand to contact me about my real estate needs. By clicking Send message, I request to be contacted by phone or text message and consent to being contacted by automated means. I understand that my consent to receive calls or texts is not a condition of purchasing any property, goods, or services. Alternatively, I understand that I can access real estate services by email or I can contact the agent myself.

If an independent agent affiliated with the CENTURY 21®  brand is not available in the area where I need assistance, I agree to be contacted by a real estate agent affiliated with another brand owned or licensed by Anywhere Real Estate (BHGRE® , Coldwell Banker® , Corcoran® , ERA® , Sotheby's International Realty® ).
 I acknowledge that I have read and agree to theTerms of useandPrivacy notice

Home facts

  • Listing ID #:6698018
  • Added:298 day(s) ago
  • Updated:January 29, 2026 at 01:17 PM

Structure and exterior

  • Lot area:0.15 Acres

Finances and disclosures

  • Price:$39,490
  • Tax amount:$422 (2024)
Data is deemed reliable but is not guaranteed accurate by the MLS. The information being provided is for consumers’ personal, non-commercial use and may not be used for any purpose other than to identify prospective properties consumers may be interested in purchasing.