52 Pumpkin Hollow Road, Barrington, NH 03825
Local realty services provided by:CENTURY 21 Gold Key Realty
52 Pumpkin Hollow Road,Barrington, NH 03825
$290,000
- 3 Beds
- 2 Baths
- 1,597 sq. ft.
- Mobile / Manufactured
- Active
Listed by: tim cheney
Office: re/max shoreline
MLS#:5010177
Source:PrimeMLS
Price summary
- Price:$290,000
- Price per sq. ft.:$181.59
- Monthly HOA dues:$480
About this home
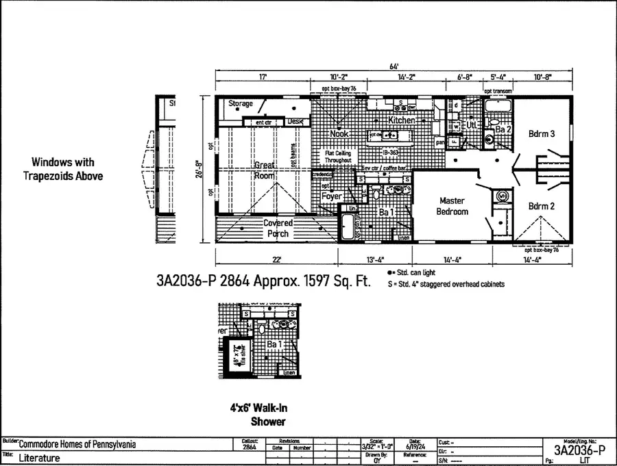
HOME IS READY FOR SHOWINGS! BRAND NEW DOUBLE WIDE in a pet friendly, all age park convenient to downtown Dover, Route 16, and the Seacoast! This quality 1,597 sq ft Commodore home has a covered front porch for enjoying warm summer nights and cool Autumn mornings. As you enter the home, kick off your shoes in the foyer before heading into your spacious living room that's flooded with natural light between the large windows and transom. There's even a nook for your entertainment center! Flow into the kitchen with an eat in dining area, massive island with seating, coffee bar, and plenty of storage for all your cooking needs. The 14' 4" x 13' 4" primary bedroom with en suite bath that has a step in shower. The two other bedrooms are convenient to the second bathroom with a full shower tub. For additional storage, there's a dedicated storage room/pantry AND a separate laundry room. 20% DOWN OWNER FINANCING AVAILABLE!
Contact an agent
Home facts
- Year built:2024
- Listing ID #:5010177
- Added:573 day(s) ago
- Updated:March 08, 2026 at 10:51 AM
Rooms and interior
- Bedrooms:3
- Total bathrooms:2
- Full bathrooms:1
- Rooms Total:7
- Flooring:Carpet
- Kitchen Description:Dishwasher, Microwave, Refrigerator
- Living area:1,597 sq. ft.
Heating and cooling
- Heating:Forced Air
Structure and exterior
- Roof:Shingle
- Year built:2024
- Building area:1,597 sq. ft.
- Levels:1 Story
Utilities
- Sewer:Community, Private
Finances and disclosures
- Price:$290,000
- Price per sq. ft.:$181.59
Features and amenities
- Appliances:Refrigerator
Parking
- Parking description:Paved Driveway
New listings near 52 Pumpkin Hollow Road
- Open Sat, 10am to 12pmNew
$829,000Active4 beds 3 baths3,698 sq. ft.147 Boulder Drive, Barrington, NH 03825
MLS# 5079176Listed by: KW COASTAL AND LAKES & MOUNTAINS REALTY - New
$210,000Active2 beds 2 baths1,344 sq. ft.24 Ruby Drive, Barrington, NH 03825
MLS# 5079037Listed by: KELLER WILLIAMS REALTY-METROPOLITAN
$948,936Pending3 beds 3 baths2,142 sq. ft.Lot 11 Pebble Court, Barrington, NH 03825
MLS# 5078524Listed by: THE GOVE GROUP REAL ESTATE, LLC- Open Sat, 12 to 1:30pmNew
$209,900Active3 beds 2 baths1,218 sq. ft.268 Emerald Drive, Barrington, NH 03825
MLS# 5078518Listed by: SEACOAST MOBILE HOME BROKERS - New
$849,900Active3 beds 3 baths2,690 sq. ft.135 Smoke Street, Barrington, NH 03825
MLS# 5077755Listed by: KW COASTAL AND LAKES & MOUNTAINS REALTY
$840,000Pending4 beds 4 baths3,200 sq. ft.107 Village Place Drive, Barrington, NH 03825
MLS# 5078332Listed by: KW COASTAL AND LAKES & MOUNTAINS REALTY- Open Sun, 11:30am to 1pmNew
$699,000Active3 beds 3 baths2,652 sq. ft.162 Lakeside Oaks Drive, Barrington, NH 03825
MLS# 5078283Listed by: EAST KEY REALTY
$639,900Pending4 beds 3 baths1,872 sq. ft.319 Old Concord Turnpike, Barrington, NH 03825
MLS# 5078139Listed by: COLDWELL BANKER - PEGGY CARTER TEAM- New
$1,343,000Active4 beds 4 baths3,426 sq. ft.Lot 3 The Woodlands at Merry Hill, Barrington, NH 03825
MLS# 5078076Listed by: THE GOVE GROUP REAL ESTATE, LLC
$850,000Active8.77 Acres00 Calef Highway #233/26/58 and 59, Barrington, NH 03825
MLS# 5077662Listed by: EXP REALTY