Bayside Road #2E, Greenland, NH 03840
Local realty services provided by:CENTURY 21 Gold Key Realty
Bayside Road #2E,Greenland, NH 03840
$1,440,000
- 4 Beds
- 4 Baths
- 2,920 sq. ft.
- Single family
- Active
Listed by: susan green, grant parham
Office: green & company
MLS#:5075094
Source:PrimeMLS
Price summary
- Price:$1,440,000
- Price per sq. ft.:$298.01
About this home
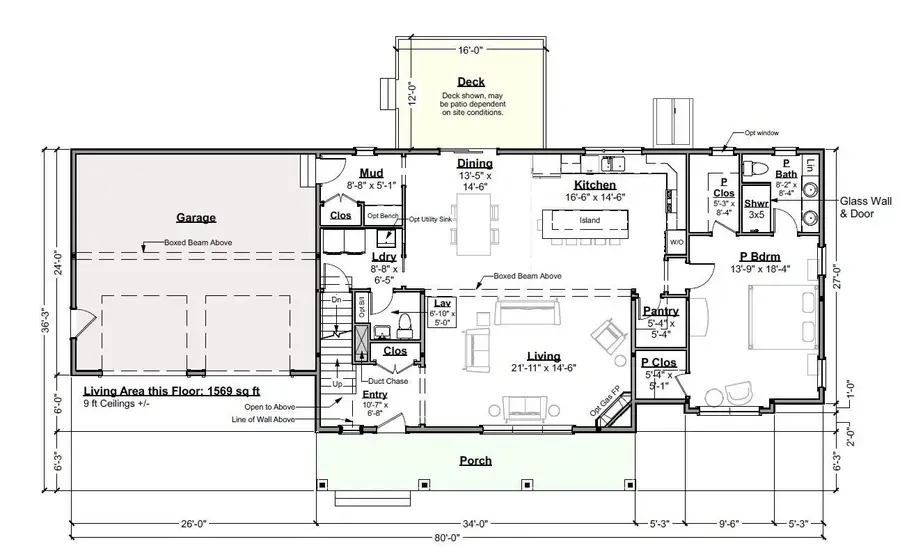
NEW CONSTRUCTION is just beginning on this stunning Robin Classic home offering both first and second floor primary suites and perfectly situated on a beautiful, spacious lot in centrally located Greenland, NH. The thoughtfully designed floor plan features a charming front farmer’s porch—an ideal spot to enjoy your morning coffee. Inside, the open-concept layout offers effortless flow, complete with hand finished hardwood flooring, high ceilings, and gas fireplace. Custom kitchen with stone countertops, spacious island, and walk-in pantry offers great storage. An owner’s entry from the two-car garage leads to a convenient mud area. The first floor primary offers a private bath with tile shower, and walk-in closet. First floor laundry. Up the hardwoods stairs are three more bedrooms, including a second primary suite with expansive walk-in closet, bath with tile shower. Optional bonus room on this floor for future expansion. The full basement provides endless possibilities. High end features include tile showers, hand finished hardwood flooring, generous finish allowances, beautiful trim work – and more! Lot will be professionally landscaped. Still time to customize your finishes! Conveniently located near schools, shopping, downtown Portsmouth, local beaches, and major highways, this is an exceptional opportunity to make your dream home a reality.
Contact an agent
Home facts
- Listing ID #:5075094
- Added:28 day(s) ago
- Updated:February 22, 2026 at 11:25 AM
Rooms and interior
- Bedrooms:4
- Total bathrooms:4
- Full bathrooms:1
- Rooms Total:11
- Flooring:Carpet, Hardwood, Tile
- Kitchen Description:Dishwasher, Microwave, Refrigerator
- Basement Description:Concrete, Exterior Access, Full, Interior, Storage Space, Unfinished
- Living area:2,920 sq. ft.
Heating and cooling
- Cooling:Central AC
- Heating:Forced Air, Hot Air, Multi Zone
Structure and exterior
- Building area:2,920 sq. ft.
- Lot area:1.62 Acres
- Levels:2 Story
Utilities
- Sewer:Private, Septic
Finances and disclosures
- Price:$1,440,000
- Price per sq. ft.:$298.01
Features and amenities
- Appliances:Exhaust Fan, Refrigerator
New listings near Bayside Road #2E
- New
$1,325,000Active3 beds 3 baths2,301 sq. ft.13-2 Dearborn Road, Greenland, NH 03840
MLS# 5077319Listed by: THE GOVE GROUP REAL ESTATE, LLC - New
$1,350,000Active3 beds 3 baths2,159 sq. ft.13-1 Dearborn Road, Greenland, NH 03840
MLS# 5077315Listed by: THE GOVE GROUP REAL ESTATE, LLC
$419,999Active2 beds 1 baths1,426 sq. ft.26 Ocean Road, Greenland, NH 03840
MLS# 5076611Listed by: KW COASTAL AND LAKES & MOUNTAINS REALTY
$1,399,900Active4 beds 3 baths2,850 sq. ft.Bayside Road #2D, Greenland, NH 03840
MLS# 5075093Listed by: GREEN & COMPANY
$359,900Pending2 beds 2 baths1,260 sq. ft.69 Magnolia Lane, Greenland, NH 03840
MLS# 5074400Listed by: RSA REALTY, LLC- Open Sat, 11am to 2pm
$855,500Active2 beds 3 baths1,912 sq. ft.Unit 27 Summerwind Place, Greenland, NH 03840
MLS# 5074255Listed by: THE GOVE GROUP REAL ESTATE, LLC - Open Sat, 11am to 2pm
$794,500Active2 beds 2 baths1,280 sq. ft.Unit 25 Summerwind Place, Greenland, NH 03840
MLS# 5074256Listed by: THE GOVE GROUP REAL ESTATE, LLC - Open Sat, 11am to 2pm
$799,500Active2 beds 2 baths1,388 sq. ft.Unit 24 Summerwind Place, Greenland, NH 03840
MLS# 5074257Listed by: THE GOVE GROUP REAL ESTATE, LLC
$1,175,000Active4 beds 3 baths3,530 sq. ft.2 Orchard Hill Road, Greenland, NH 03840
MLS# 5074015Listed by: THE ALAND REALTY GROUP