762 S 16th St, Newark, NJ 07103

Local realty services provided by:CENTURY 21 Sylvia Geist Agency
762 S 16th St,Newark City, NJ 07103
$350,000
  • 0.06 Acres
  • Lots / Land
  • Active
Listed by: victor ramos faist
Office: keller williams park views201-939-0050
MLS#:4021062
Source:NJ_GSMLS

Price summary

  • Price:$350,000

About this home

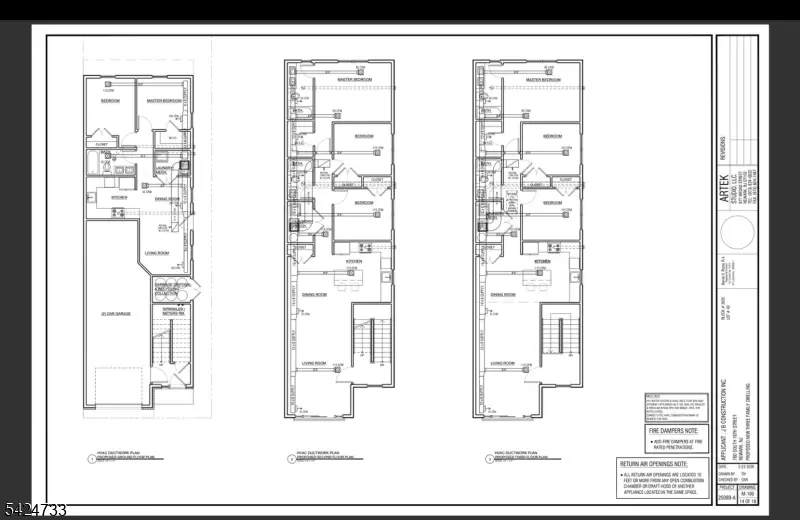
Prime opportunity in one of Newark?s fastest-growing neighborhoods, surrounded by ongoing development and rising property values. This lot will be delivered completely shovel-ready?cleared, with flow test completed, and fully approved architectural plans included for a modern 3-family home.The plans feature an impressive layout with 8 bedrooms, 5 full bathrooms, and a 2-car garage, designed for strong rental income and long-term value. Best of all, the project requires no variances, saving you significant time, cost, and uncertainty.With comparable 3-family homes in the area achieving ARVs between $1,000,000 and $1,100,000, this is a compelling opportunity for investors and builders alike. Start building immediately upon closing?no demolition, no delays.

Contact an agent

contact an agent

Yes, I would like more information. Please use and/or share my information with an independent agent affiliated with the CENTURY 21®  brand to contact me about my real estate needs. By clicking Send message, I request to be contacted by phone or text message and consent to being contacted by automated means. I understand that my consent to receive calls or texts is not a condition of purchasing any property, goods, or services. Alternatively, I understand that I can access real estate services by email or I can contact the agent myself.

If an independent agent affiliated with the CENTURY 21®  brand is not available in the area where I need assistance, I agree to be contacted by a real estate agent affiliated with another brand owned or licensed by Anywhere Real Estate (BHGRE® , Coldwell Banker® , Corcoran® , ERA® , Sotheby's International Realty® ).
 I acknowledge that I have read and agree to theTerms of useandPrivacy notice

Home facts

  • Listing ID #:4021062
  • Added:8 day(s) ago
  • Updated:April 24, 2026 at 02:17 PM

Structure and exterior

  • Lot area:0.06 Acres

Utilities

  • Water:Public Water in Street
  • Sewer:Public Sewer In Street

Finances and disclosures

  • Price:$350,000
  • Tax amount:$1,255 (2025)
The data relating to real estate for sale on this website comes in part from the IDX Program of Garden State Multiple Listing Service, L.L.C. Real estate listings held by other brokerage firms are marked as IDX Listing. Information deemed reliable but not guaranteed. 2026 Garden State Multiple Listing Service, L.L.C. All rights reserved. Notice: The dissemination of listings on this website does not constitute the consent required by N.J.A.C. 11:5.6.1 (n) for the advertisement of listings exclusively for sale by another broker. Any such consent must be obtained in writing from the listing broker. This information is being provided for Consumers' personal, non-commercial use and may not be used for any purpose other than to identify prospective properties Consumers may be interested in purchasing. Date Last Updated April 24, 2026