- CENTURY 21 Real Estate
- New Jersey
- Vernon Township
- 15 Lakeside Dr
15 Lakeside Dr, Vernon Township, NJ 07461
Local realty services provided by:CENTURY 21 Full Service Realty
15 Lakeside Dr,Vernon Twp., NJ 07461
$65,000
- 0.18 Acres
- Lots / Land
- Active
Listed by: peter j. ingrasselino
Office: global real estate pro
MLS#:3980517
Source:NJ_GSMLS
Price summary
- Price:$65,000
About this home
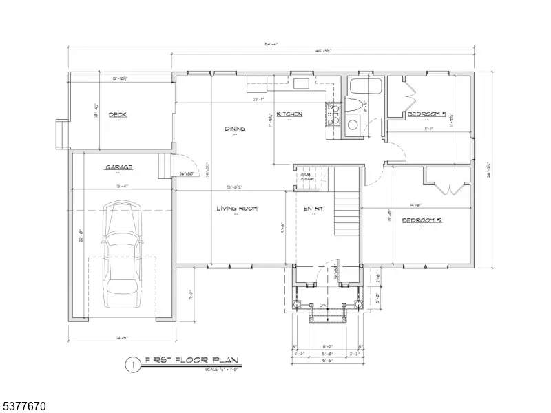
Newly installed two-bedroom septic system, complete with engineering plans and a survey featuring architectural drawings ready for your dream home.This property is primed and ready for development, as all plans adhere strictly to local zoning regulations. The package includes detailed architectural drawings that provide you with a solid foundation to start your project. These plans have been meticulously crafted to make the most of the available space, offering a comfortable and functional layout for your new home. Situated in a stunning lake community, this property offers more than just a place to build?it offers a lifestyle. Enjoy a variety of recreational activities such as boating, fishing, and swimming, right at your doorstep. The community is also known for its friendly atmosphere and active social scene, making it easy to feel right at home. Turnkey Ready: With a septic system and all necessary plans in place, you?re ready to build, Compliance: All designs align with zoning guidelines, ensuring peace of mind, Community: Enjoy the benefits of living in a thriving lake community, Potential and Value: An investment in your future, this property promises a blend of tranquility and modern living. Make your dream of lakeside living a reality. This is more than just an opportunity to build a home; it?s an invitation to create a lifetime of memories. Don?t miss out on the chance to craft your perfect retreat in this idyllic setting
Contact an agent
Home facts
- Listing ID #:3980517
- Added:668 day(s) ago
- Updated:December 23, 2025 at 09:28 PM
Structure and exterior
- Lot area:0.18 Acres
Schools
- High school:VERNON
- Middle school:GLEN MDW
- Elementary school:CEDAR MTN
Utilities
- Sewer:Septic System on Site
Finances and disclosures
- Price:$65,000
- Tax amount:$742 (2024)
New listings near 15 Lakeside Dr
- Coming Soon
$400,000Coming Soon3 beds 2 baths50 E Shore Dr, Vernon Twp., NJ 07462
MLS# 4007404Listed by: THE KEY REAL ESTATE GROUP - New
$260,000Active2 beds 1 baths1,090 sq. ft.18 Mountainside Dr, Vernon Twp., NJ 07461
MLS# 4007144Listed by: C-21 GEMINI, LLC. - Coming Soon
$269,900Coming Soon2 beds 2 baths1 Purgatory Ct #3, Vernon Twp., NJ 07462
MLS# 4007115Listed by: KELLER WILLIAMS REALTY - Open Sat, 12 to 3pmNew
$215,000Active2 beds 2 baths3 Port Royal Dr #5, Vernon Twp., NJ 07462
MLS# 4007118Listed by: WEICHERT REALTORS - New
$390,000Active3 beds 2 baths1,736 sq. ft.31 Meadow Ln, Vernon Twp., NJ 07462
MLS# 4006863Listed by: BHGRE GREEN TEAM - Open Sat, 12 to 2pmNew
$289,900Active2 beds 1 baths110 Breakneck Rd, Vernon Twp., NJ 07422
MLS# 4006775Listed by: WEICHERT REALTORS - Coming SoonOpen Sat, 1 to 3pm
$599,999Coming Soon4 beds 3 baths3 Birchwood Dr, Vernon Twp., NJ 07460
MLS# 4006743Listed by: MOUNTAIN PROPERTIES - New
$180,000Active1 beds 1 baths13 Village Way 4, Vernon, NJ 07462
MLS# 26002557Listed by: CORCORAN INFINITY PROPERTIES, RIDGEWOOD - New
$679,000Active4 beds 3 baths1 Donna Lynn Terrace, Sussex, NJ 07461
MLS# 26002572Listed by: WEICHERT REALTORS, HAMBURG - New
$180,000Active1 beds 1 baths805 sq. ft.13 Village Way #4E, Vernon Twp., NJ 07462
MLS# 4006371Listed by: CORCORAN INFINITY PROPERTIES