1482 Brillo Del Cielo Street Nw, Los Lunas, NM 87031
Local realty services provided by:CENTURY 21 Champions, Inc.
1482 Brillo Del Cielo Street Nw,Los Lunas, NM 87031
$364,990
- 4 Beds
- 2 Baths
- 1,602 sq. ft.
- Single family
- Active
Listed by: tamera d romero
Office: d.r. horton, inc.
MLS#:1102154
Source:NM_SWMLS
Price summary
- Price:$364,990
- Price per sq. ft.:$227.83
- Monthly HOA dues:$30
About this home
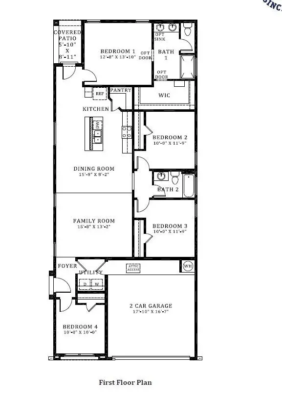
This thoughtfully designed single-story home offers an impressive open-concept layout enhanced by 9-foot ceilings, creating a spacious and bright feel. The kitchen features upgraded cabinetry, modern fixtures, generous counter space, and a seamless flow to the dining and living areas--ideal for everyday living and entertaining. Enjoy space and comfort with four cozy bedrooms and two elegant bathrooms.Energy-efficient construction and systems help support long-term savings and comfort. Interior upgrades include durable tile flooring in high-traffic areas, plush carpeting, and coordinated designer finishes throughout. The primary suite provides a well-appointed bathroom and a large closet for ample storage.Gorgeous upgraded hardware, and stainless steel appliances!
Contact an agent
Home facts
- Year built:2026
- Listing ID #:1102154
- Added:1 day(s) ago
- Updated:April 23, 2026 at 02:22 PM
Rooms and interior
- Bedrooms:4
- Total bathrooms:2
- Full bathrooms:2
- Flooring:Carpet, Tile
- Bathrooms Description:Separate Shower, Shower Only
- Kitchen Description:Dishwasher, Disposal, Free Standing Gas Range, Microwave
- Living area:1,602 sq. ft.
Heating and cooling
- Heating:Central, Forced Air, Natural Gas
Structure and exterior
- Roof:Tile
- Year built:2026
- Building area:1,602 sq. ft.
- Lot area:0.1 Acres
- Lot Features:Planned Unit Development, Xeriscape
- Construction Materials:Stucco
- Exterior Features:Private Yard, Sprinkler Irrigation
- Levels:1 Story
Utilities
- Water:Public, Water Connected
- Sewer:Public Sewer, Sewer Connected
Finances and disclosures
- Price:$364,990
- Price per sq. ft.:$227.83
Features and amenities
- Appliances:Dishwasher, Disposal, Free Standing Gas Range, Microwave
- Amenities:Insulated Windows, Low Emissivity Windows, Vinyl Windows
Parking
- Parking description:Garage
- Garage:Yes
- Garage spaces:2
New listings near 1482 Brillo Del Cielo Street Nw
$259,900Pending2 beds 2 baths1,150 sq. ft.609 Wanda Street Sw, Los Lunas, NM 87031
MLS# 1093228Listed by: ASSIST-2-SELL BUYERS AND SELL- New
$345,000Active3 beds 2 baths1,655 sq. ft.4021 Mora River Avenue Sw, Los Lunas, NM 87031
MLS# 1102230Listed by: KELLER WILLIAMS REALTY - New
$314,500Active3 beds 2 baths1,414 sq. ft.3361 Campfire Street Sw, Los Lunas, NM 87031
MLS# 1102206Listed by: REALTY ONE OF NEW MEXICO - New
$199,500Active1.53 AcresTBD Shooting Star Lane, Los Lunas, NM 87031
MLS# 1102149Listed by: ASSIST-2-SELL BUYERS AND SELL - New
$364,990Active4 beds 2 baths1,602 sq. ft.1489 Brillo Del Cielo Street Nw, Los Lunas, NM 87031
MLS# 1102150Listed by: D.R. HORTON, INC. - Open Sat, 12 to 5pmNew
$344,990Active3 beds 2 baths1,519 sq. ft.1485 Brillo Del Cielo Street Nw, Los Lunas, NM 87031
MLS# 1102153Listed by: D.R. HORTON, INC. - New
$419,000Active4 beds 3 baths2,425 sq. ft.1300 Montara Drive Nw, Los Lunas, NM 87031
MLS# 1102131Listed by: EXP REALTY LLC - Open Sat, 12 to 5pmNew
$339,990Active3 beds 2 baths1,420 sq. ft.1461 Calle Oeste Nw, Los Lunas, NM 87031
MLS# 1102095Listed by: D.R. HORTON, INC. - New
$515,000Active3 beds 2 baths2,286 sq. ft.9 Blackberry Lane, Los Lunas, NM 87031
MLS# 1102053Listed by: CENTURY 21 CHAMPIONS