2614 Box Lake Drive Ne, Rio Rancho, NM 87144
Local realty services provided by:CENTURY 21 Champions, Inc.
2614 Box Lake Drive Ne,Rio Rancho, NM 87144
$579,080
- 3 Beds
- 3 Baths
- 2,318 sq. ft.
- Single family
- Pending
Listed by: brian leigh earnest
Office: realty one of new mexico
MLS#:1092115
Source:NM_SWMLS
Price summary
- Price:$579,080
- Price per sq. ft.:$249.82
About this home
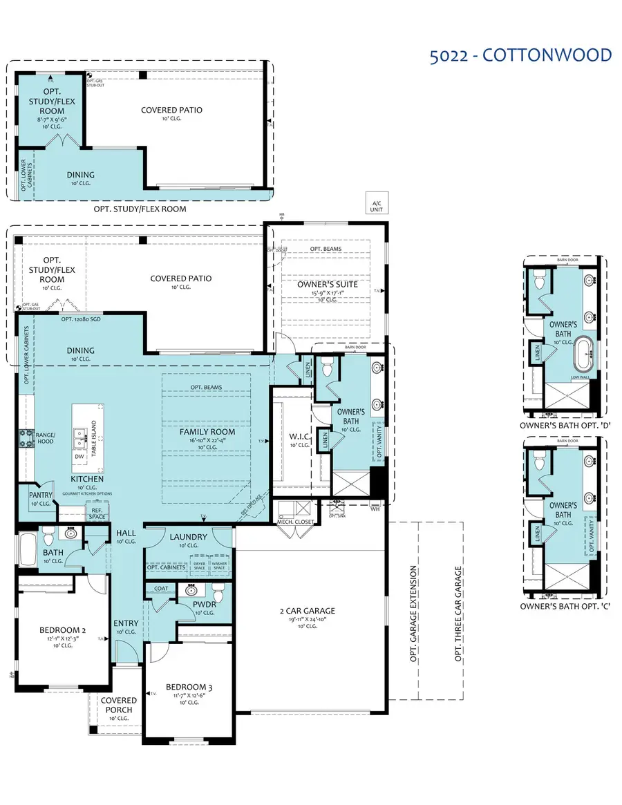
New Construction with Office on 1/2 Acre Lot! This single-story 2,318 sq ft Green Build Gold Certified home offers the perfect blend of style, comfort, and efficiency. Set on a 1/2 acre lot with city water and sewer, it features 3 bedrooms plus an office, and a spacious extended covered patio with a 12' sliding glass panel door for seamless indoor-outdoor living. Warm wood beam accents add character, while the gourmet kitchen shines with stainless steel appliances and granite counters throughout. Energy-smart and thoughtfully designed, this home combines modern convenience and privacy. Home construction began is scheduled to complete in January 2026. Call or visit Amreston Homes for more information or to schedule a tour.
Contact an agent
Home facts
- Year built:2026
- Listing ID #:1092115
- Added:206 day(s) ago
- Updated:April 23, 2026 at 07:29 AM
Rooms and interior
- Bedrooms:3
- Total bathrooms:3
- Full bathrooms:2
- Half bathrooms:1
- Flooring:Carpet, Tile
- Dining Description:Living Dining Combo
- Bathrooms Description:Separate Shower, Soaking Tub
- Kitchen Description:Cooktop, Dishwasher, Microwave, Pantry, Self Cleaning Oven
- Living area:2,318 sq. ft.
Heating and cooling
- Cooling:Refrigerated
- Heating:Central, Forced Air, Natural Gas
Structure and exterior
- Roof:Pitched, Shingle
- Year built:2026
- Building area:2,318 sq. ft.
- Lot area:0.5 Acres
- Lot Features:Landscaped
- Construction Materials:Frame, Stone, Synthetic Stucco
- Exterior Features:Patio, Private Entrance
- Levels:1 Story
Utilities
- Water:Public, Water Connected
- Sewer:Public Sewer, Sewer Connected
Finances and disclosures
- Price:$579,080
- Price per sq. ft.:$249.82
- Tax amount:$418
Features and amenities
- Appliances:Cooktop, Dishwasher, Microwave, Self Cleaning Oven
- Amenities:Insulated Windows, Low Emissivity Windows, Vinyl Windows
Parking
- Parking description:Garage
- Garage:Yes
- Garage spaces:2
New listings near 2614 Box Lake Drive Ne
- New
$182,000Active2 beds 2 baths1,156 sq. ft.833 Country Club Drive Se #APT 1E, Rio Rancho, NM 87124
MLS# 1102235Listed by: RUBY'S REALTY INC. - New
$439,900Active4 beds 3 baths2,716 sq. ft.1021 Toscana Drive Se, Rio Rancho, NM 87124
MLS# 1101862Listed by: REAL BROKER - New
$760,000Active3 beds 3 baths2,567 sq. ft.1509 Aztec Moon Court Se, Rio Rancho, NM 87124
MLS# 1102212Listed by: LPT REALTY - New
$565,000Active4 beds 4 baths2,773 sq. ft.2199 Beckham Drive Ne, Rio Rancho, NM 87144
MLS# 1102214Listed by: REALTY ONE OF NEW MEXICO - New
$7,500Active1 Acres34th (u5 B45 L6) Street Nw, Rio Rancho, NM 87124
MLS# 1102215Listed by: BEYOND REAL-ESTATE - New
$302,000Active4 beds 2 baths1,606 sq. ft.536 Soothing Meadows Drive Ne, Rio Rancho, NM 87144
MLS# 1102216Listed by: PINNACLE REAL ESTATE GROUP - New
$3,500Active1 Acres59th (u2 B75 L24) Street Nw, Rio Rancho, NM 87144
MLS# 1102217Listed by: BEYOND REAL-ESTATE - New
$18,000Active1.11 AcresClay (u12 B75 L5) Place Ne, Rio Rancho, NM 87144
MLS# 1102219Listed by: BEYOND REAL-ESTATE - New
$1,500Active0.5 AcresTorcido (u26 B114 L10) Road Nw, Rio Rancho, NM 87144
MLS# 1102221Listed by: BEYOND REAL-ESTATE - Open Sat, 1:30 to 3:30pmNew
$345,000Active3 beds 3 baths1,819 sq. ft.3728 Clear Creek Road Ne, Rio Rancho, NM 87144
MLS# 1102224Listed by: RE/MAX SELECT