6000 Palisade Avenue, Bronx, NY 10471
Local realty services provided by:CENTURY 21 Hire Realty
6000 Palisade Avenue,Bronx, NY 10471
$550,000
- 0.18 Acres
- Lots / Land
- Active
Upcoming open houses
- Sat, Dec 2001:00 pm - 02:00 pm
Listed by: gregory tsougranis, julia v. egorova
Office: keller williams realty nyc grp
MLS#:892411
Source:OneKey MLS
Price summary
- Price:$550,000
About this home
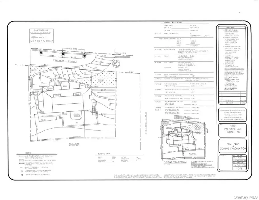
Build with current plans submitted to DOB or to your own specification in one of NYC most elite neighborhoods (North Riverdale) for profit as a developer or your own enjoyment. Plans submitted with Phase I and Phase II environmental completed including borings & Geotechnical report. (See plans attached). Current proposed plans for a 3,416 sq. ft. FIVE BEDROOM, THREE BATH one family on three levels of living space + a cellar, attic and garage parking for two cars. Proposed total sq. ft. = 3,416. (1st fl. 1,576 sq. ft.; 2nd fl. 1,296 sq. ft.; 3rd fl. 544 sq. ft.) / 1st floor - Foyer, Study, living room, kitchen, dining room, 1 bathroom, green house, back patio, and front terrace. / 2nd fl. - 3BR with multiple balconies and two full bathrooms. / 3rd fl. - two additional bedrooms both with balconies and 1 additional bathroom. BLOCK 5955, LOT 613, ZONE R1-2, ZONE AREA R1-2, ZONE MAP 1C, MAX FAR .5 / 3,849 SQ. FT. / Can be sold separately or in conjunction with two connected lots-Block 5955 lots 614 (MLS 890641) and 616 (MLS 892411). These lots are located in next to other million dollar properties. Two of which are vacant.
Contact an agent
Home facts
- Listing ID #:892411
- Added:129 day(s) ago
- Updated:December 16, 2025 at 01:36 AM
Structure and exterior
- Lot area:0.18 Acres
Schools
- High school:Contact Agent
- Middle school:Call Listing Agent
- Elementary school:Contact Agent
Utilities
- Sewer:Public Sewer
Finances and disclosures
- Price:$550,000
- Tax amount:$2,314 (2024)
New listings near 6000 Palisade Avenue
- New
$329,000Active2 beds 1 baths947 sq. ft.Address Withheld By Seller, Bronx, NY 10473
MLS# 943359Listed by: HOWARD HANNA RAND REALTY - New
$1,050,000Active8 beds 3 baths2,458 sq. ft.1823 Amethyst Street, Bronx, NY 10462
MLS# 944364Listed by: COMRES REALTY GROUP LLC - New
$999,000Active12 beds 6 baths150 sq. ft.2945 Tenbroeck Avenue, Bronx, NY 10469
MLS# 944343Listed by: HOMES NYC GROUP INC - New
$929,999Active5 beds 4 baths1,871 sq. ft.4114 Wickham Avenue, Bronx, NY 10466
MLS# 943180Listed by: EXP REALTY - Coming Soon
$349,999Coming Soon2 beds 1 baths18 Metropolitan Oval #3C, Bronx, NY 10462
MLS# 943590Listed by: PROGRESS REALTY INC. - New
$89,900Active1 beds 1 baths738 sq. ft.3231 Barker Avenue #2C, Bronx, NY 10467
MLS# 944285Listed by: UTOPIA REALTY INC. - New
$760,000Active4 beds 3 baths1,770 sq. ft.4161 Monticello Avenue, Bronx, NY 10466
MLS# 944244Listed by: KINGDOM CONNECTION REALTY LLC - New
$1,479,000Active9 beds 5 baths3,840 sq. ft.518 Morris Park, Bronx, NY 10460
MLS# 944159Listed by: HAN TANG REALTY INC. - New
$765,000Active4 beds 2 baths1,762 sq. ft.3330 Eastchester Road, Bronx, NY 10469
MLS# 944181Listed by: KINGDOM CONNECTION REALTY LLC - New
$169,000Active1 beds 1 baths825 sq. ft.3321 Bruckner Boulevard #6H, Bronx, NY 10461
MLS# 942288Listed by: RE/MAX IN THE CITY