861 Manida Street, Bronx, NY 10474
Local realty services provided by:CENTURY 21 Kafcos Realty
861 Manida Street,Bronx, NY 10474
$990,000
- 5 Beds
- 3 Baths
- 2,792 sq. ft.
- Single family
- Active
Listed by: brian mccaffrey
Office: prime place realty
MLS#:988860
Source:OneKey MLS
Price summary
- Price:$990,000
- Price per sq. ft.:$354.58
About this home
Charming Renaissance Revival Home in the Heart of the Manida Street Historic District – 861 Manida Street, Bronx, NY
Step into a piece of history with this stunning residence at 861 Manida Street, located in the esteemed Manida Street Historic District. Designed by renowned architect James F. Meehan and completed in 1909, this home beautifully embodies the timeless elegance of the Renaissance Revival architectural style, with unique Flemish Revival elements that make it truly one-of-a-kind.
Key Features:
Architectural Splendor: The home’s distinctive Renaissance Revival features include gracefully rounded projecting bays, mirror-image facades, and classical motifs adorning the lintels and door surrounds. A true representation of the early 20th century’s architectural craftsmanship.
Flemish Revival Charm: The house boasts stunning Flemish Revival-style parapets, elegantly projecting above the window bays, offering a charming European-inspired silhouette.
Historic Character: Original stained glass details and low stone stoops accentuate the home’s vintage allure. The steeply pitched roof and simple cornices further elevate the property’s aesthetic, blending classic design with modern-day comforts.
Preserved Elegance: Enjoy a piece of history with all the features of a bygone era—well-maintained, this home retains its original charm while offering a unique canvas for personalization.
Location:
Nestled in the Manida Street Historic District, this residence is within close proximity to local shops, dining, and transportation options. The district itself exudes historical character, with a rich architectural heritage that will captivate those who appreciate the beauty of New York’s early 20th-century urban design.
Whether you’re drawn to its historical significance or its striking architectural beauty, 861 Manida Street offers an exceptional opportunity to own a home that reflects the grandeur of a bygone era, while still providing all the conveniences of modern living.
Schedule a tour today and step into history at 861 Manida Street!...
Contact an agent
Home facts
- Year built:1901
- Listing ID #:988860
- Added:1 day(s) ago
- Updated:April 22, 2026 at 01:53 PM
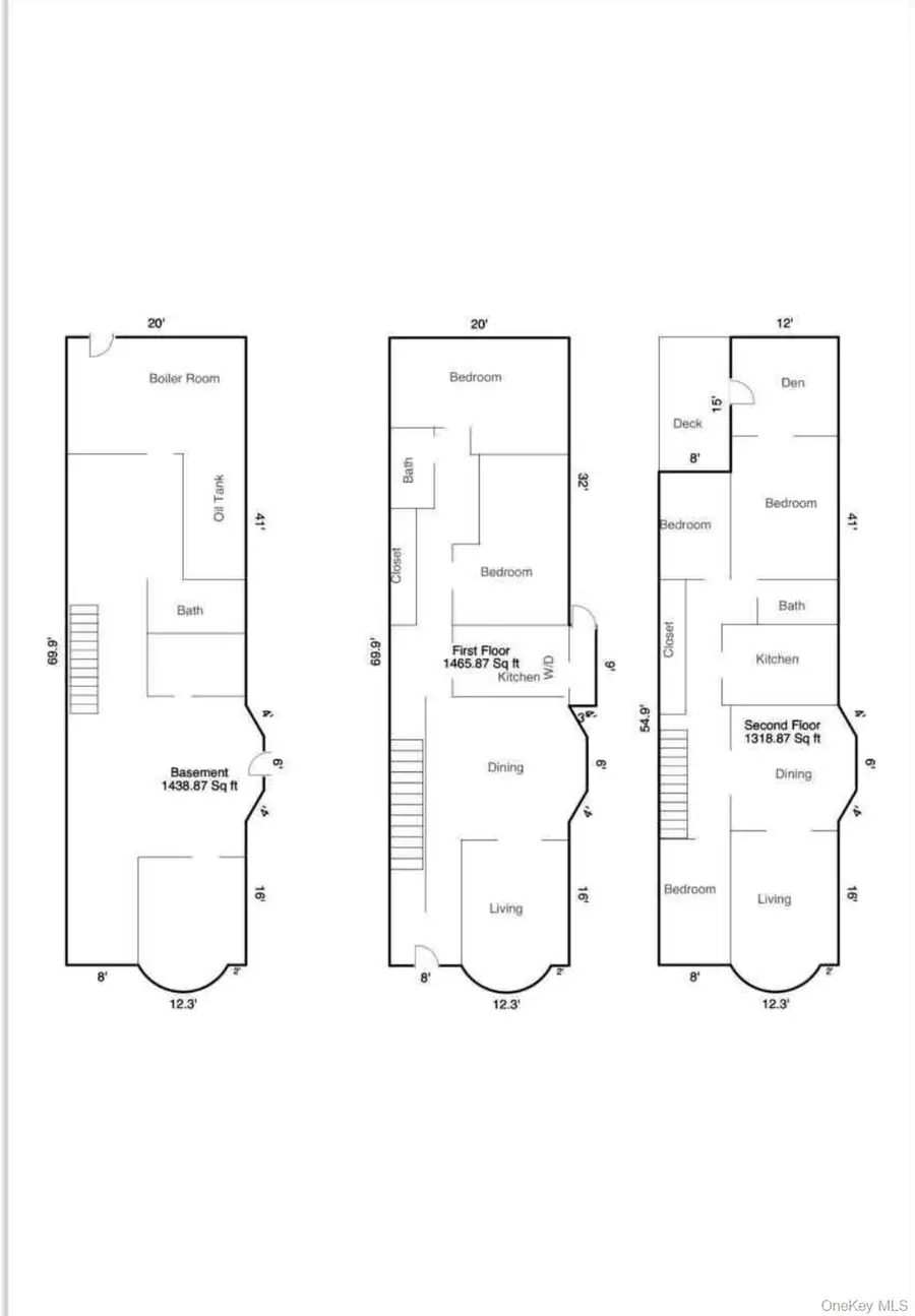
Rooms and interior
- Bedrooms:5
- Total bathrooms:3
- Full bathrooms:2
- Half bathrooms:1
- Rooms Total:12
- Flooring:Hardwood
- Kitchen Description:Refrigerator
- Bedroom Description:First Floor Bedroom
- Basement:Yes
- Basement Description:Partially Finished
- Living area:2,792 sq. ft.
Heating and cooling
- Heating:Oil
Structure and exterior
- Year built:1901
- Building area:2,792 sq. ft.
- Lot area:0.06 Acres
- Lot Features:Historic District
- Construction Materials:Brick
Schools
- High school:Bronx Community High School
- Middle school:South Bronx Preparatory
- Elementary school:Ps 154 Jonathan D Hyatt
Utilities
- Water:Public
- Sewer:Public Sewer
Finances and disclosures
- Price:$990,000
- Price per sq. ft.:$354.58
- Tax amount:$3,271 (2025)
Features and amenities
- Appliances:Refrigerator
Parking
- Parking description:On Street
New listings near 861 Manida Street
- New
$285,000Active1 beds 1 baths750 sq. ft.825 Morrison Avenue #10A, Bronx, NY 10473
MLS# 988817Listed by: LOCQUBE NEW YORK, INC. - New
$1,299,999Active3 beds 4 baths2,420 sq. ft.19 Island Point #19, Bronx, NY 10464
MLS# 987217Listed by: KELLER WILLIAMS REALTY GROUP - New
$500,000Active3 beds 3 baths1,494 sq. ft.103 Rochelle Street, Bronx, NY 10464
MLS# 988163Listed by: DAMICO GROUP REAL ESTATE - New
$150,000Active1 beds 1 baths612 sq. ft.99 Rochelle Street, Bronx, NY 10464
MLS# 988174Listed by: DAMICO GROUP REAL ESTATE - New
$250,000Active0.05 Acres2877 Harrington Avenue, Bronx, NY 10461
MLS# 988785Listed by: HAN TANG REALTY INC. - New
$379,000Active2 beds 1 baths900 sq. ft.825 Morrison Avenue #4G, Bronx, NY 10473
MLS# 988786Listed by: LOCQUBE NEW YORK, INC. - New
$250,000Active0.05 AcresHarrington Avenue, Bronx, NY 10461
MLS# 988790Listed by: HAN TANG REALTY INC. - New
$429,000Active2 beds 1 baths546 sq. ft.227 Stephens Avenue, Bronx, NY 10473
MLS# 988798Listed by: CRUZ NETWORK THE BRONX REALTY - New
$289,000Active0.06 Acres3148 Seymour Avenue, Bronx, NY 10469
MLS# 983025Listed by: F&G LIMITLESS REALTY LLC