23-08 College Point Boulevard, College Point, NY 11356

Local realty services provided by:CENTURY 21 Ed & Margaret Williams Realty
23-08 College Point Boulevard,College Point, NY 11356
$2,350,000
  • - Beds
  • - Baths
  • 1,140 sq. ft.
  • Multi-family
  • Active
Listed by: hui chen
Office: e realty international corp
MLS#:939579
Source:OneKey MLS

Price summary

  • Price:$2,350,000
  • Price per sq. ft.:$2,061.4

About this home

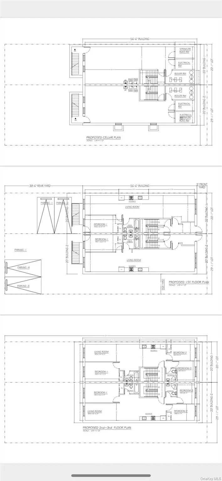
Exclusive New Development! Pre-Construction Three-Family Homes in College Point! All-concrete structure. Two brand-new three-family buildings, each with 4 electric meters. Building size approx. 20 x 56.6, lot 20 x 100. Layout: 1st Floor: 3BR/1BA 2nd & 3rd Floors: Each 4BR/2BA Basement: High ceiling ,large size Rooftop offers outdoor space for BBQ and stunning Manhattan skyline views. Great opportunity for investors!

Contact an agent

contact an agent

Yes, I would like more information. Please use and/or share my information with an independent agent affiliated with the CENTURY 21®  brand to contact me about my real estate needs. By clicking Send message, I request to be contacted by phone or text message and consent to being contacted by automated means. I understand that my consent to receive calls or texts is not a condition of purchasing any property, goods, or services. Alternatively, I understand that I can access real estate services by email or I can contact the agent myself.

If an independent agent affiliated with the CENTURY 21®  brand is not available in the area where I need assistance, I agree to be contacted by a real estate agent affiliated with another brand owned or licensed by Anywhere Real Estate (BHGRE® , Coldwell Banker® , Corcoran® , ERA® , Sotheby's International Realty® ).
 I acknowledge that I have read and agree to theTerms of useandPrivacy notice

Home facts

  • Year built:2025
  • Listing ID #:939579
  • Added:153 day(s) ago
  • Updated:May 01, 2026 at 10:47 AM

Rooms and interior

  • Bedroom Description:First Floor Bedroom
  • Basement:Yes
  • Basement Description:Finished, Full
  • Living area:1,140 sq. ft.

Heating and cooling

  • Cooling:Central Air
  • Heating:Electric
  • Central air:Yes

Structure and exterior

  • Year built:2025
  • Building area:1,140 sq. ft.
  • Lot Features:Stone/Brick Wall
  • Construction Materials:Brick

Utilities

  • Water:Public
  • Sewer:Public Sewer

Finances and disclosures

  • Price:$2,350,000
  • Price per sq. ft.:$2,061.4
  • Tax amount:$10,000 (2025)

Parking

  • Parking description:Driveway
Copyright 2026 OneKey MLS. All rights reserved. Listings courtesy of OneKey MLS as distributed by MLS GRID <lastMLSCheckTimestamp>. OneKey MLS provides content displayed here (“provided content”) on an “as is” basis and makes no representations or warranties regarding the provided content, including, but not limited to those of non-infringement, timeliness, accuracy, or completeness. Individuals and companies using information presented are responsible for verification and validation of information they utilize and present to their customers and clients. OneKey MLS will not be liable for any damage or loss resulting from use of the provided content or the products available through Portals, IDX, VOW, and/or Syndication. Recipients of this information shall not resell, redistribute, reproduce, modify, or otherwise copy any portion thereof without the expressed written consent of OneKey MLS.