49-19 169th Street, Fresh Meadows, NY 11365

Local realty services provided by:CENTURY 21 Shared Purpose
49-19 169th Street,Fresh Meadows, NY 11365
$1,198,000
  • 0.09 Acres
  • Lots / Land
  • Active
Listed by: xiao feng pan cbr
Office: winzone realty inc
MLS#:975754
Source:OneKey MLS

Price summary

  • Price:$1,198,000

About this home

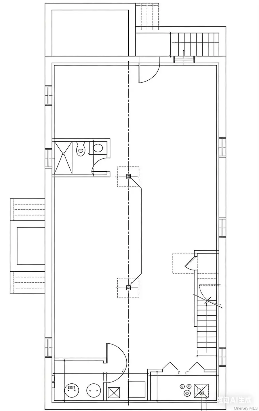
Prime development opportunity in an excellent school district of Flushing. Approved building plans are already in place, allowing the buyer to commence construction immediately in accordance with the approved design. ACP-5 has been completed, saving both time and approval costs. Ideal for owner occupancy with rental income potential. Per the approved plans, the interior will be approximately 1,456 sq ft, with space planned for a basement, first floor, second floor, and attic. Perfect for constructing a spacious and comfortable custom home. The neighborhood is quiet and well-established, with convenient amenities nearby, including schools, shopping, and transportation—an ideal choice for building a custom residence or investment development.

Contact an agent

contact an agent

Yes, I would like more information. Please use and/or share my information with an independent agent affiliated with the CENTURY 21®  brand to contact me about my real estate needs. By clicking Send message, I request to be contacted by phone or text message and consent to being contacted by automated means. I understand that my consent to receive calls or texts is not a condition of purchasing any property, goods, or services. Alternatively, I understand that I can access real estate services by email or I can contact the agent myself.

If an independent agent affiliated with the CENTURY 21®  brand is not available in the area where I need assistance, I agree to be contacted by a real estate agent affiliated with another brand owned or licensed by Anywhere Real Estate (BHGRE® , Coldwell Banker® , Corcoran® , ERA® , Sotheby's International Realty® ).
 I acknowledge that I have read and agree to theTerms of useandPrivacy notice

Home facts

  • Listing ID #:975754
  • Added:2 day(s) ago
  • Updated:March 27, 2026 at 01:28 AM

Structure and exterior

  • Lot area:0.09 Acres

Schools

  • High school:Bayside High School
  • Middle school:Bayside High School
  • Elementary school:James J Ambrose School

Finances and disclosures

  • Price:$1,198,000
  • Tax amount:$5,375 (2025)
Copyright 2026 OneKey MLS. All rights reserved. Listings courtesy of OneKey MLS as distributed by MLS GRID <lastMLSCheckTimestamp>. OneKey MLS provides content displayed here (“provided content”) on an “as is” basis and makes no representations or warranties regarding the provided content, including, but not limited to those of non-infringement, timeliness, accuracy, or completeness. Individuals and companies using information presented are responsible for verification and validation of information they utilize and present to their customers and clients. OneKey MLS will not be liable for any damage or loss resulting from use of the provided content or the products available through Portals, IDX, VOW, and/or Syndication. Recipients of this information shall not resell, redistribute, reproduce, modify, or otherwise copy any portion thereof without the expressed written consent of OneKey MLS.