105 E 64th Street, Manhattan, NY 10065
Local realty services provided by:CENTURY 21 Awaye Realty
105 E 64th Street,Manhattan, NY 10065
$9,800,000
- 6 Beds
- 9 Baths
- 9,104 sq. ft.
- Single family
- Pending
Listed by: jason s haber, lauren weigand
Office: compass
MLS#:RLS20067058
Source:NY_REBNY
Price summary
- Price:$9,800,000
- Price per sq. ft.:$1,076.45
About this home
*Fully Approved, Shovel-Ready Limestone Townhouse Off Park Avenue*
105 East 64th Street is a fully approved, shovel-ready redevelopment opportunity for end users or developers to create a world-class, limestone single-family townhouse. Situated on a distinguished tree-lined block just off Park Avenue, this home is located in one of the Upper East Side’s most coveted neighborhoods.
All approvals for the current plans (including Landmarks, DOB, structural, mechanical, plumbing, sprinkler, architectural, and foundation work) have been obtained, with new water service, storm and sewer connections in place, and electric and gas services filed with ConEd. Exterior protection is currently installed, supporting efficient mobilization following closing.
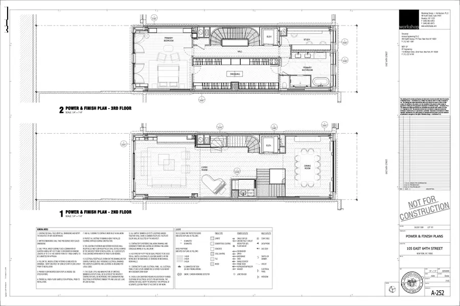
The proposed building would span over 9,100 gross square feet across seven beautifully proportioned levels. The approved plans envision a six-bedroom, seven-bathroom, two-half-bathroom single-family home that combines timeless architecture with modern functionality. A custom commercial-grade elevator, multi-story feature stairwell, and integrated service and storage areas provide exceptional flow for both entertaining and everyday living
The approved plans also include over 1,500 square feet of private outdoor space, encompassing a 30-foot-deep rear garden, a deeded front yard, multiple private terraces across the fifth and sixth levels, and a landscaped rooftop retreat with an outdoor kitchen and water feature. The layout balances grand entertaining spaces with intimate private quarters across its seven proposed floors.
- Lower Level: Wellness and recreation floor featuring a fully equipped gym, a temperature-controlled wine cellar, a full bathroom, dedicated staff laundry and linen storage, storage rooms, and direct access to the rear garden.
- Parlor Level: Elegant entry foyer with package room and mudroom leads to a discreet powder room, gourmet kitchen with pantry and wet bar, and an open-concept family room opening directly to the rear garden.
-Second Floor: Formal dining room and drawing room with a secondary pantry and bar for refined entertaining.
- Third Floor: Full-floor primary suite with a grand bedroom, private study, spa-like bathroom, and expansive dressing room.
- Fourth & Fifth Floors: Secondary and guest suites, each with ensuite baths, walk-in closets, and access to private terraces on the fifth floor.
- Sixth Floor: Lounge and home theatre with wet bar, powder room, and terrace overlooking the rear garden.
- Rooftop: Landscaped terrace featuring an outdoor kitchen, water feature, and skyline views.
Designed with smart-home infrastructure for a centralized management system integrating lighting, climate, window treatments, security, AV, and irrigation. Multi-zone HVAC, radiant-floor heating, and humidity control ensure year-round comfort, supported by a fully engineered and approved mechanical framework that is design-ready for implementation.
Architectural design details include a limestone façade, high-performance steel windows, and a Rheinzink mansard roof, with masonry and limestone cladding along the rear and sides. Hand-laid stone paving would enhance the front and rear gardens. The projected build timeline is approximately 16 to 20 months.
Property Highlights:
- Lot: 20'-10" × 100'-5" (approx. 2,092 SF)
- Approved for: 9,104 GSF (existing 7,570 GSF)
- Configuration: 6 Bedrooms | 7 Full Bathrooms | 2 Half Bathrooms
- Outdoor: Rear yard, terraces on the 5th & 6th floors, full rooftop kitchen & water feature
- Smart Building Systems: Multi-zone HVAC, radiant floors, humidity control
- Approvals: Landmarks, DOB, structural, mechanical, plumbing, and electrical
A complete procurement package is available by request....
Contact an agent
Home facts
- Year built:1920
- Listing ID #:RLS20067058
- Added:97 day(s) ago
- Updated:April 22, 2026 at 04:53 PM
Rooms and interior
- Bedrooms:6
- Total bathrooms:9
- Full bathrooms:7
- Half bathrooms:2
- Rooms Total:14
- Living area:9,104 sq. ft.
Structure and exterior
- Year built:1920
- Building area:9,104 sq. ft.
- Exterior Features:Building Garden
Finances and disclosures
- Price:$9,800,000
- Price per sq. ft.:$1,076.45
- Tax amount:$119,964
Features and amenities
- Smart home:Yes
New listings near 105 E 64th Street
- New
$850,000Active1 beds 1 baths175 E 79th Street #2C, Manhattan, NY 10075
MLS# RLS20082822Listed by: CORCORAN GROUP - New
$1,495,000Active1 beds 2 baths984 sq. ft.44 E 12th Street #9A, Manhattan, NY 10003
MLS# RLS20086021Listed by: KELLER WILLIAMS NYC - New
$1,725,000Active2 beds 2 baths1,436 sq. ft.58 W 58th Street #7C, Manhattan, NY 10019
MLS# RLS20086023Listed by: BROWN HARRIS STEVENS RESIDENTIAL SALES LLC - New
$10,500,000Active4 beds 5 baths1 sq. ft.126 E 74th Street, Manhattan, NY 10021
MLS# RLS20086025Listed by: SOTHEBYS INTERNATIONAL REALTY - New
$750,000Active1 beds 1 baths550 sq. ft.120 E 90th Street #7B, Manhattan, NY 10128
MLS# RLS20086026Listed by: COMPASS - New
$5,995,000Active4 beds 4 baths410 W 24th Street #19BCE, Manhattan, NY 10011
MLS# RLS20086032Listed by: DOUGLAS ELLIMAN REAL ESTATE - Open Sun, 12 to 2pmNew
$629,000Active-- beds 1 baths123 W 80th Street #BF, Manhattan, NY 10024
MLS# RLS20086034Listed by: SERHANT - New
$3,000,000Active2 beds 3 baths115,306 sq. ft.10 E 70th Street #10D, Manhattan, NY 10021
MLS# RLS20086039Listed by: SOTHEBYS INTERNATIONAL REALTY - New
$545,000Active-- beds 1 baths245 E 24th Street #9C, Manhattan, NY 10010
MLS# RLS20086043Listed by: BROWN HARRIS STEVENS RESIDENTIAL SALES LLC
$3,750,000Pending1 beds 2 baths995 sq. ft.303 Park Avenue #2417, Manhattan, NY 10022
MLS# RLS20086028Listed by: DOUGLAS ELLIMAN REAL ESTATE