90 Fenimore Road, New Rochelle, NY 10804

Local realty services provided by:CENTURY 21 Hudson Valley Realty
90 Fenimore Road,New Rochelle, NY 10804
$865,000
  • 5 Beds
  • 5 Baths
  • - sq. ft.
  • Single family
  • Sold
Listed by: alissa kirk
Office: howard hanna rand realty
MLS#:927098
Source:OneKey MLS

Sorry, we are unable to map this address


Price summary

  • Price:$865,000

About this home

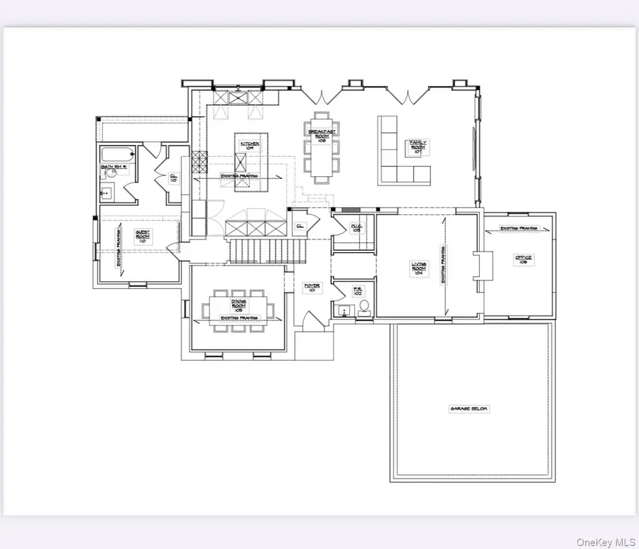
This is a shovel ready approved property for an addition and renovation expansion. This incredible home is a mix of old and new mediterranean with a contemporary transitional design! The spectacular floor plan checks all the boxes for every discerning buyer. The original home on the property is a 2 bedroom home and the attached plans approved are for a 5 bedroom 4.1 bath home with existing gas and water and electric. Rare opportunity to have approved plans and be shovel ready for a builder to complete the build by summer 2026! Beautiful flat private property in the back with complete landscaping evergreen screening just completed. Setbacks allow for a pool. Architectural plans and engineering plans are completed. Just pick your contractor/builder. Property is available to walk. Full Plans are available for viewing in the office. No interior showings until buyer has walked the property, reviewed plans and sent preapproval or proof of funds.

Contact an agent

contact an agent

Yes, I would like more information. Please use and/or share my information with an independent agent affiliated with the CENTURY 21®  brand to contact me about my real estate needs. By clicking Send message, I request to be contacted by phone or text message and consent to being contacted by automated means. I understand that my consent to receive calls or texts is not a condition of purchasing any property, goods, or services. Alternatively, I understand that I can access real estate services by email or I can contact the agent myself.

If an independent agent affiliated with the CENTURY 21®  brand is not available in the area where I need assistance, I agree to be contacted by a real estate agent affiliated with another brand owned or licensed by Anywhere Real Estate (BHGRE® , Coldwell Banker® , Corcoran® , ERA® , Sotheby's International Realty® ).
 I acknowledge that I have read and agree to theTerms of useandPrivacy notice

Home facts

  • Year built:1929
  • Listing ID #:927098
  • Added:132 day(s) ago
  • Updated:March 03, 2026 at 08:46 PM

Rooms and interior

  • Bedrooms:5
  • Total bathrooms:5
  • Full bathrooms:4
  • Half bathrooms:1
  • Rooms Total:9
  • Dining Description:Eat-In Kitchen, Formal Dining
  • Kitchen Description:Eat-in Kitchen, Kitchen Island
  • Bedroom Description:First Floor Bedroom
  • Basement:Yes
  • Basement Description:Partial, Unfinished

Heating and cooling

  • Cooling:Central Air
  • Heating:Forced Air

Structure and exterior

  • Year built:1929
  • Architectural Style:Contemporary, Mediterranean

Schools

  • High school:New Rochelle High School
  • Middle school:Albert Leonard Middle School
  • Elementary school:William B Ward Elementary School

Utilities

  • Water:Public, Water Available
  • Sewer:Public Sewer

Finances and disclosures

  • Price:$865,000
  • Tax amount:$20,000 (2025)

Features and amenities

  • Laundry features:Washer/Dryer Hookup
  • Amenities:Cathedral Ceiling(s), Entrance Foyer, High Ceilings, Open Floorplan, Walk-In Closet(s)
Copyright 2026 OneKey MLS. All rights reserved. Listings courtesy of OneKey MLS as distributed by MLS GRID <lastMLSCheckTimestamp>. OneKey MLS provides content displayed here (“provided content”) on an “as is” basis and makes no representations or warranties regarding the provided content, including, but not limited to those of non-infringement, timeliness, accuracy, or completeness. Individuals and companies using information presented are responsible for verification and validation of information they utilize and present to their customers and clients. OneKey MLS will not be liable for any damage or loss resulting from use of the provided content or the products available through Portals, IDX, VOW, and/or Syndication. Recipients of this information shall not resell, redistribute, reproduce, modify, or otherwise copy any portion thereof without the expressed written consent of OneKey MLS.