94 Thompson Street #2T, New York, NY 10012
Local realty services provided by:CENTURY 21 Awaye Realty
94 Thompson Street #2T,Manhattan, NY 10012
$7,995,000
- 3 Beds
- 3 Baths
- - sq. ft.
- Co-op
- Active
Listed by: nadine adamson
Office: brown harris stevens residential sales llc.
MLS#:RLS20073590
Source:NY_REBNY
Price summary
- Price:$7,995,000
About this home
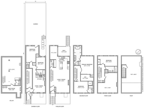
Nestled on a picturesque residential block in SoHo this exquisitely designed unit features 3,500 sq ft 3BR+/2.5BA with 12' ceilings, huge entertaining space, a private landscaped back terrace, top of the line finishes, a keyed elevator, and ample extras. Recently renovated with an eye for detail, this vast apartment has been designed to showcase original loft details such as exposed wood beams, a roaring wood burning fireplace and cast iron columns as well as modern features which include a screening room with professional AV wiring, extensive built-in storage and a massive laundry/mud room. The chef's kitchen is expertly designed with Viking appliances, a vast 17' white marble island with built-in seating area, and cleverly disguised wine fridge, Miele expresso machine and more. The king-sized Primary Suite has a dream walk-in closet, a huge en-suite 5 fixture bath with double vanities, walk-in shower and a tub for two, all overlooking the gloriously lush private terrace in back.<br> <br> 94 Thompson Street/420 West Broadway is well known as the SoHo Gallery Building - which was the epicenter of the SoHo art scene in the 1960's, 70's, and 80's. It is most well-known for housing the galleries of Leo Castelli and Sonnabend who built the careers of Jasper Johns, Roy Lichtenstein and many others. Today the SoHo Gallery Building is a 7-Story, 9-unit cooperative with two entrances (one private, at 94 Thompson, and one with the convenience of a part-time doorman, at 420 West Broadway) and a full-time super.
Contact an agent
Home facts
- Listing ID #:RLS20073590
- Added:1 day(s) ago
- Updated:February 25, 2026 at 05:06 PM
Rooms and interior
- Bedrooms:3
- Total bathrooms:3
- Full bathrooms:2
- Half bathrooms:1
Finances and disclosures
- Price:$7,995,000
New listings near 94 Thompson Street #2T
- New
$2,495,000Active3 beds 3 baths1,670 sq. ft.188 E 64th Street #1402-1403, Manhattan, NY 10065
MLS# RLS20072947Listed by: PETER ASHE - Open Sun, 11:30am to 12:30pmNew
$600,000Active1 beds 1 baths78 8th Avenue #2K, Brooklyn, NY 11215
MLS# RLS20070445Listed by: COMPASS - Open Sun, 2 to 3:30pmNew
$1,850,000Active2 beds 2 baths908 sq. ft.300 5th Street #PH, Brooklyn, NY 11215
MLS# RLS20073569Listed by: DOUGLAS ELLIMAN REAL ESTATE - Open Fri, 12 to 2pmNew
$1,100,000Active1 beds 1 baths120 E 81st Street #9G, Manhattan, NY 10028
MLS# RLS20073573Listed by: AT THE FIRM RESIDENTIAL LLC - New
$765,000Active1 beds 1 baths850 sq. ft.123 E 37th Street #3C, Manhattan, NY 10016
MLS# RLS20073578Listed by: DOUGLAS ELLIMAN REAL ESTATE - Open Sun, 12:30 to 2pmNew
$1,300,000Active2 beds 1 baths235 Lincoln Place #2E, Brooklyn, NY 11217
MLS# RLS20073579Listed by: COMPASS - Open Sun, 12:30 to 2pmNew
$540,000Active-- beds 1 baths235 Lincoln Place #2D, Brooklyn, NY 11217
MLS# RLS20073580Listed by: COMPASS - New
$3,050,000Active2 beds 3 baths1,579 sq. ft.720 W End Avenue #9H, Manhattan, NY 10025
MLS# RLS20073582Listed by: CORCORAN SUNSHINE MARKETING GROUP - New
$2,395,000Active6 beds 6 baths3,866 sq. ft.599 Van Buren Street, Brooklyn, NY 11221
MLS# RLS20073583Listed by: COMPASS - New
$4,420,000Active6 beds 7 baths5,000 sq. ft.52 E End Avenue #12/14FL, Manhattan, NY 10028
MLS# RLS20073584Listed by: BROWN HARRIS STEVENS RESIDENTIAL SALES LLC