35 Johnston Street, Newburgh, NY 12550

Local realty services provided by:CENTURY 21 Ed & Margaret Williams Realty
35 Johnston Street,Newburgh, NY 12550
$115,000
  • 0.06 Acres
  • Lots / Land
  • Active
Listed by: daniel gilbert, eli a. vaknin
Office: brick and mortar re llc.
MLS#:H6295173
Source:OneKey MLS

Price summary

  • Price:$115,000

About this home

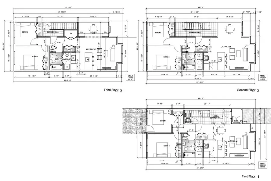
This is a rare opportunity to purchase an all ready approved vacant lot with approvals to build a three family property in the City of Newburgh. Approvals for zoning and ARC are included, and planning is approved as of right. Finalized construction plans are needed to get a building permit. Photos of the building rendered are the approved designs. Connections to sewer, water, gas and electric are available to bring to the property from the street. Agent discloses interest in property. There are many amenities close by, as this property is located in downtown Newburgh. There are many charming shops and cafes on the Liberty St corridor. Within the downtown area you can also find Downing Park, SUNY Orange, Mount St. Mary's College, 2 Alices Coffee Lounge, shopping, cafes, restaurants, galleries, studio rentals, bodegas, post office, bars, George Washington Park Historic sight, Newburgh Waterfront and the Ferry to the Metro North Train Station.

Contact an agent

contact an agent

Yes, I would like more information. Please use and/or share my information with an independent agent affiliated with the CENTURY 21®  brand to contact me about my real estate needs. By clicking Send message, I request to be contacted by phone or text message and consent to being contacted by automated means. I understand that my consent to receive calls or texts is not a condition of purchasing any property, goods, or services. Alternatively, I understand that I can access real estate services by email or I can contact the agent myself.

If an independent agent affiliated with the CENTURY 21®  brand is not available in the area where I need assistance, I agree to be contacted by a real estate agent affiliated with another brand owned or licensed by Anywhere Real Estate (BHGRE® , Coldwell Banker® , Corcoran® , ERA® , Sotheby's International Realty® ).
 I acknowledge that I have read and agree to theTerms of useandPrivacy notice

Home facts

  • Listing ID #:H6295173
  • Added:727 day(s) ago
  • Updated:March 26, 2026 at 07:28 PM

Structure and exterior

  • Lot area:0.06 Acres
  • Lot Features:Cleared, Historic District

Schools

  • High school:Newburgh Free Academy
  • Middle school:Heritage Middle School

Utilities

  • Water:Public, Water Available
  • Sewer:Public Sewer, Sewer Available

Finances and disclosures

  • Price:$115,000
  • Tax amount:$665 (2023)
Copyright 2026 OneKey MLS. All rights reserved. Listings courtesy of OneKey MLS as distributed by MLS GRID <lastMLSCheckTimestamp>. OneKey MLS provides content displayed here (“provided content”) on an “as is” basis and makes no representations or warranties regarding the provided content, including, but not limited to those of non-infringement, timeliness, accuracy, or completeness. Individuals and companies using information presented are responsible for verification and validation of information they utilize and present to their customers and clients. OneKey MLS will not be liable for any damage or loss resulting from use of the provided content or the products available through Portals, IDX, VOW, and/or Syndication. Recipients of this information shall not resell, redistribute, reproduce, modify, or otherwise copy any portion thereof without the expressed written consent of OneKey MLS.