TBD Fosler - Lot 1 Road, Plattekill, NY 12568

Local realty services provided by:CENTURY 21 Kafcos Realty
TBD Fosler - Lot 1 Road,Plattekill, NY 12568
$199,999
  • 18.8 Acres
  • Lots / Land
  • Pending
Listed by: michael c kubala
Office: coldwell banker realty
MLS#:951945
Source:OneKey MLS

Price summary

  • Price:$199,999

About this home

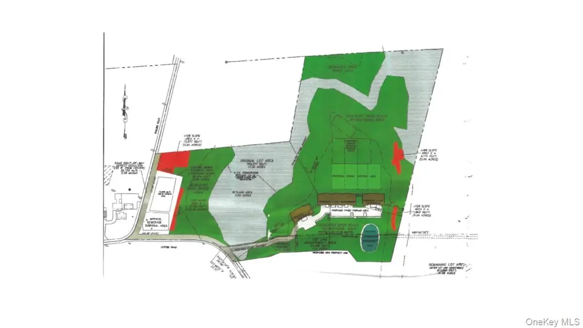
BUILDERS, DEVELOPERS, AND INVESTORS - TAKE NOTICE. This 18.8 acre property offers a rare opportunity with significant groundwork already completed. The current owner previously secured permits and approved plans for a 15-Unit Townhouse development. Although the permits have since expired, the approved plans will be included with the sale. Substantial improvements have already been made, including two drilled wells and a constructed roadway, reducing both time and upfront development costs for the next owner. An adjacent parcel (MLS #952390) totaling 25.800 acres is also available for purchase, creating the potential for an expanded project or complementary development. This parcel features approximately 512 feet of road frontage and is zoned RR1.5, offering flexibility for residential development consistent with local zoning regulations.

Contact an agent

contact an agent

Yes, I would like more information. Please use and/or share my information with an independent agent affiliated with the CENTURY 21®  brand to contact me about my real estate needs. By clicking Send message, I request to be contacted by phone or text message and consent to being contacted by automated means. I understand that my consent to receive calls or texts is not a condition of purchasing any property, goods, or services. Alternatively, I understand that I can access real estate services by email or I can contact the agent myself.

If an independent agent affiliated with the CENTURY 21®  brand is not available in the area where I need assistance, I agree to be contacted by a real estate agent affiliated with another brand owned or licensed by Anywhere Real Estate (BHGRE® , Coldwell Banker® , Corcoran® , ERA® , Sotheby's International Realty® ).
 I acknowledge that I have read and agree to theTerms of useandPrivacy notice

Home facts

  • Listing ID #:951945
  • Added:100 day(s) ago
  • Updated:May 01, 2026 at 07:47 AM

Structure and exterior

  • Lot area:18.8 Acres

Schools

  • High school:Wallkill Senior High School
  • Middle school:John G Borden Middle School
  • Elementary school:Plattekill Elementary School

Finances and disclosures

  • Price:$199,999
  • Tax amount:$5,412 (2025)
Copyright 2026 OneKey MLS. All rights reserved. Listings courtesy of OneKey MLS as distributed by MLS GRID <lastMLSCheckTimestamp>. OneKey MLS provides content displayed here (“provided content”) on an “as is” basis and makes no representations or warranties regarding the provided content, including, but not limited to those of non-infringement, timeliness, accuracy, or completeness. Individuals and companies using information presented are responsible for verification and validation of information they utilize and present to their customers and clients. OneKey MLS will not be liable for any damage or loss resulting from use of the provided content or the products available through Portals, IDX, VOW, and/or Syndication. Recipients of this information shall not resell, redistribute, reproduce, modify, or otherwise copy any portion thereof without the expressed written consent of OneKey MLS.