Lot 15 Gail Circle, Rocky Point, NY 11778
Local realty services provided by:CENTURY 21 ICON
Lot 15 Gail Circle,Rocky Point, NY 11778
$780,000
- 3 Beds
- 2 Baths
- 1,428 sq. ft.
- Single family
- Pending
Listed by: bryan j. karp cbr, martina scheben
Office: coldwell banker american homes
MLS#:987148
Source:OneKey MLS
Price summary
- Price:$780,000
- Price per sq. ft.:$546.22
About this home
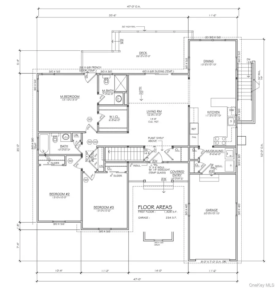
New Construction – To Be Built - The Terra Collection at The Estates at Rocky Point Welcome to The Terra Hudson Ranch, a beautifully designed one-level ranch home by Long Island’s premier builder, Terra Construction Group, located in the desirable Estates at Rocky Point. This thoughtfully crafted home offers approximately 1,428 square feet of comfortable living space, featuring 3 bedrooms, 2 full bathrooms, a 1-car garage, partial basement, mudroom/laundry room, and soaring ceilings that enhance the open feel of the home. The bright and inviting layout showcases a dramatic living room with 14-foot ceilings, creating a spacious and airy focal point for the home. Elegant red oak or engineered white oak flooring, custom interior moldings, and an open-concept design seamlessly connect the living room, dining area, and kitchen—perfect for both everyday living and entertaining. The designer kitchen features shaker-style maple cabinetry with 42” wall cabinets, quartz countertops, ceramic tile backsplash, stainless steel sink with Kohler or Delta pull-out faucet, and a premium stainless appliance package including a 36” refrigerator with ice and water, 30” gas range with stainless canopy hood, built-in microwave, and stainless dishwasher. The primary suite offers a private retreat featuring a custom tiled shower with glass door, ceramic tile floors, custom maple vanity with granite or quartz countertop, and Kohler or Delta fixtures. Two additional bedrooms provide comfortable space for guests, or a home office. Additional conveniences include a dedicated mudroom with laundry area, providing practical everyday functionality directly off the garage. Built with quality and efficiency in mind, the home includes central air conditioning, energy-efficient insulation, PEX plumbing, and high-quality construction throughout. Exterior highlights include maintenance-free vinyl siding, 30-year architectural roof shingles, vinyl double-hung windows, asphalt driveway with paver border and walkway, underground utilities, seeded lawn, and an in-ground sprinkler system (up to 10 zones). The home is also solar-ready for future energy efficiency. Enjoy the ease of one-floor living with dramatic ceiling heights, modern finishes, and quality craftsmanship in this exciting new community....
Contact an agent
Home facts
- Year built:2026
- Listing ID #:987148
- Added:5 day(s) ago
- Updated:April 24, 2026 at 07:46 AM
Rooms and interior
- Bedrooms:3
- Total bathrooms:2
- Full bathrooms:2
- Rooms Total:6
- Dining Description:Eat-In Kitchen, Formal Dining
- Kitchen Description:Chefs Kitchen, Dishwasher, Eat-in Kitchen, Microwave, Refrigerator
- Bedroom Description:First Floor Bedroom, Master Downstairs
- Basement:Yes
- Basement Description:Partial
- Living area:1,428 sq. ft.
Heating and cooling
- Cooling:Central Air
- Heating:Forced Air, Natural Gas
- Central air:Yes
Structure and exterior
- Year built:2026
- Building area:1,428 sq. ft.
- Lot area:0.39 Acres
- Architectural Style:Ranch
- Construction Materials:Frame
Schools
- High school:Rocky Point High School
- Middle school:Rocky Point Middle School
- Elementary school:Joseph A Edgar Intermediate Sch
Utilities
- Water:Public
- Sewer:Cesspool
Finances and disclosures
- Price:$780,000
- Price per sq. ft.:$546.22
Features and amenities
- Appliances:Dishwasher, Microwave, Refrigerator
- Laundry features:Washer/Dryer Hookup
- Amenities:Cathedral Ceiling(s), Entrance Foyer, High Ceilings, Open Floorplan, Walk-In Closet(s)
Parking
- Parking description:Attached
- Garage:Yes
- Garage spaces:1
New listings near Lot 15 Gail Circle
- Open Sat, 12:30 to 2:30pmNew
$550,000Active3 beds 2 baths1,113 sq. ft.43 Comus Road, Rocky Point, NY 11778
MLS# 989784Listed by: REALTY CONNECT USA L I INC - New
$199,000Active1 beds 1 baths700 sq. ft.53 Rocky Point Yaphank Road #13, Rocky Point, NY 11778
MLS# 988950Listed by: ALIANO REAL ESTATE - New
$549,990Active3 beds 2 baths1,228 sq. ft.215 Hallock Landing Road, Rocky Point, NY 11778
MLS# 987848Listed by: DOUGLAS ELLIMAN REAL ESTATE - Open Sat, 11am to 1pmNew
$569,000Active2 beds 1 baths1,494 sq. ft.2 Isis Road, Rocky Point, NY 11778
MLS# 987709Listed by: COLDWELL BANKER AMERICAN HOMES - New
$399,999Active1 beds 1 baths632 sq. ft.415 Locust Drive, Rocky Point, NY 11778
MLS# 985288Listed by: TOM CRIMMINS REALTY, LTD - New
$550,000Active3 beds 1 baths1,000 sq. ft.31 Apricot Road, Rocky Point, NY 11778
MLS# 987110Listed by: VORO LLC - New
$575,000Active6 beds 3 baths2,430 sq. ft.8 Mahogany Road, Rocky Point, NY 11778
MLS# 986724Listed by: RE/MAX SIGNATURE REAL ESTATE - New
$469,000Active3 beds 2 baths1,200 sq. ft.14 Sunburst Drive, Rocky Point, NY 11778
MLS# 982863Listed by: AMERICAN WAY REAL ESTATE INC - New
$549,999Active3 beds 2 baths1,940 sq. ft.8 Water Road, Rocky Point, NY 11778
MLS# 986185Listed by: SIGNATURE PREMIER PROPERTIES