Lot 38 Gail Circle, Rocky Point, NY 11778
Local realty services provided by:CENTURY 21 Hudson Valley Realty
Lot 38 Gail Circle,Rocky Point, NY 11778
$999,999
- 4 Beds
- 4 Baths
- 2,855 sq. ft.
- Single family
- Active
Listed by: bryan j. karp cbr, martina scheben
Office: coldwell banker american homes
MLS#:968500
Source:OneKey MLS
Price summary
- Price:$999,999
- Price per sq. ft.:$304.41
About this home

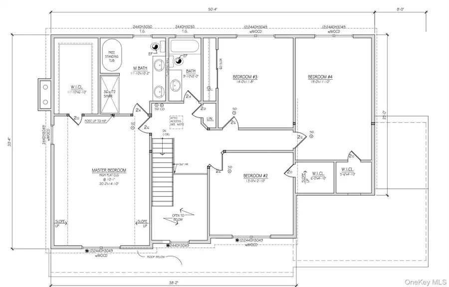
New Construction – To Be Built - The Terra Collection at The Estates at Rocky Point Welcome to The Terra Birmingham Plus with home office, an exceptional new construction colonial by Long Island's premier builder, Terra Construction Group. This beautifully designed home offers approximately 2,855 square feet of thoughtfully crafted living space, featuring 4 bedrooms, 3.5 bathrooms, a full basement with outside entrance, and a 2-car garage. The open and inviting floor plan showcases 9-foot ceilings on the first floor, elegant 4” red oak or 7” engineered white oak flooring, custom interior moldings, and a gas fireplace with mantel and tile surround. Spacious living areas create the perfect setting for entertaining and everyday living. The designer kitchen is equipped with shaker-style maple cabinetry with 42” wall cabinets, quartz countertops, ceramic tile backsplash, stainless steel sink with Kohler or Delta pull-out faucet, and a premium appliance package including a 36” refrigerator with ice and water, 30” gas range with stainless canopy hood, built-in microwave, and stainless dishwasher. First floor home office with full bathroom is perfect for a multi-generational setup. The luxurious primary suite features a custom tiled shower with glass door, soaking tub, ceramic tile floors, and a custom maple vanity with granite or quartz countertop and Kohler/Delta fixtures. Additional bedrooms include plush carpeting and abundant closet space with melamine shelving systems. Built with quality and efficiency in mind, the home includes two-zone central air conditioning, two-zone water coil heating with tankless hot water system, PEX plumbing, and a full security system. Exterior features include maintenance-free vinyl siding, 30-year architectural roof shingles, vinyl double-hung windows, asphalt driveway with paver border and walkway, underground utilities, in-ground sprinkler system (up to 10 zones), and seeded lawn. The home is also solar ready for future energy efficiency. Experience the opportunity to build your dream home with Terra Construction Group, known for exceptional craftsmanship and attention to detail, in one of Rocky Point's most exciting new communities....
Contact an agent
Home facts
- Year built:2026
- Listing ID #:968500
- Added:54 day(s) ago
- Updated:April 30, 2026 at 10:43 AM
Rooms and interior
- Bedrooms:4
- Total bathrooms:4
- Full bathrooms:3
- Half bathrooms:1
- Rooms Total:10
- Flooring:Hardwood
- Dining Description:Eat-In Kitchen
- Bathrooms Description:Double Vanity
- Kitchen Description:Chefs Kitchen, Dishwasher, Eat-in Kitchen, Kitchen Island, Microwave, Pantry, Refrigerator, Stainless Steel Appliance(s)
- Bedroom Description:First Floor Bedroom
- Basement:Yes
- Basement Description:Full, Unfinished, Walk-Out Access
- Living area:2,855 sq. ft.
Heating and cooling
- Cooling:Central Air
- Heating:Forced Air, Natural Gas
- Central air:Yes
Structure and exterior
- Year built:2026
- Building area:2,855 sq. ft.
- Lot area:0.34 Acres
- Architectural Style:Colonial
- Construction Materials:Frame
Schools
- High school:Rocky Point High School
- Middle school:Rocky Point Middle School
- Elementary school:Joseph A Edgar Intermediate Sch
Utilities
- Water:Public
- Sewer:Cesspool
Finances and disclosures
- Price:$999,999
- Price per sq. ft.:$304.41
Features and amenities
- Appliances:Dishwasher, Dryer, Microwave, Refrigerator, Stainless Steel Appliance(s), Tankless Water Heater
- Laundry features:Dryer, Washer/Dryer Hookup
- Amenities:Double Vanity, High Ceilings, Open Floorplan, Walk-In Closet(s)
Parking
- Parking description:Attached, Driveway, Garage
- Garage:Yes
- Garage spaces:2
New listings near Lot 38 Gail Circle
- New
$399,000Active3 beds 2 baths960 sq. ft.44 Somerset Road, Rocky Point, NY 11778
MLS# 992791Listed by: LEWIS REALTY GROUP LLC - Open Sun, 12 to 2pmNew
$538,000Active3 beds 3 baths1,812 sq. ft.24 Lavender Road, Rocky Point, NY 11778
MLS# 992722Listed by: MICHAEL AJ LANGER - Open Sat, 2 to 4pmNew
$449,000Active3 beds 1 baths1,061 sq. ft.77 Nautilus Drive, Rocky Point, NY 11778
MLS# 991715Listed by: HOWARD HANNA COACH - New
$450,000Active3 beds 2 baths1,749 sq. ft.6 Willow Road, Rocky Point, NY 11778
MLS# 992183Listed by: EAST END LUXURY LTD - New
$612,000Active3 beds 1 baths1,392 sq. ft.223 Locust Drive, Rocky Point, NY 11778
MLS# 990249Listed by: KELLER WILLIAMS RTY GOLD COAST - New
$299,000Active3 beds 1 baths954 sq. ft.98 Broadway, Rocky Point, NY 11778
MLS# 991511Listed by: SIGNATURE PREMIER PROPERTIES
$839,999Pending4 beds 3 baths1,873 sq. ft.Lot 11 Gail Circle, Rocky Point, NY 11778
MLS# 990713Listed by: COLDWELL BANKER AMERICAN HOMES- New
$929,999Active4 beds 3 baths2,487 sq. ft.Lot 36 Gail Circle, Rocky Point, NY 11778
MLS# 990723Listed by: COLDWELL BANKER AMERICAN HOMES - New
$550,000Active3 beds 2 baths1,113 sq. ft.43 Comus Road, Rocky Point, NY 11778
MLS# 989784Listed by: REALTY CONNECT USA L I INC - Open Sun, 1 to 4pmNew
$185,000Active1 beds 1 baths700 sq. ft.53 Rocky Point Yaphank Road #13, Rocky Point, NY 11778
MLS# 988950Listed by: ALIANO REAL ESTATE