6956 Wharton Road, Holland, OH 43528
Local realty services provided by:CENTURY 21 Bolte Real Estate
Listed by: gerald poindexter
Office: key realty ltd
MLS#:10005904
Source:OH_TBR
Price summary
- Price:$379,900
- Price per sq. ft.:$227.49
About this home
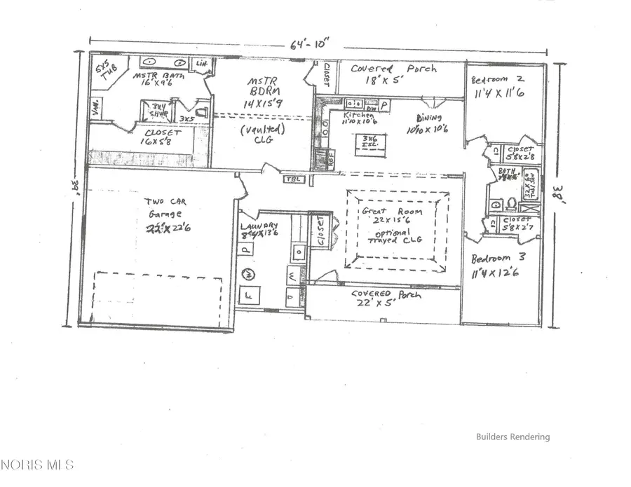
Incredible opportunity to build your brand new 3-bedroom ranch home on a wooded 2.38-acre lot in Holland. With a builder's contract secured, the builder can then start building this wonderful ranch with an open layout and a split bedroom concept. Open Great Room, wonderful kitchen with granite counter tops. Spacious Primary Suite with Ensuite and walk-in closet. Covered Porch that overlooks the woods. This way, you can make your own selections and help design your new home the way you would like it. All images are renderings offering what could be built. This offering is for a contract build with the landowner only. Landscape allowances. All rooms sizes and square footage are approximate.
Contact an agent
Home facts
- Listing ID #:10005904
- Added:1 day(s) ago
- Updated:April 03, 2026 at 06:25 PM
Rooms and interior
- Bedrooms:3
- Total bathrooms:2
- Full bathrooms:2
- Rooms Total:7
- Flooring:Carpet, Laminate
- Bathrooms Description:Primary Bathroom
- Kitchen Description:Dishwasher, Disposal
- Basement Description:Crawl Space
- Living area:1,670 sq. ft.
Heating and cooling
- Cooling:Central Air
- Heating:Forced Air, Natural Gas
Structure and exterior
- Roof:Asphalt
- Building area:1,670 sq. ft.
- Lot area:2.39 Acres
- Lot Features:Wooded
- Architectural Style:Ranch, Traditional
- Construction Materials:Vinyl Siding
- Exterior Features:Covered Porch
- Foundation Description:Crawl Space
- Levels:One
Schools
- High school:Springfield
- Middle school:Springfield
- Elementary school:Crissey
Utilities
- Water:Public
- Sewer:Public Sewer, Sanitary Sewer
Finances and disclosures
- Price:$379,900
- Price per sq. ft.:$227.49
Features and amenities
- Appliances:Dishwasher, Disposal
- Laundry features:Electric Dryer Hookup, Gas Dryer Hookup, Main Level
- Amenities:Double Pane Windows, Open Floorplan, Walk-In Closet(s)
Parking
- Total parking spaces:6
- Parking description:Additional Parking, Asphalt, Attached Garage, Driveway, Garage Door Opener
- Garage:Yes
- Garage spaces:2
New listings near 6956 Wharton Road
$104,900Active1 beds 1 baths732 sq. ft.2001 Perrysburg Holland Road #118, Holland, OH 43528
MLS# 10001893Listed by: LPG REALTY- New
$55,000Active1 beds 1 baths576 sq. ft.1140 S Mccord Road #Apt A3, Holland, OH 43528
MLS# 10005694Listed by: HARMONY REALTY GROUP - New
$55,000Active1 beds 1 baths576 sq. ft.1140 S Mccord Road #E-11, Holland, OH 43528
MLS# 10005702Listed by: HARMONY REALTY GROUP - New
$55,000Active1 beds 1 baths576 sq. ft.1140 Mccord Road #Apt H-5, Holland, OH 43528
MLS# 10005706Listed by: HARMONY REALTY GROUP - New
$103,334Active3 beds 2 baths1,408 sq. ft.7010 Dunn Drive, Holland, OH 43528
MLS# 10005728Listed by: BETH ROSE REAL ESTATE & AUCTIO - New
$350,000Active4 beds 3 baths1,843 sq. ft.6858 Wexford Hill Lane, Holland, OH 43528
MLS# 10005714Listed by: LOSS REALTY GROUP - New
$55,000Active1 beds 1 baths576 sq. ft.1140 Apt D9 S Mccord Road, Holland, OH 43528
MLS# 10005701Listed by: HARMONY REALTY GROUP - New
$289,900Active4 beds 2 baths3,165 sq. ft.7159 Railroad Street, Holland, OH 43528
MLS# 10005670Listed by: OAK VALLEY. LTD. - New
$217,900Active3 beds 2 baths1,488 sq. ft.413 S Harefoote Street, Holland, OH 43528
MLS# 10005661Listed by: SERENITY REALTY LLC