3762 Anderson Street, Lebanon, OH 45036

Local realty services provided by:CENTURY 21 The Gene Group
3762 Anderson Street,Turtle Creek Twp, OH 45036
$659,900
  • 3 Beds
  • 3 Baths
  • - sq. ft.
  • Single family
  • Pending
Listed by: jacqueline bowen
Office: drees / zaring realty513-353-0715
MLS#:1860112
Source:OH_CINCY

Price summary

  • Price:$659,900
  • Monthly HOA dues:$29.17

About this home

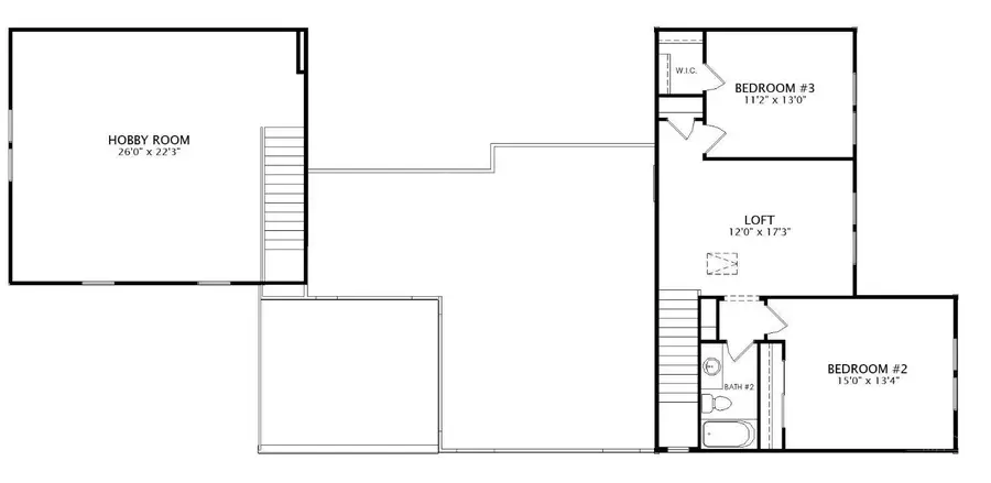
Introducing the Cardiff plan by Drees at Union Village. This well-designed two-story home has a rear entry garage and first floor primary suite and bath. The second floor features a loft, two bedrooms and a full bath. A hobby room is also on the second floor over the garage. The covered porch with fireplace is located off the dining room and presents a nice space for relaxing and enjoying the outdoors. Union Village is a master planned community with beautiful town square, village shops, & serene pocket parks! Ask how you lock can your interest rate on this home today!

Contact an agent

contact an agent

Yes, I would like more information. Please use and/or share my information with an independent agent affiliated with the CENTURY 21®  brand to contact me about my real estate needs. By clicking Send message, I request to be contacted by phone or text message and consent to being contacted by automated means. I understand that my consent to receive calls or texts is not a condition of purchasing any property, goods, or services. Alternatively, I understand that I can access real estate services by email or I can contact the agent myself.

If an independent agent affiliated with the CENTURY 21®  brand is not available in the area where I need assistance, I agree to be contacted by a real estate agent affiliated with another brand owned or licensed by Anywhere Real Estate (BHGRE® , Coldwell Banker® , Corcoran® , ERA® , Sotheby's International Realty® ).
 I acknowledge that I have read and agree to theTerms of useandPrivacy notice

Home facts

  • Listing ID #:1860112
  • Added:185 day(s) ago
  • Updated:May 02, 2026 at 07:25 AM

Rooms and interior

  • Bedrooms:3
  • Total bathrooms:3
  • Full bathrooms:2
  • Half bathrooms:1
  • Rooms Total:9
  • Kitchen Description:Dishwasher, Garbage Disposal, Gas Cooktop, Gourmet, Island, Microwave, Pantry, Solid Surface Ctr
  • Bedroom Description:Bath Adjoins, Walk-in Closet
  • Basement Description:Bath Rough In, Full, Unfinished

Heating and cooling

  • Cooling:Central Air
  • Heating:Forced Air, Gas

Structure and exterior

  • Roof:Shingle
  • Architectural Style:Ranch, Traditional
  • Construction Materials:Fiber Cement
  • Exterior Features:Covered Deck/Patio, Fireplace, Porch
  • Foundation Description:Poured
  • Levels:2 Story

Utilities

  • Water:Public
  • Sewer:Public Sewer

Finances and disclosures

  • Price:$659,900

Features and amenities

  • Appliances:Dishwasher, Garbage Disposal, Gas Cooktop, Microwave
  • Amenities:9Ft + Ceiling, French Doors

Parking

  • Parking description:On Street
  • Garage:Yes
  • Garage spaces:2
MLS LogoInformation deemed reliable but not guaranteed. The data relating to real estate for sale on this web site comes in part from the Broker Reciprocity program of the Multiple Listing Service of Greater Cincinnati. Real estate listings held by brokerage firms other than CENTURY 21 The Gene Group are marked with the Broker Reciprocity&#8482 logo (the small house as shown to the left) and detailed information about them includes the name of the listing brokers. 2026, MLS of Greater Cincinnati, Inc. All rights reserved.