27229 E 109th Street S, Coweta, OK 74429
Local realty services provided by:CENTURY 21 First Choice Realty
27229 E 109th Street S,Coweta, OK 74429
$299,990
- 4 Beds
- 2 Baths
- 1,655 sq. ft.
- Single family
- Active
Listed by: hunter reavis
Office: pennington & assoc realtors
MLS#:2612280
Source:OK_NORES
Price summary
- Price:$299,990
- Price per sq. ft.:$181.26
About this home
Make 2026 your year in a brand-new home by Glenwood Homes.
Now selling in a new community, this home represents one of the best values in the Tulsa market and an opportunity to own a thoughtfully designed, quality-built home from a locally owned builder known for craftsmanship and care.
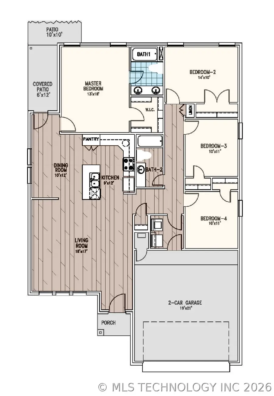
The Ford floor plan is a versatile and beautifully designed 4-bedroom home that combines functionality, style, and long-term value. Its popularity is why this plan is featured as a builder model, showcasing intentional design and elevated finishes throughout.
Incentives may include closing cost assistance and eligible financing options, making homeownership more attainable for qualified buyers.
Inside, the open-concept layout is filled with natural light and finished with durable hard-surface flooring in the main living areas. The kitchen serves as the heart of the home, featuring a large freestanding island, ample cabinetry, granite or quartz countertops, and stainless steel appliances—ideal for both everyday living and entertaining.
All four bedrooms are generously sized, offering flexibility for a variety of lifestyle needs. Additional features include a tankless water heater, full blinds, and a fully fenced backyard, providing both comfort and convenience.
Located in a desirable area offering a balance of peaceful surroundings and accessibility to nearby amenities, this community also benefits from a highly regarded school district.
Glenwood Homes is proud to be a locally owned and operated builder, committed to quality construction and long-term homeowner satisfaction. Each home is built with care, attention to detail, and a focus on livability.
Schedule your private showing today and experience what makes this home—and this community—an exceptional place to call home....
Contact an agent
Home facts
- Year built:2026
- Listing ID #:2612280
- Added:1 day(s) ago
- Updated:April 08, 2026 at 02:57 PM
Rooms and interior
- Bedrooms:4
- Total bathrooms:2
- Full bathrooms:2
- Flooring:Carpet, Tile
- Kitchen Description:Dishwasher, Microwave
- Basement:Yes
- Living area:1,655 sq. ft.
Heating and cooling
- Cooling:Central Air
- Heating:Central, Gas
Structure and exterior
- Year built:2026
- Building area:1,655 sq. ft.
- Lot area:0.15 Acres
- Lot Features:Corner Lot
- Construction Materials:Brick, Wood Frame
- Foundation Description:Slab
Schools
- High school:Coweta
- Elementary school:Northwest
Finances and disclosures
- Price:$299,990
- Price per sq. ft.:$181.26
Features and amenities
- Appliances:Dishwasher, Gas Water Heater, Microwave, Oven, Plumbed For Ice Maker, Range, Stove
- Amenities:High Speed Internet, Programmable Thermostat, Smoke Detector(s), Vaulted Ceiling(s), Vinyl Windows, Wired for Data
Parking
- Garage:Yes
- Garage spaces:2
New listings near 27229 E 109th Street S
- New
$425,000Active4 beds 3 baths2,327 sq. ft.27362 E 146th Street S, Coweta, OK 74429
MLS# 2612253Listed by: PLATINUM REALTY, LLC.
$175,000Pending2 beds 1 baths1,018 sq. ft.403 Delaware Avenue, Coweta, OK 74429
MLS# 2612002Listed by: COLDWELL BANKER SELECT- New
$269,990Active3 beds 2 baths1,468 sq. ft.27155 E 109th Street S, Coweta, OK 74429
MLS# 2612275Listed by: PENNINGTON & ASSOC REALTORS - New
$289,990Active3 beds 2 baths1,560 sq. ft.10887 S 271st East Avenue, Coweta, OK 74429
MLS# 2612277Listed by: PENNINGTON & ASSOC REALTORS - New
$300,135Active3 beds 2 baths1,560 sq. ft.10945 S 271st East Avenue, Coweta, OK 74429
MLS# 2612282Listed by: PENNINGTON & ASSOC REALTORS - New
$305,029Active4 beds 2 baths1,655 sq. ft.10957 S 271st Avenue, Coweta, OK 74429
MLS# 2612283Listed by: PENNINGTON & ASSOC REALTORS - New
$334,990Active4 beds 2 baths1,833 sq. ft.10886 S 272nd East Avenue, Coweta, OK 74429
MLS# 2612284Listed by: PENNINGTON & ASSOC REALTORS
$253,900Pending3 beds 2 baths1,349 sq. ft.27113 E 109th Street S, Coweta, OK 74429
MLS# 2612153Listed by: PENNINGTON & ASSOC REALTORS- New
$279,990Active4 beds 2 baths1,554 sq. ft.27173 E 109th Street S, Coweta, OK 74429
MLS# 2612151Listed by: PENNINGTON & ASSOC REALTORS