817 SE Se 49th St Street, Oklahoma City, OK 73129
Local realty services provided by:CENTURY 21 Altus Prestige Realty
Listed by: neyshmi t. mack
Office: spearhead realty group llc.
MLS#:1217155
Source:OK_OKC
817 SE Se 49th St Street,Oklahoma City, OK 73129
$280,000
- 3 Beds
- 2 Baths
- 1,489 sq. ft.
- Single family
- Active
Price summary
- Price:$280,000
- Price per sq. ft.:$188.05
About this home
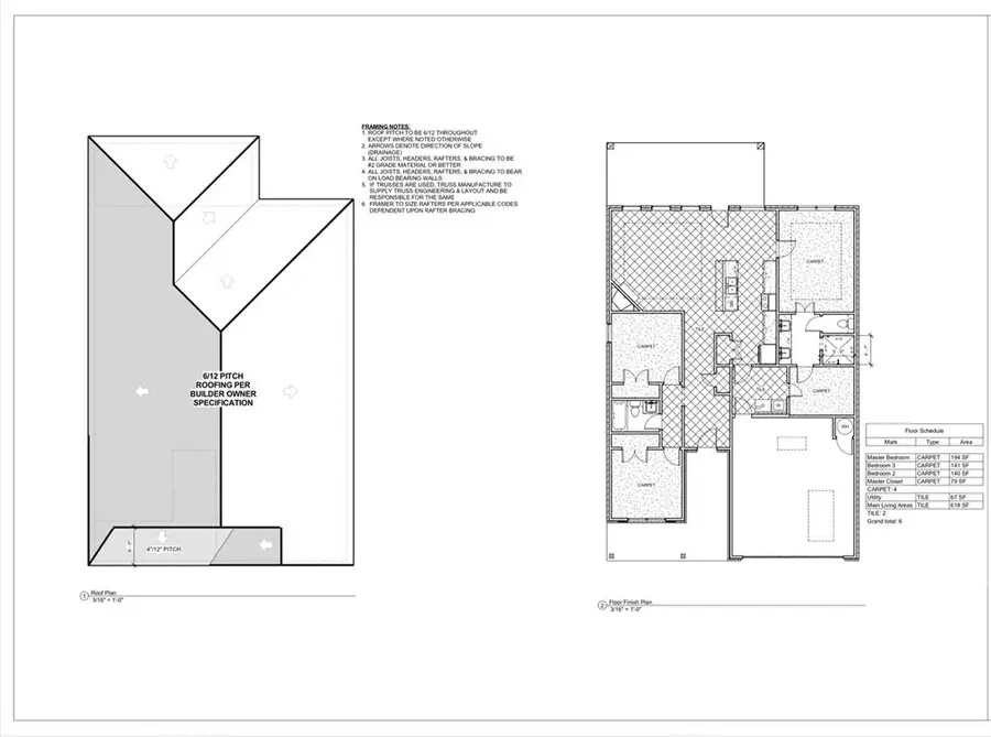
AVAILABLE LOT to build your home! Builders floorplans ready to go. This is a 3bed/2bath/2car garage! Spacious for the sqft! It will include wood looking tile in main areas, carpet in bedrooms, Granite countertops throughout, and fully fenced are some of its highlights! Buyer still has the chance to pick from Builders Color palette and finishes! This Property is on a larger lot!
Contact an agent
Home facts
- Listing ID #:1217155
- Added:50 day(s) ago
- Updated:April 24, 2026 at 12:48 PM
Rooms and interior
- Bedrooms:3
- Total bathrooms:2
- Full bathrooms:2
- Living area:1,489 sq. ft.
Heating and cooling
- Cooling:Central Electric
- Heating:Central Gas
Structure and exterior
- Roof:Composition
- Building area:1,489 sq. ft.
- Lot area:0.24 Acres
- Lot Features:Infill Lot
- Architectural Style:Traditional
- Construction Materials:Brick & Frame
- Exterior Features:Covered Porch, Patio-Covered
- Foundation Description:Slab
Schools
- High school:Capitol Hill HS
- Middle school:Wheeler MS
- Elementary school:Cesar Chavez ES
Finances and disclosures
- Price:$280,000
- Price per sq. ft.:$188.05
Parking
- Garage:Yes
- Garage spaces:2
New listings near 817 SE Se 49th St Street
- Open Sat, 10am to 4pmNew
$259,999Active4 beds 2 baths1,711 sq. ft.13208 Camden Drive, Piedmont, OK 73078
MLS# 1221511Listed by: REDHAWK REAL ESTATE, LLC - New
$995,000Active4 beds 4 baths4,300 sq. ft.13500 Three Oaks Drive, Jones, OK 73049
MLS# 1225197Listed by: THE AGENCY - Open Sun, 2 to 4pmNew
$315,000Active2 beds 2 baths1,015 sq. ft.1116 N Timber Road, Oklahoma City, OK 73130
MLS# 1225255Listed by: SERV. REALTY - New
$324,900Active3 beds 2 baths1,755 sq. ft.8901 Poppey Place, Yukon, OK 73099
MLS# 1225491Listed by: FLOTILLA REAL ESTATE PARTNERS - New
$119,990Active3 beds 1 baths950 sq. ft.2924 SW 51st Street, Oklahoma City, OK 73119
MLS# 1225671Listed by: MODERN ABODE REALTY - New
$225,000Active3 beds 2 baths1,771 sq. ft.10208 Little Pond Drive, Oklahoma City, OK 73162
MLS# 1225715Listed by: WHITTINGTON REALTY - New
$315,000Active4 beds 2 baths1,663 sq. ft.4216 Royal Garden Drive, Yukon, OK 73099
MLS# 1225725Listed by: BAILEE & CO. REAL ESTATE - New
$305,000Active3 beds 2 baths1,273 sq. ft.3804 NW 177th Street, Edmond, OK 73012
MLS# 1225825Listed by: SAGE SOTHEBY'S REALTY
$915,000Pending4 beds 4 baths4,591 sq. ft.3208 Prairie Rose Road, Oklahoma City, OK 73120
MLS# 1220850Listed by: LEAH AND WHITNEY LLC
$299,900Pending3 beds 2 baths1,872 sq. ft.1808 NW 164th Circle, Edmond, OK 73013
MLS# 1225726Listed by: BOUTIQUE REAL ESTATE INC.