9200 Sweetwater Boulevard, Oklahoma City, OK 73160
Local realty services provided by:CENTURY 21 Altus Prestige Realty
Listed by: john burris
Office: central oklahoma real estate
MLS#:1222401
Source:OK_OKC
9200 Sweetwater Boulevard,Oklahoma City, OK 73160
$264,900
- 3 Beds
- 2 Baths
- 1,301 sq. ft.
- Single family
- Active
Price summary
- Price:$264,900
- Price per sq. ft.:$203.61
About this home
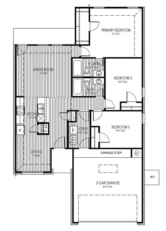
Introducing the Ashton floor plan, thoughtfully designed to maximize every inch of your new home with both comfort and functionality in mind. The kitchen beautifully separates the main living and dining areas, creating defined spaces while still maintaining a natural flow that is ideal for everyday living and entertaining. Homeowners especially love the dedicated dining area, which provides a comfortable space for gatherings and everyday meals, while a dedicated pantry adds valuable storage and keeps the kitchen organized and efficient. The oversized primary bedroom offers plenty of space and is complemented by a generously sized closet that provides ample room for storage and convenience. Located just off 89th and Eastern with easy access to I-240 and I-35, this home offers a convenient commute to Tinker Air Force Base, the University of Oklahoma, and Will Rogers Airport, all within about 15 to 22 minutes, and is just 3 minutes from the nearest school. It also features premium upgrades rarely found in nearby new builds, including a pre-piered foundation designed for Oklahoma soil, tornado safety straps, Class 3 impact rated shingles, Uponor PEX plumbing, and a Navien tankless water heater, all built for durability, safety, and lower long term costs and backed by a 10 year structural and foundation warranty....
Contact an agent
Home facts
- Year built:2026
- Listing ID #:1222401
- Added:1 day(s) ago
- Updated:April 04, 2026 at 04:15 AM
Rooms and interior
- Bedrooms:3
- Total bathrooms:2
- Full bathrooms:2
- Rooms Total:3
- Flooring:Carpet, Combo
- Kitchen Description:Dishwasher, Disposal, Microwave
- Living area:1,301 sq. ft.
Heating and cooling
- Cooling:Central Electric
Structure and exterior
- Year built:2026
- Building area:1,301 sq. ft.
- Lot area:0.14 Acres
- Lot Features:Interior Lot
- Architectural Style:Traditional
- Construction Materials:Brick & Frame
- Foundation Description:Slab
Schools
- High school:Moore HS
- Middle school:Central JHS
- Elementary school:Bryant ES
Utilities
- Water:Public
Finances and disclosures
- Price:$264,900
- Price per sq. ft.:$203.61
Features and amenities
- Appliances:Dishwasher, Disposal, Microwave
Parking
- Parking description:Concrete
- Garage:Yes
- Garage spaces:2
New listings near 9200 Sweetwater Boulevard
- New
$330,000Active4 beds 2 baths2,039 sq. ft.18820 Vea Drive, Edmond, OK 73012
MLS# 1222450Listed by: CENTURY 21 JUDGE FITE COMPANY - New
$850,000Active6 beds 7 baths6,020 sq. ft.424 NW 149th Terrace, Edmond, OK 73013
MLS# 1222466Listed by: ACCESS REAL ESTATE LLC - New
$2,275,000Active5 beds 7 baths5,809 sq. ft.14605 St Pierre Drive, Oklahoma City, OK 73142
MLS# 1222435Listed by: KELLER WILLIAMS REALTY ELITE - New
$405,000Active4 beds 3 baths1,736 sq. ft.2529 NW 129th Street, Oklahoma City, OK 73120
MLS# 1222438Listed by: LUXE REALTY COLLECTIVE - New
$259,000Active3 beds 2 baths1,546 sq. ft.2213 NW 157th Street, Edmond, OK 73013
MLS# 1222393Listed by: COPPER CREEK REAL ESTATE - New
$238,500Active3 beds 2 baths1,537 sq. ft.8736 NW 84th Street, Oklahoma City, OK 73132
MLS# 1222462Listed by: EXIT REALTY PREMIER - New
$249,000Active4 beds 2 baths1,501 sq. ft.409 Scully Road, Yukon, OK 73099
MLS# 1214895Listed by: REDFIN - New
$139,900Active2 beds 1 baths1,060 sq. ft.3325 S Independence Avenue, Oklahoma City, OK 73119
MLS# 1220912Listed by: CITYBURB HOMES - New
$270,000Active3 beds 2 baths1,864 sq. ft.2912 Gettysburg Road, Edmond, OK 73013
MLS# 1221856Listed by: ALWAYS REAL ESTATE - New
$265,000Active3 beds 2 baths1,514 sq. ft.16216 Osceola Trail, Edmond, OK 73013
MLS# 1221875Listed by: RE/MAX PREFERRED