51718 Jubilee Pine Dr, La Pine, OR 97739
Local realty services provided by:CENTURY 21 Agate Realty
51718 Jubilee Pine Dr,La Pine, OR 97739
$376,900
- 3 Beds
- 3 Baths
- 1,789 sq. ft.
- Single family
- Active
Listed by: matthew griffin
Office: lennar sales corp
MLS#:220217869
Source:OR_SOMLS
Price summary
- Price:$376,900
- Price per sq. ft.:$210.68
- Monthly HOA dues:$90
About this home
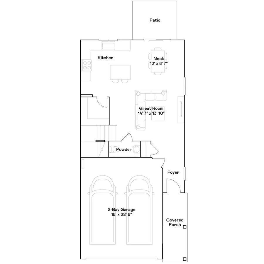
This new construction home is located at Reserve in the Pines, a beautiful community in La Pine surrounded by year-round outdoor recreation. The Blair plan features an inviting first floor with an open-concept layout that connects the great room, kitchen with large pantry and dining nook with access to the patio. Upstairs are three bedrooms, including a primary suite with an en-suite bath and a walk-in closet for comfort and privacy. Interior highlights include quartz countertops, shaker-style cabinetry, and LVP flooring in the kitchen and bathrooms. This home includes central AC, refrigerator, washer and dryer, blinds, and a xeriscaped front yard with a drip irrigation system, all at no extra cost! Homesite #99. Est. completion: July 2026. Rendering is artist conception only. Photos are of a similar home, features and finishes will vary. Taxes not yet assessed.
Contact an agent
Home facts
- Year built:2026
- Listing ID #:220217869
- Added:9 day(s) ago
- Updated:April 04, 2026 at 02:36 PM
Rooms and interior
- Bedrooms:3
- Total bathrooms:3
- Full bathrooms:2
- Half bathrooms:1
- Flooring:Carpet, Vinyl
- Bathrooms Description:Fiberglass Stall Shower, Shower/Tub Combo
- Kitchen Description:Dishwasher, Range, Range Hood, Refrigerator
- Living area:1,789 sq. ft.
Heating and cooling
- Cooling:Central Air
- Heating:Forced Air, Natural Gas
- Central air:Yes
Structure and exterior
- Roof:Composition
- Year built:2026
- Building area:1,789 sq. ft.
- Lot area:0.12 Acres
- Lot Features:Drip System, Sprinkler Timer(s), Xeriscape Landscape
- Architectural Style:Northwest
- Construction Materials:Frame
- Foundation Description:Stemwall
- Levels:2 Story
Schools
- High school:LaPine Sr High
- Middle school:LaPine Middle
- Elementary school:LaPine Elem
Utilities
- Water:Public
- Sewer:Public Sewer, Septic Tank
Finances and disclosures
- Price:$376,900
- Price per sq. ft.:$210.68
Features and amenities
- Appliances:Dishwasher, Range, Range Hood, Refrigerator, Tankless Water Heater, Washer
Parking
- Parking description:Attached, Driveway, Electric Vehicle Charging Station(s)
- Garage:Yes
- Garage spaces:2
New listings near 51718 Jubilee Pine Dr
- New
$95,000Active0.16 Acres16631 Landing Court, La Pine, OR 97739
MLS# 220218561Listed by: EXP REALTY, LLC - New
$525,000Active3 beds 2 baths1,624 sq. ft.16051 Leona Lane, La Pine, OR 97739
MLS# 220218503Listed by: CASCADE HASSON SIR - New
$445,000Active3 beds 1 baths1,056 sq. ft.51862 Pine Loop Drive, La Pine, OR 97739
MLS# 220218495Listed by: LA PINE REALTY - New
$650,000Active3 beds 3 baths1,900 sq. ft.15161 Ponderosa Loop, La Pine, OR 97739
MLS# 220218483Listed by: CENTURY 21 NORTH HOMES REALTY - New
$259,000Active3 beds 2 baths1,188 sq. ft.16274 Dyke Road, La Pine, OR 97739
MLS# 220218471Listed by: CASCADE HASSON SIR - New
$549,900Active3 beds 2 baths1,686 sq. ft.51992 Dorrance Meadow Road, La Pine, OR 97739
MLS# 220218460Listed by: WEICHERT, REALTORS-NORWEST - New
$725,000Active2 beds 2 baths1,570 sq. ft.51876 Ponderosa Way, La Pine, OR 97739
MLS# 220218379Listed by: KELLER WILLIAMS REALTY CENTRAL OREGON - New
$375,000Active4 beds 2 baths1,560 sq. ft.16184 Del Pino Drive, La Pine, OR 97739
MLS# 220218362Listed by: BEND PREMIER REAL ESTATE LLC - New
$85,000Active1.09 AcresTl 10100 Beechwood Drive #1, La Pine, OR 97739
MLS# 220218321Listed by: LA PINE REALTY - New
$359,000Active4 beds 2 baths2,002 sq. ft.15990 Lava Drive, La Pine, OR 97739
MLS# 220218334Listed by: LA PINE REALTY