4090 NE Prescott St #C, Portland, OR 97211
Local realty services provided by:CENTURY 21 North Homes Realty
4090 NE Prescott St #C,Portland, OR 97211
$449,900
- 2 Beds
- 2 Baths
- 904 sq. ft.
- Single family
- Active
Upcoming open houses
- Sat, Apr 0401:00 pm - 03:00 pm
- Sun, Apr 0501:00 pm - 03:00 pm
Listed by: chris dawkins
Office: keller williams pdx central
MLS#:552613546
Source:PORTLAND
Price summary
- Price:$449,900
- Price per sq. ft.:$497.68
- Monthly HOA dues:$129
About this home
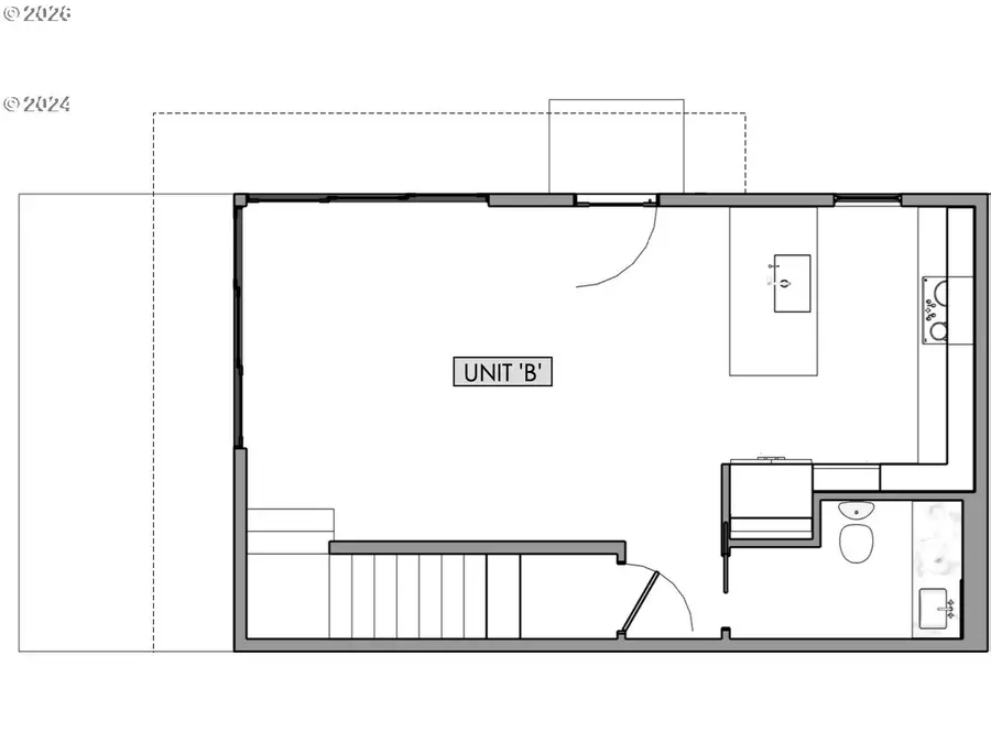
New modern home in sought-after Beaumont-Wilshire Neighborhood location convenient to NE Fremont, NE 42nd Ave & NE Alberta shops & restaurants. Built with uncompromised quality and true architectural design by Snug, Portland's premiere infill cottage developer. Must see to appreciate all of the designer finishes and upgrades compared to the typical new build. 1 of 4 townhouse homes, each with private fenced yard for entertaining AND PETS. Layout lives large with great room plan & chef’s kitchen. 2 vaulted bedrooms & laundry upstairs. Loads of storage with built-in pantry and large closets. Completely move-in ready with included fridge, W/D and full landscaping. Low energy certified all-electric home with mini split heating and cooling. Total energy bill estimated @ just $64 per month. Pre-plumbed for solar such that it could be truly Net Zero! Live maintenance free with minimal monthly expense, while enjoying all the benefits of a single family home! HES= 10! Unbeatable Beaumont-Wilshire location offering a long stretch of vibrant shops, unique bars, music venues and restaurant Walkscore= 88! Bikescore= 97!! List price is subject to buyer qualifying for the Portland Housing Bureau- SDC exemption program. SDC waiver income limit for this property is $148,920. Seller's preferred lender is offering incentives resulting in low mortgage rates. Rear unit with large, private yard....
Contact an agent
Home facts
- Year built:2026
- Listing ID #:552613546
- Added:76 day(s) ago
- Updated:April 03, 2026 at 11:24 AM
Rooms and interior
- Bedrooms:2
- Total bathrooms:2
- Full bathrooms:1
- Half bathrooms:1
- Bathrooms Description:Soaking Tub
- Kitchen Description:Dishwasher, Disposal, Free Standing Range, Free Standing Refrigerator, Microwave, Plumbed For Icemaker, Quartz, Stainless Steel Appliance, Tile
- Living area:904 sq. ft.
Heating and cooling
- Cooling:Heat Pump
- Heating:Heat Pump, Mini Split
Structure and exterior
- Roof:Composition
- Year built:2026
- Building area:904 sq. ft.
- Architectural Style:Contemporary, Townhouse
- Exterior Features:Fenced, Patio, Sprinkler, Yard
- Foundation Description:Concrete Perimeter, Slab
- Levels:2 Stories
Schools
- High school:Jefferson
- Middle school:Vernon
- Elementary school:Vernon
Utilities
- Water:Public Water
- Sewer:Public Sewer
Finances and disclosures
- Price:$449,900
- Price per sq. ft.:$497.68
Features and amenities
- Laundry features:Washer/Dryer
- Amenities:Double Pane Window(s), High Ceilings, Laundry, Tile Floor, Vinyl Frame Windows, Wall To Wall Carpet
Parking
- Parking description:On street
New listings near 4090 NE Prescott St #C
- New
$379,000Active3 beds 1 baths988 sq. ft.1137 NE 193rd Ave, Portland, OR 97230
MLS# 131322439Listed by: MORE REALTY - New
$830,000Active4 beds 3 baths2,313 sq. ft.7876 NW Eleanor Ave, Portland, OR 97229
MLS# 362836091Listed by: KELLER WILLIAMS REALTY PORTLAND PREMIERE - Open Sat, 12 to 3pmNew
$565,000Active3 beds 3 baths1,679 sq. ft.5455 NW 180th Pl, Portland, OR 97229
MLS# 540744153Listed by: RE/MAX EQUITY GROUP - New
$865,000Active5 beds 3 baths2,760 sq. ft.4148 SW 43rd Ave, Portland, OR 97221
MLS# 613232598Listed by: CASCADE HASSON SOTHEBY'S INTERNATIONAL REALTY - New
$1,400,000Active4 beds 4 baths3,728 sq. ft.8110 SW Valley View Dr, Portland, OR 97225
MLS# 713020764Listed by: LIVING ROOM REALTY - Open Sat, 12 to 3pmNew
$995,000Active5 beds 3 baths2,450 sq. ft.11380 SW Foothill Dr, Portland, OR 97225
MLS# 751526840Listed by: CASCADE HASSON SOTHEBY'S INTERNATIONAL REALTY - New
$449,950Active3 beds 2 baths1,358 sq. ft.12620 SE Cora St, Portland, OR 97236
MLS# 765822382Listed by: MORE REALTY - New
$875,000Active3 beds 3 baths2,633 sq. ft.5054 SW 26th Pl, Portland, OR 97239
MLS# 171750621Listed by: WINDERMERE REALTY TRUST - New
$450,000Active4 beds 2 baths1,508 sq. ft.10945 NE Prescott St, Portland, OR 97220
MLS# 239442702Listed by: MORE REALTY - Open Sat, 11:30am to 1pmNew
$355,000Active1 beds 1 baths920 sq. ft.949 NW Overton St #1105, Portland, OR 97209
MLS# 282149271Listed by: PREMIERE PROPERTY GROUP, LLC