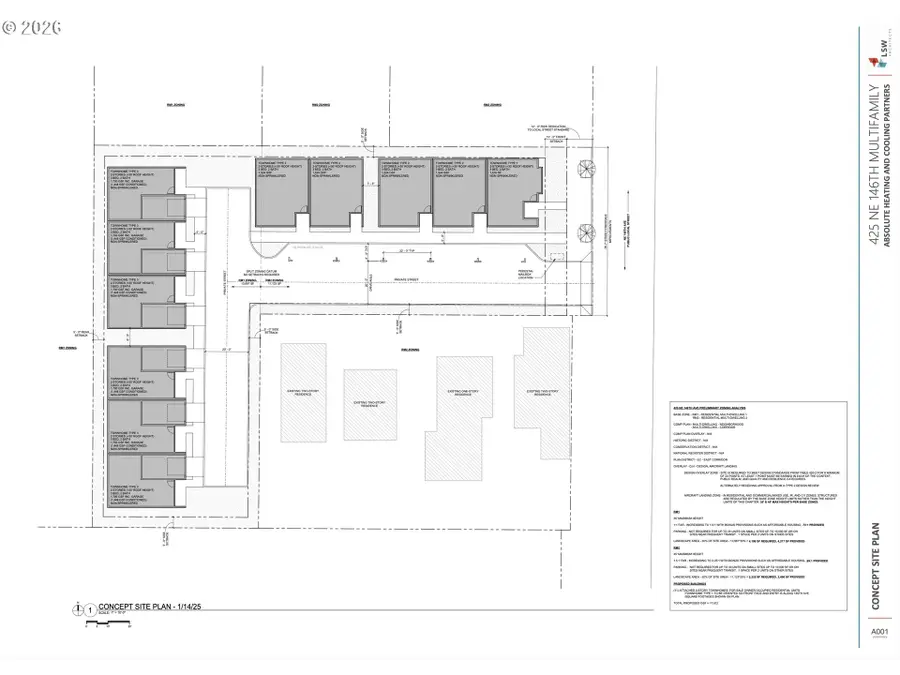
425 NE 146th Ave, Portland, OR 97230
Local realty services provided by:CENTURY 21 Northstar
425 NE 146th Ave,Portland, OR 97230
$649,900
- 0.6 Acres
- Lots / Land
- Active
Listed by: spenser beck
Office: handris realty co.503-657-1094
MLS#:277045500
Source:PORTLAND
Price summary
- Price:$649,900
About this home
Prime development opportunity in NE Portland with strong infill potential. This property is being offered as a land value/development play with a preliminary fit test suggesting the potential for a 14-unit townhome project (8 smaller units and 6 larger units). Ideal for builders or investors looking for their next infill project in a growing area with strong resale demand.The existing structure on site is considered functionally obsolete and the property is best suited for redevelopment or rehab. Preliminary architectural concepts and fit test available for review to help illustrate the potential vision for the site. Buyer to perform all due diligence regarding zoning, density, utilities, and development feasibility.Conveniently located with access to major commuter routes, shopping, and amenities, this site presents a compelling opportunity for a developer to capitalize on new construction demand in the Portland market. Rare chance to acquire a project-ready site where much of the initial visioning work has already been completed. Bring your builder, investor, or development team — opportunities like this are limited....
Contact an agent
Home facts
- Listing ID #:277045500
- Added:52 day(s) ago
- Updated:April 14, 2026 at 11:19 AM
Rooms and interior
- Total bathrooms:1
Structure and exterior
- Lot area:0.6 Acres
Schools
- High school:Reynolds
- Middle school:H.B. Lee
- Elementary school:Glenfair
Utilities
- Water:Water Connected
- Sewer:Sewer Connected
Finances and disclosures
- Price:$649,900
- Tax amount:$4,851
New listings near 425 NE 146th Ave
- New
$525,000Active2 beds 3 baths1,387 sq. ft.1636 SE Knapp St, Portland, OR 97202
MLS# 265193229Listed by: REAL BROKER - New
$399,900Active2 beds 2 baths1,674 sq. ft.8034 SE Henderson St, Portland, OR 97206
MLS# 532779162Listed by: KELLER WILLIAMS PDX CENTRAL - Open Sat, 1 to 3pmNew
$1,075,000Active4 beds 4 baths4,444 sq. ft.626 SW Comus Ct, Portland, OR 97219
MLS# 536103724Listed by: PORTLAND'S ALTERNATIVE INC., REALTORS - Open Tue, 11am to 1pmNew
$635,000Active3 beds 3 baths2,184 sq. ft.1733 SW Custer St, Portland, OR 97219
MLS# 741589976Listed by: WINDERMERE REALTY TRUST - Open Tue, 11am to 2pmNew
$1,350,000Active5 beds 4 baths4,548 sq. ft.2035 NW Kearney St, Portland, OR 97209
MLS# 752550035Listed by: WINDERMERE REALTY TRUST - Open Sat, 11am to 1pmNew
$775,000Active3 beds 3 baths2,890 sq. ft.10430 SW 14th Dr, Portland, OR 97219
MLS# 766297164Listed by: NOVA REALTY NW, LLC - New
$389,999Active2 beds 1 baths864 sq. ft.3405 SE 69th Ave, Portland, OR 97206
MLS# 133056060Listed by: KELLY RIGHT REAL ESTATE OF PORTLAND, LLC - Open Tue, 11am to 2pmNew
$1,689,000Active5 beds 4 baths5,609 sq. ft.721 NW Albemarle Ter, Portland, OR 97210
MLS# 195656621Listed by: WINDERMERE REALTY TRUST - New
$569,000Active4 beds 2 baths2,018 sq. ft.13580 SW Village Glenn Dr, Portland, OR 97223
MLS# 484783836Listed by: KELLER WILLIAMS SUNSET CORRIDOR - New
$475,000Active2 beds 2 baths980 sq. ft.2020 SE 34th Ave, Portland, OR 97214
MLS# 218461503Listed by: BROKER WEST REAL ESTATE CO