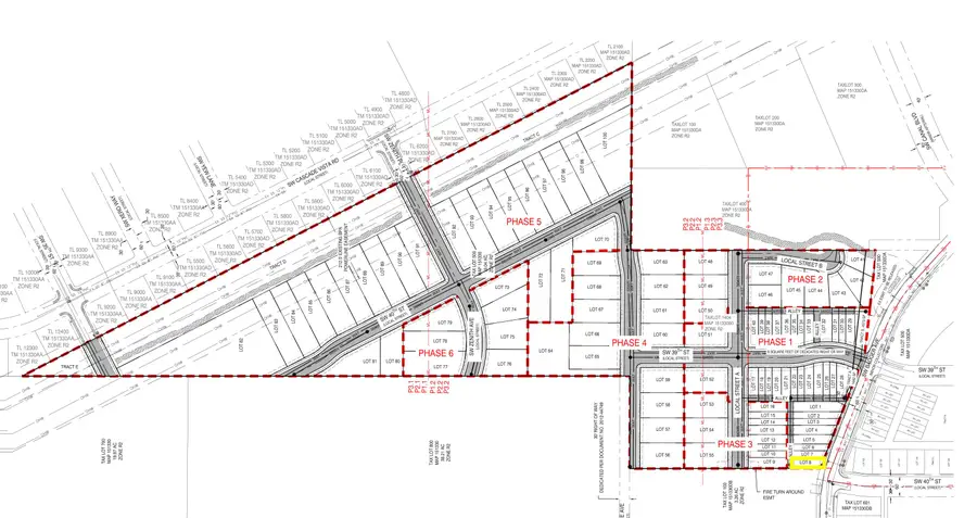
3987 SE Badger Avenue #Lot 8, Redmond, OR 97756
Local realty services provided by:CENTURY 21 J.C. Jones American Dream
3987 SE Badger Avenue #Lot 8,Redmond, OR 97756
$115,000
- 0.09 Acres
- Lots / Land
- Active
Listed by: lauren jean hinton
Office: keller williams realty central oregon
MLS#:220214607
Source:OR_SOMLS
Price summary
- Price:$115,000
- Monthly HOA dues:$146
About this home
4 separate adjoining townhome lots—ideal for investors or those seeking multi-unit ownership. Both single-level & 2-level plans available or bring your own builder. SHOVEL READY w/ utilities stubbed at lot. Owen Ridge is a new neighborhood in desirable SW Redmond is featuring beautiful mountain views and located just blocks from coffee shops, gelato, a brewery restaurant, schools, and only a short distance to golf, the airport, shopping, and Bend side of town. Construction is underway on single-family homes, single & two-level townhomes. Don't miss this exceptional investment opportunity! Listing Agent related to Seller.
Contact an agent
Home facts
- Listing ID #:220214607
- Added:62 day(s) ago
- Updated:April 06, 2026 at 02:34 PM
Structure and exterior
- Lot area:0.09 Acres
Schools
- High school:Ridgeview High
- Middle school:Obsidian Middle
- Elementary school:Sage Elem
Utilities
- Water:Public
- Sewer:Public Sewer
Finances and disclosures
- Price:$115,000
Parking
- Garage:Yes
- Garage spaces:2
New listings near 3987 SE Badger Avenue #Lot 8
- New
$1,295,000Active3 beds 4 baths3,358 sq. ft.631 Sundance Ridge Court, Redmond, OR 97756
MLS# 220218599Listed by: JONES GROUP REALTORS LLC - New
$1,295,000Active3 beds 3 baths3,110 sq. ft.11403 Jubel Court, Redmond, OR 97756
MLS# 220218582Listed by: EAGLE CREST PROPERTIES INC - New
$359,000Active3 beds 3 baths1,396 sq. ft.1135 NW Upas Ave, Redmond, OR 97756
MLS# 136983542Listed by: TROUT REALTY, INC. - New
$1,250,000Active3 beds 4 baths4,069 sq. ft.10715 Rockside Court, Redmond, OR 97756
MLS# 220218576Listed by: EAGLE CREST PROPERTIES INC - New
$1,300,000Active3 beds 4 baths2,606 sq. ft.285 Vista Rim Drive, Redmond, OR 97756
MLS# 220218554Listed by: COLDWELL BANKER MAYFIELD REALTY - New
$619,900Active3 beds 2 baths1,552 sq. ft.3822 SW Antelope Way #Lot 47, Redmond, OR 97756
MLS# 220218556Listed by: KELLER WILLIAMS REALTY CENTRAL OREGON - New
$433,000Active3 beds 3 baths1,782 sq. ft.4715 NW 49th Lane, Redmond, OR 97756
MLS# 220218559Listed by: BEND DREAMS REALTY LLC - New
$395,000Active1.18 Acres4177 NW 39th Drive, Redmond, OR 97756
MLS# 220218542Listed by: WINDERMERE REALTY TRUST - New
$319,400Active3 beds 2 baths1,134 sq. ft.2400 SW Phlox Pond Drive, Redmond, OR 97756
MLS# 220218502Listed by: JOHN L SCOTT BEND - New
$549,000Active3 beds 2 baths1,720 sq. ft.755 NW Canyon Drive, Redmond, OR 97756
MLS# 220218488Listed by: CASCADE HASSON SIR