23781 SW Black Tortoise Ter, Tualatin, OR 97062
Local realty services provided by:CENTURY 21 Northstar
Listed by: anastasia gordeev, gina masters
Office: lennar sales corp
MLS#:194398088
Source:PORTLAND
Price summary
- Price:$516,400
- Price per sq. ft.:$257.68
- Monthly HOA dues:$164
About this home
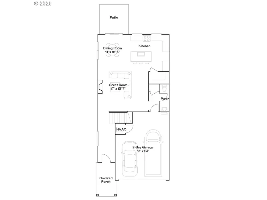
Step into modern comfort and effortless style in this beautifully designed two-story "Spencer" floor plan in the desirable Autumn Sunrise master-planned community in Tualatin. This home comes complete with a refrigerator, washer and dryer, air conditioning, and blinds included. The main level welcomes you with a generous open-concept layout that seamlessly connects the Great Room, dining area, and kitchen—creating the perfect space for everyday living and entertaining. Large windows fill the home with abundant natural light, while sliding glass doors open to the patio for easy indoor-outdoor living, ideal for summer gatherings or quiet evenings outside. At the heart of the home, the kitchen shines with thoughtful design and elevated finishes, including beautiful quartz countertops, a spacious pantry, and plenty of prep and storage space. Quartz surfaces continue throughout all bathrooms, creating a cohesive and upscale feel throughout the home. Durable and stylish LVP flooring flows through the main living areas, complemented by luxury vinyl tile in select spaces and plush carpet with an 8-lb pad upstairs for added comfort. All four bedrooms are conveniently located on the upper level, offering privacy and a peaceful retreat from the main living areas. The luxurious owner’s suite features a spacious bedroom, a private ensuite bath, and a generous walk-in closet designed to make everyday routines feel just a little more special. Located in Autumn Sunrise, one of Tualatin’s most exciting new communities, residents enjoy neighborhood amenities including a playground, picnic area, fire pit, and basketball court. This home combines thoughtful design, quality finishes, and a welcoming neighborhood setting—making it a place you’ll truly love to call home. Come experience it for yourself! Photos are of similar home so features and finishes may vary. Homesite #250, ready in Spring. Flex credit/closing cost incentive available when financing with preferred lender! Use...
Contact an agent
Home facts
- Year built:2026
- Listing ID #:194398088
- Added:7 day(s) ago
- Updated:April 03, 2026 at 11:14 AM
Rooms and interior
- Bedrooms:4
- Total bathrooms:3
- Full bathrooms:2
- Half bathrooms:1
- Bathrooms Description:Soaking Tub
- Kitchen Description:Dishwasher, Disposal, Free Standing Gas Range, Free Standing Range, Island, Microwave, Pantry, Plumbed For Icemaker, Quartz
- Basement Description:Crawl Space
- Living area:2,004 sq. ft.
Heating and cooling
- Cooling:Central Air
- Heating:Forced Air 90+
Structure and exterior
- Roof:Composition
- Year built:2026
- Building area:2,004 sq. ft.
- Lot area:0.07 Acres
- Architectural Style:2 Story, Common Wall
- Exterior Features:Fenced, Patio, Sprinkler
- Foundation Description:Concrete Perimeter
- Levels:2 Stories
Schools
- High school:Sherwood
- Middle school:Sherwood
- Elementary school:Hawks View
Utilities
- Water:Public Water
- Sewer:Public Sewer
Finances and disclosures
- Price:$516,400
- Price per sq. ft.:$257.68
Features and amenities
- Laundry features:Washer/Dryer
- Amenities:Double Pane Window(s), Garage Door Opener, Laundry, Vinyl Frame Windows, Wall To Wall Carpet
Parking
- Total parking spaces:2
- Parking description:Driveway
- Garage spaces:2
New listings near 23781 SW Black Tortoise Ter
- New
$310,000Active2 beds 3 baths1,129 sq. ft.7169 SW Sagert St #107, Tualatin, OR 97062
MLS# 610115008Listed by: EXP REALTY, LLC - New
$695,000Active4 beds 3 baths2,352 sq. ft.20517 SW 98th Ct, Tualatin, OR 97062
MLS# 141780992Listed by: A GROUP REAL ESTATE - Open Sat, 3 to 5pmNew
$775,000Active4 beds 3 baths2,792 sq. ft.11137 SW Koller St, Tualatin, OR 97062
MLS# 519942567Listed by: KELLER WILLIAMS SUNSET CORRIDOR - New
$570,000Active3 beds 2 baths1,498 sq. ft.20168 SW Tillamook Ct, Tualatin, OR 97062
MLS# 189019706Listed by: KELLER WILLIAMS REALTY PORTLAND PREMIERE - Open Sat, 12 to 3pmNew
$535,000Active3 beds 2 baths1,157 sq. ft.9334 SW Nez Perce Ct, Tualatin, OR 97062
MLS# 620301928Listed by: PNW REALTY ASSOCIATES LLC
$519,900Pending3 beds 3 baths2,004 sq. ft.23786 SW Black Tortoise Ter, Tualatin, OR 97062
MLS# 129158752Listed by: LENNAR SALES CORP
$479,900Pending3 beds 3 baths1,722 sq. ft.23808 SW Black Tortoise Ter, Tualatin, OR 97062
MLS# 656226098Listed by: LENNAR SALES CORP- New
$265,000Active2 beds 2 baths1,022 sq. ft.8720 SW Tualatin Rd #205, Tualatin, OR 97062
MLS# 531887746Listed by: HOMESMART REALTY GROUP - New
$270,000Active2 beds 2 baths939 sq. ft.8720 SW Tualatin Rd #110, Tualatin, OR 97062
MLS# 431511972Listed by: PROPERTY GROUP NW - New
$785,000Active4 beds 3 baths2,550 sq. ft.23008 SW Lodgepole Ave, Tualatin, OR 97062
MLS# 634073095Listed by: THE 503 REAL ESTATE CO.