2422 Sawtelle Dr, Woodburn, OR 97071

Local realty services provided by:CENTURY 21 North Homes Realty
2422 Sawtelle Dr,Woodburn, OR 97071
$321,900
  • 3 Beds
  • 3 Baths
  • 1,396 sq. ft.
  • Single family
  • Active
Listed by: jason leiner, robin galvan-taylor
Office: lennar sales corp
MLS#:642179950
Source:PORTLAND

Price summary

  • Price:$321,900
  • Price per sq. ft.:$230.59
  • Monthly HOA dues:$162

About this home

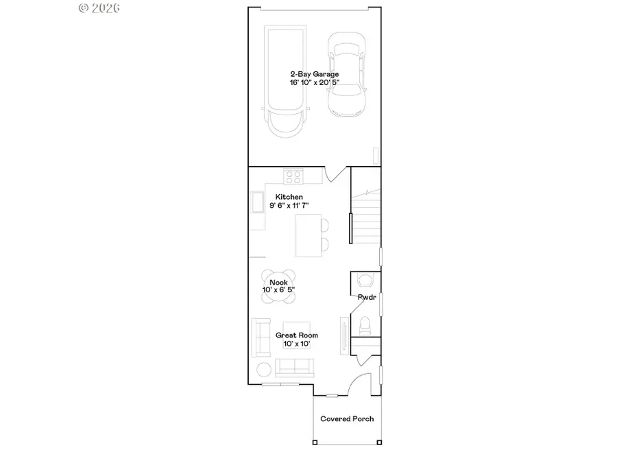
This new construction Smith Creek townhome sits on a corner lot and is conveniently located near I-5, just minutes from Woodburn Premium Outlets and close to parks, golf courses, schools, and vineyards, with easy highway access for smooth commutes. Community amenities include a dog park, multiple playgrounds, picnic areas, trails, and a basketball court. The Pierce plan offers two spacious stories designed for modern living. On the main floor, an open layout seamlessly connects the kitchen, nook, and great room, perfect for both everyday living and entertaining, along with convenient access to a powder room. Upstairs, two secondary bedrooms surround a versatile loft that can be used as a shared living area or home office. Tucked at the back of the second floor, the private primary suite features its own ensuite bath and a generous walk-in closet. Interior highlights include quartz countertops, shaker-style cabinets, luxury vinyl plank flooring, and luxury vinyl tile. This home also

Contact an agent

contact an agent

Yes, I would like more information. Please use and/or share my information with an independent agent affiliated with the CENTURY 21®  brand to contact me about my real estate needs. By clicking Send message, I request to be contacted by phone or text message and consent to being contacted by automated means. I understand that my consent to receive calls or texts is not a condition of purchasing any property, goods, or services. Alternatively, I understand that I can access real estate services by email or I can contact the agent myself.

If an independent agent affiliated with the CENTURY 21®  brand is not available in the area where I need assistance, I agree to be contacted by a real estate agent affiliated with another brand owned or licensed by Anywhere Real Estate (BHGRE® , Coldwell Banker® , Corcoran® , ERA® , Sotheby's International Realty® ).
 I acknowledge that I have read and agree to theTerms of useandPrivacy notice

Home facts

  • Year built:2026
  • Listing ID #:642179950
  • Added:5 day(s) ago
  • Updated:March 03, 2026 at 05:31 PM

Rooms and interior

  • Bedrooms:3
  • Total bathrooms:3
  • Full bathrooms:2
  • Half bathrooms:1
  • Kitchen Description:Dishwasher, Disposal, Free Standing Range, Free Standing Refrigerator, Gas Appliances, Island, Microwave, Quartz, Stainless Steel Appliance
  • Basement Description:Crawl Space
  • Living area:1,396 sq. ft.

Heating and cooling

  • Cooling:Central Air
  • Heating:Forced Air 90+

Structure and exterior

  • Roof:Composition
  • Year built:2026
  • Building area:1,396 sq. ft.
  • Lot Features:Level
  • Architectural Style:2 Story, Townhouse
  • Exterior Features:Porch
  • Foundation Description:Concrete Perimeter
  • Levels:2 Stories

Schools

  • High school:Woodburn
  • Middle school:Valor
  • Elementary school:Heritage

Utilities

  • Water:Public Water
  • Sewer:Public Sewer

Finances and disclosures

  • Price:$321,900
  • Price per sq. ft.:$230.59

Features and amenities

  • Laundry features:Washer/Dryer
  • Amenities:Double Pane Window(s), Laundry, Vinyl Frame Windows, Wall To Wall Carpet
MLS LogoAll information provided is deemed reliable but is not guaranteed and should be independently verified. The content relating to real estate for sale on this web site comes in part from the IDX program of the RMLS of Portland Oregon. Real estate listings held by brokerage firms other than CENTURY 21 North Homes Realty are marked with the RMLS logo and detailed information about these properties includes the names of the listing brokers. Copyright 2026 RMLS, Portland, Oregon. Last updated: March 3, 2026