1716 N Dover St, Philadelphia, PA 19121
Local realty services provided by:CENTURY 21 Mertz & Associates
1716 N Dover St,Philadelphia, PA 19121
$78,000
- 0.02 Acres
- Lots / Land
- Active
Listed by: emre yucel
Office: homesmart realty advisors
MLS#:PAPH2534850
Source:BRIGHTMLS
Price summary
- Price:$78,000
About this home
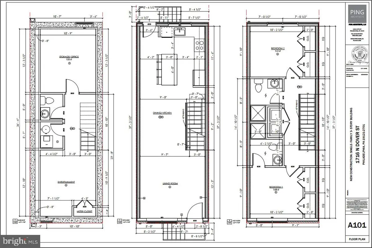
Investor/Builder Opportunity – Vacant Lot with Approved Plans
1716 N Dover Street is a shovel ready vacant lot being sold with approved plans for a brand-new single-family home of approximately 1,700 sq ft. This is a great opportunity for a builder or investor to start construction immediately without the delays of zoning or permitting.
The property sits in a rapidly developing area where renovated and newly built homes are selling for $400,000+, making this an attractive buy with strong upside potential. Whether you’re looking to build and sell, or add a solid rental property to your portfolio, this lot is positioned to deliver excellent value.
Contact an agent
Home facts
- Listing ID #:PAPH2534850
- Added:98 day(s) ago
- Updated:December 13, 2025 at 02:29 PM
Structure and exterior
- Lot area:0.02 Acres
Utilities
- Water:Public
- Sewer:Public Sewer
Finances and disclosures
- Price:$78,000
- Tax amount:$559 (2025)
New listings near 1716 N Dover St
- New
$250,000Active3 beds 1 baths1,176 sq. ft.6318 Cardiff St, PHILADELPHIA, PA 19149
MLS# PAPH2561968Listed by: CANAAN REALTY INVESTMENT GROUP - New
$419,900Active3 beds 2 baths1,428 sq. ft.9821 Verree Rd, PHILADELPHIA, PA 19115
MLS# PAPH2566602Listed by: KELLER WILLIAMS REAL ESTATE-MONTGOMERYVILLE - New
$269,900Active3 beds 1 baths1,610 sq. ft.4233 Passmore St, PHILADELPHIA, PA 19135
MLS# PAPH2567094Listed by: KW EMPOWER - New
$195,000Active3 beds 2 baths1,580 sq. ft.Address Withheld By Seller, PHILADELPHIA, PA 19136
MLS# PAPH2566328Listed by: ABSOLUTE REALTY GROUP - New
$229,900Active3 beds -- baths1,748 sq. ft.5245 Glenloch St, PHILADELPHIA, PA 19124
MLS# PAPH2567042Listed by: KELLER WILLIAMS REAL ESTATE-BLUE BELL - New
$289,900Active4 beds 4 baths1,498 sq. ft.5736 Spruce St, PHILADELPHIA, PA 19139
MLS# PAPH2567092Listed by: MARKET FORCE REALTY - New
$129,900Active5 beds 3 baths1,885 sq. ft.2317 N 30th St, PHILADELPHIA, PA 19132
MLS# PAPH2567082Listed by: ELFANT WISSAHICKON-MT AIRY - New
$234,900Active3 beds 3 baths1,324 sq. ft.2122 E Birch St, PHILADELPHIA, PA 19134
MLS# PAPH2567084Listed by: REALTY ONE GROUP FOCUS - New
$250,000Active3 beds 1 baths2,545 sq. ft.1512 Overington St, PHILADELPHIA, PA 19124
MLS# PAPH2567086Listed by: ELFANT WISSAHICKON-MT AIRY - Open Sat, 12 to 2pmNew
$400,000Active2 beds 1 baths1,443 sq. ft.937 N American St, PHILADELPHIA, PA 19123
MLS# PAPH2560626Listed by: EXP REALTY, LLC