6161 Vandike St, Philadelphia, PA 19135
Local realty services provided by:CENTURY 21 Dale Realty Co.
Upcoming open houses
- Sun, Apr 2612:00 pm - 02:00 pm
Listed by: samuel raymond santiago jr.
Office: redfin corporation
MLS#:PAPH2605078
Source:BRIGHTMLS
Price summary
- Price:$155,000
About this home
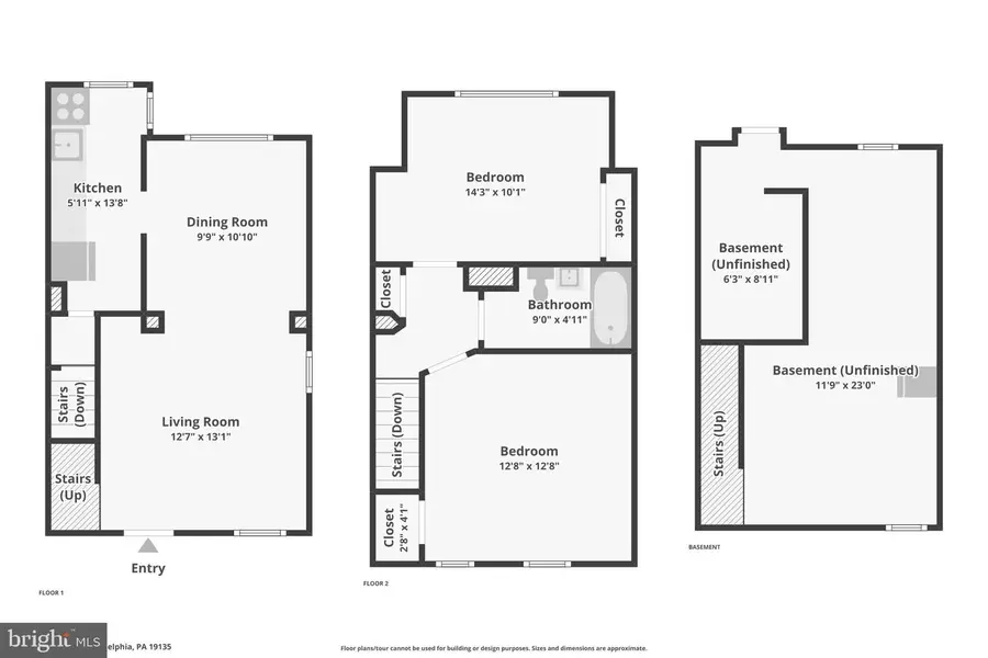
Welcome to 6161 Vandike Street, a well-maintained and thoughtfully updated rowhome in the Wissinoming neighborhood of Northeast Philadelphia. This property presents an excellent opportunity for both homeowners and investors seeking value, functionality, and convenience.
The main level features a bright and open living area with updated flooring that flows seamlessly into the dining space—perfect for everyday living and entertaining. The refreshed kitchen offers ample cabinet storage and an efficient layout designed for practicality.
Upstairs, you’ll find comfortable bedrooms with good natural light and generous closet space, along with a well-appointed full bathroom.
Additional highlights include a clean basement offering extra storage or potential living space, as well as convenient access to local shopping, dining, public transportation, and major roadways.
Whether you’re looking to move right in or expand your investment portfolio, this home is a solid choice in a convenient Northeast Philadelphia location.
Mortgage savings may be available for buyers of this listing....
Contact an agent
Home facts
- Year built:1930
- Listing ID #:PAPH2605078
- Added:13 day(s) ago
- Updated:April 25, 2026 at 01:39 PM
Rooms and interior
- Bedrooms:2
- Total bathrooms:1
- Full bathrooms:1
- Kitchen Description:Built-In Microwave, Built-In Range, Cooktop, Oven - Single, Oven - Wall, Refrigerator
- Basement:Yes
- Basement Description:Full, Fully Finished
Heating and cooling
- Cooling:Window Unit(s)
- Heating:Radiant
Structure and exterior
- Year built:1930
- Construction Materials:Brick, Shingle Siding
- Levels:2 Stories
Utilities
- Water:Public
- Sewer:Public Sewer
Finances and disclosures
- Price:$155,000
- Tax amount:$1,308 (2025)
Parking
- Parking description:On Street
New listings near 6161 Vandike St
- New
$415,000Active2 beds 1 baths800 sq. ft.1930 Kater St, PHILADELPHIA, PA 19146
MLS# PAPH2612598Listed by: HOUWZER, LLC - New
$2,450,000Active4 beds 6 baths4,260 sq. ft.136 N 22nd St, PHILADELPHIA, PA 19103
MLS# PAPH2612620Listed by: COMPASS PENNSYLVANIA, LLC - Coming Soon
$245,000Coming Soon3 beds 3 baths1413 Magee Ave, PHILADELPHIA, PA 19111
MLS# PAPH2612628Listed by: KELLER WILLIAMS REAL ESTATE-LANGHORNE - New
$260,000Active3 beds 2 baths1,144 sq. ft.6675 Musgrave St, PHILADELPHIA, PA 19119
MLS# PAPH2612238Listed by: WEICHERT REALTORS - MOORESTOWN - New
$65,000Active0.02 Acres1845 E Albert St, PHILADELPHIA, PA 19125
MLS# PAPH2612506Listed by: KELLER WILLIAMS REAL ESTATE-DOYLESTOWN - New
$235,000Active3 beds 2 baths1,440 sq. ft.2970 Aramingo Ave, PHILADELPHIA, PA 19134
MLS# PAPH2612618Listed by: RE/MAX AFFILIATES - New
$79,000Active0.04 Acres5852 Willows Ave, PHILADELPHIA, PA 19143
MLS# PAPH2612624Listed by: NOVA REALTY, LLC - New
$85,000Active0.06 Acres130 N 50th St, PHILADELPHIA, PA 19139
MLS# PAPH2612626Listed by: NOVA REALTY, LLC - New
$225,000Active3 beds 1 baths1,022 sq. ft.873 Granite St, PHILADELPHIA, PA 19124
MLS# PAPH2610490Listed by: REALTY ONE GROUP FOCUS - Coming Soon
$279,000Coming Soon3 beds 1 baths427 E Sharpnack St, PHILADELPHIA, PA 19119
MLS# PAPH2612192Listed by: LIBERTY BELL REAL ESTATE BROKERAGE LLC