4481 Hartshorn Circle, Aiken, SC 29801
Local realty services provided by:CENTURY 21 Triangle Group
4481 Hartshorn Circle,Aiken, SC 29801
$314,050
- 4 Beds
- 3 Baths
- 2,325 sq. ft.
- Single family
- Pending
Listed by: richard shaine cobb, tara kinard
Office: stanley martin georgia brokerage llc.
MLS#:98252556
Source:NC_CCAR
Price summary
- Price:$314,050
- Price per sq. ft.:$135.08
About this home
SPECIAL FINANCING rates as low as 4.75%, for life of loan, PLUS up to 6,000 Dollars towards closing costs with use of preferred lender. See Sales Manager for details.
4000 Dollars Real Heroes Discount available for qualified buyers (Active and Retired military, First Responders, and Teachers) on contracts written after 12/12/25 and closing by 3/31/26.
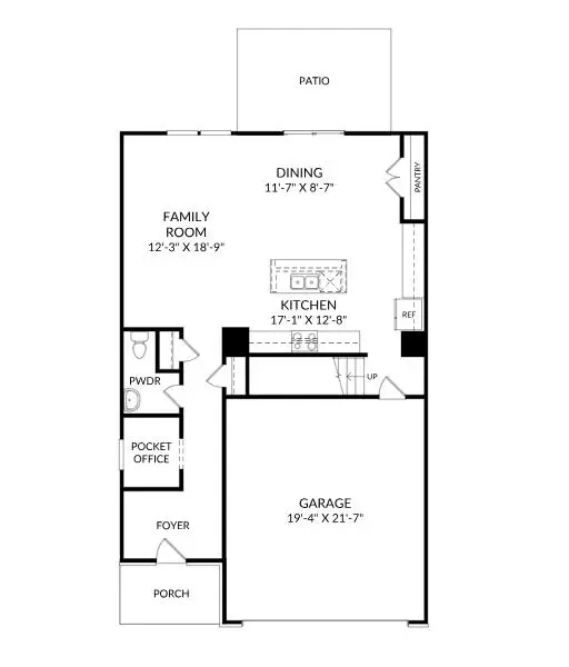
The Tyndall floor plan is designed with functionality and style in mind, offering a versatile layout to suit modern living. Just off the foyer, a convenient office provides an ideal space for remote work or quiet study. The heart of the home is an open-concept living area where the kitchen flows seamlessly into the family room and dining area. The kitchen is a chef's dream, featuring a spacious island, abundant shaker style cabinets, drawer storage, and a generous pantry. Up the beautiful oak stairs, the primary suite is a true retreat with a serene setting, spa inspired bath, and a huge walk-in closet. Three additional bedrooms provide personal space for family or guests, each with their own walk-in closet. A hall bath and a centrally located laundry room complete this thoughtfully designed second level. Garage size matters, so all of ours are over 21' x 19', giving you ample room for parking and storage. The Tyndall offers both practicality and modern comfort for your lifestyle.
Energy efficient construction inspected and tested by The Home Energy Rating System (HERS) index.
Photos used are for illustrative purposes only. Colors and finishes may vary....
Contact an agent
Home facts
- Year built:2026
- Listing ID #:98252556
- Added:112 day(s) ago
- Updated:May 22, 2026 at 07:52 AM
Rooms and interior
- Bedrooms:4
- Total bathrooms:3
- Full bathrooms:2
- Half bathrooms:1
- Rooms Total:7
- Flooring:Carpet
- Dining Description:Eat-in Kitchen
- Kitchen Description:Dishwasher, Disposal, Eat-in Kitchen, Kitchen Island, Pantry, Range
- Bedroom Description:Walk-In Closet(s)
- Living area:2,325 sq. ft.
Heating and cooling
- Cooling:Central Air
- Heating:Forced Air, Heating, Natural Gas
- Central air:Yes
Structure and exterior
- Roof:Composition
- Year built:2026
- Building area:2,325 sq. ft.
- Lot area:0.15 Acres
- Construction Materials:Vinyl Siding
- Exterior Features:Covered, Patio, Porch
- Foundation Description:Slab
- Levels:2 Story
Schools
- High school:Midland Valley
- Middle school:Leavelle McCampbell
- Elementary school:Graniteville Elementary
Finances and disclosures
- Price:$314,050
- Price per sq. ft.:$135.08
Features and amenities
- Appliances:Dishwasher, Disposal, Range
- Laundry features:Washer Hookup
- Amenities:Community Pool, Park, Street Lights, Walk-In Closet(s)
- Pool features:Community Pool
Parking
- Total parking spaces:2
- Parking description:Attached, Attached Garage, Concrete, Garage, Garage Door Opener
New listings near 4481 Hartshorn Circle
- New
$489,900Active3 beds 3 baths2,460 sq. ft.3512 Augustus Road, Aiken, SC 29801
MLS# 100575350Listed by: RE/MAX REINVENTED - New
$429,900Active4 beds 3 baths2,566 sq. ft.288 Cheltenham Drive, Aiken, SC 29803
MLS# 634678Listed by: KELLER WILLIAMS AUGUSTA PARTNERS LLC
$305,160Pending3 beds 2 baths1,662 sq. ft.329 Bay Meadows Drive, Aiken, SC 29803
MLS# 100575645Listed by: SOUTHERN HOMES GROUP REAL ESTATE- New
$314,900Active5 beds 3 baths2,576 sq. ft.498 Tasmanian Oak Nw, Aiken, SC 29801
MLS# SA356303Listed by: SM GEORGIA BROKERAGE LLC - New
$347,959Active4 beds 3 baths2,772 sq. ft.60-051 Tullamore Drive, Aiken, SC 29801
MLS# 100575484Listed by: RE/MAX TATTERSALL GROUP - Open Sun, 12 to 2pmNew
$359,900Active2 beds 3 baths2,308 sq. ft.6 Carnoustie Court, Aiken, SC 29803
MLS# 100575262Listed by: BERKSHIRE HATHAWAY HOMESERVICES
$285,000Active5 beds 3 baths3,414 sq. ft.191 Scott Simmons Circle, AIKEN, SC 29803
MLS# 333746Listed by: PONCE REALTY GROUP- New
$265,000Active3 beds 2 baths1,593 sq. ft.637 Brewer Drive, Aiken, SC 29803
MLS# 100575173Listed by: AUGUSTA REAL ESTATE NOW, LLC - New
$249,900Active-- beds 2 baths1,735 sq. ft.10 Leann Court Nw, Aiken, SC 29801
MLS# 100575183Listed by: OLDE SOUTH PROPERTIES & INVESTMENTS - New
$235,000Active3 beds 2 baths1,300 sq. ft.910 Madrid Court, Aiken, SC 29803
MLS# 100575091Listed by: RE/MAX REINVENTED