179-183 Fishburne Street, Charleston, SC 29403
Local realty services provided by:CENTURY 21 Northland
179-183 Fishburne Street,Charleston, SC 29403
$1,550,000
- 0.21 Acres
- Lots / Land
- Active
Listed by: luiz yamashita, lucas beni
Office: dunes commercial properties
MLS#:25031828
Source:MI_NGLRMLS
Price summary
- Price:$1,550,000
About this home
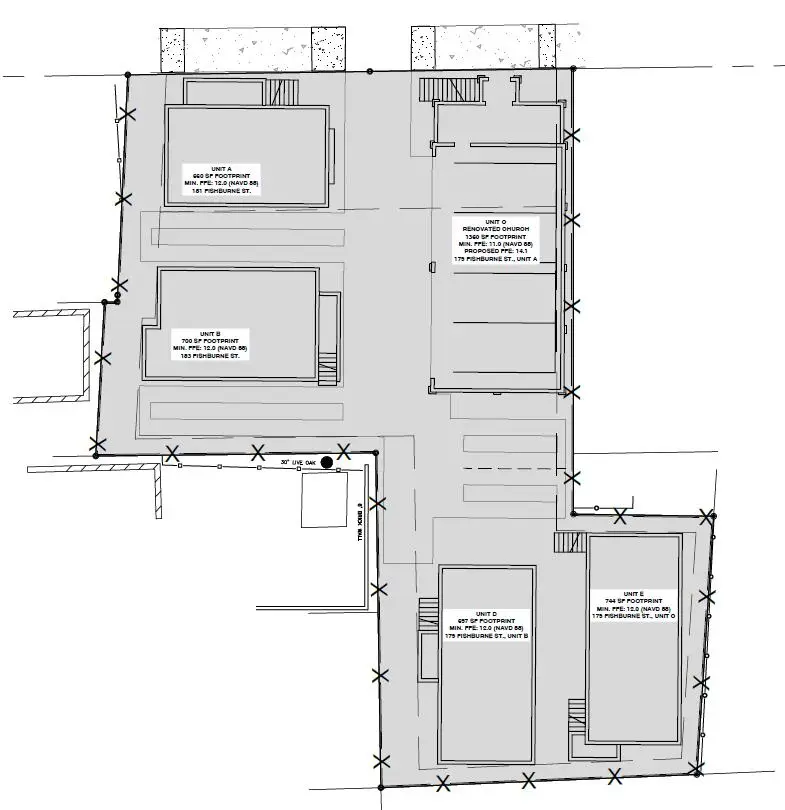
*** Permits are approved and ready to be pulled ***An exceptional permit-ready development opportunity in the heart of Charleston's Westside. 179-183 Fishburne Street is approved for the construction of five new homes, offering a rare chance to deliver a boutique residential project downtown without the long entitlement timeline. The permits are approved and ready to be pulled with the city of Charleston, allowing for a faster path to construction.The development plan includes the conversion of an existing church into a single-family home, creating a distinctive architectural centerpiece for the site. A small structure behind the church is approved for demolition, opening the parcel for efficient site circulation and maximizing buildable area. The project also provides 10 off-strepermits are approved and ready to be pulled
An exceptional permit-ready development opportunity in the heart of Charleston's Westside. 179-183 Fishburne Street is approved for the construction of five new homes, offering a rare chance to deliver a boutique residential project downtown without the long entitlement timeline. The permits are approved and ready to be pulled with the city of Charleston, allowing for a faster path to construction.
The development plan includes the conversion of an existing church into a single-family home, creating a distinctive architectural centerpiece for the site. A small structure behind the church is approved for demolition, opening the parcel for efficient site circulation and maximizing buildable area. The project also provides 10 off-street parking spaces, a significant advantage in this highly walkable downtown neighborhood.
This property also qualifies for the South Carolina Abandoned Building Tax Credit, providing the buyer with substantial potential tax savings and enhancing the overall feasibility and return of the redevelopment.
Ideally located within Charleston's thriving Westside district, the property benefits from immediate proximity to the WestEdge Innovation District, Harmon Field, The Citadel, Hampton Park, and the peninsula's expanding medical district. Residents will enjoy close access to local favorites such as Daps Breakfast & Imbibe, Rodney Scott's BBQ, and the shops and cafes along Spring and Fishburne Streets. Numerous parks, playgrounds, athletic fields, and walking paths sit just steps away, contributing to the strong lifestyle appeal of the area.
With approved plans, strong neighborhood momentum, meaningful incentives, and lasting demand for new residential product downtown, this property stands out as a rare and highly desirable infill development opportunity....
Contact an agent
Home facts
- Listing ID #:25031828
- Updated:March 04, 2026 at 04:08 PM
Structure and exterior
- Lot area:0.21 Acres
Schools
- High school:Burke
- Middle school:Simmons Pinckney
- Elementary school:James Simons
Finances and disclosures
- Price:$1,550,000
New listings near 179-183 Fishburne Street
- New
$399,900Active3 beds 2 baths1,420 sq. ft.1778 Brockington Avenue, Charleston, SC 29407
MLS# 26006926Listed by: EXP REALTY LLC - Open Sat, 12 to 4pmNew
$685,000Active5 beds 3 baths2,355 sq. ft.1732 Crystal Lake Drive, Charleston, SC 29412
MLS# 26006927Listed by: CAROLINA ONE REAL ESTATE - New
$11,500,000Active5 beds 6 baths5,442 sq. ft.125 Tradd Street, Charleston, SC 29401
MLS# 26006932Listed by: THE CASSINA GROUP - New
$419,000Active3 beds 1 baths1,274 sq. ft.908 King Richard Drive, Charleston, SC 29407
MLS# 26006937Listed by: THREE REAL ESTATE LLC - New
$1,175,000Active5 beds 4 baths2,930 sq. ft.1216 Old Towne Road, Charleston, SC 29407
MLS# 26006909Listed by: THE BOULEVARD COMPANY - New
$430,000Active3 beds 2 baths1,290 sq. ft.1025 Riverland Woods Place #311, Charleston, SC 29412
MLS# 26006915Listed by: WEICHERT REALTORS LIFESTYLE - Open Sun, 12 to 2pmNew
$775,000Active3 beds 2 baths1,224 sq. ft.13 Poplar Street, Charleston, SC 29403
MLS# 26006891Listed by: BRAND NAME REAL ESTATE - New
$1,700,000Active7 beds -- baths3,531 sq. ft.123 Smith Street, Charleston, SC 29403
MLS# 26006847Listed by: COMPASS CAROLINAS, LLC - New
$850,000Active4 beds 4 baths4,084 sq. ft.2445 Vaucluse Road, Charleston, SC 29414
MLS# 26006496Listed by: KELLER WILLIAMS REALTY CHARLESTON WEST ASHLEY - Open Sat, 12 to 3pmNew
$464,000Active3 beds 2 baths1,416 sq. ft.1626 Telfair Way, Charleston, SC 29412
MLS# 26006872Listed by: CAROLINA ONE REAL ESTATE