615 Du Bois Drive, Johns Island, SC 29455
Local realty services provided by:CENTURY 21 Signature Realty
615 Du Bois Drive,Johns Island, SC 29455
$709,990
- 3 Beds
- 3 Baths
- 2,314 sq. ft.
- Single family
- Pending
Listed by: suzanne scholz
Office: sm south carolina brokerage llc.
MLS#:26004071
Source:MI_NGLRMLS
Price summary
- Price:$709,990
- Price per sq. ft.:$306.82
About this home
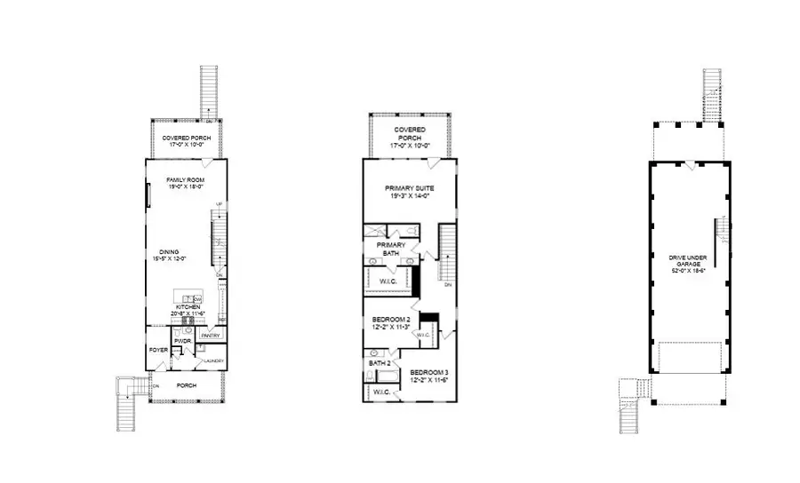
This brand-new Stanley Martin home is on a gorgeous lot backing to woods with double stacked rear porches to take in the views! List price includes lot premium, all structural options and one of our ''Tailored'' design collections. INCLUDED INSIDE: 10ft ceilings on main level, Fireplace, Gourmet gas kitchen, tile backsplash, Quartz counters in kitchen & baths, hard surface flooring throughout main living areas, tile floors in all baths, fully tiled Primary shower & wood treads on stairs. NO CARPET- hard surface flooring throughout! INCLUDED OUTSIDE: Screened porch, porch off primary bedroom suite, ground level patio, Irrigation system, Gutters, and tankless water heater. Indigo Grove offers modern living just 15 miles from beaches and minutes from downtown Charleston.Enjoy beautiful community amenities including: pool, covered pavilion, walking trails, and easy access to shopping and dining. Experience the charm of Johns Island, where a vibrant culinary scene, scenic parks, and lively community events create an inviting lifestyle. Ideally situated with convenient access to Downtown Charleston, world-class golf courses, and beautiful beaches! Call today to schedule a tour! April/May 2026 Completion...
Contact an agent
Home facts
- Year built:2026
- Listing ID #:26004071
- Updated:April 02, 2026 at 07:14 AM
Rooms and interior
- Bedrooms:3
- Total bathrooms:3
- Full bathrooms:2
- Half bathrooms:1
- Flooring:Laminate
- Kitchen Description:Pantry
- Living area:2,314 sq. ft.
Heating and cooling
- Cooling:Central Air
- Central air:Yes
Structure and exterior
- Year built:2026
- Building area:2,314 sq. ft.
- Lot area:0.15 Acres
- Lot Features:Wooded
Schools
- High school:St. Johns
- Middle school:Haut Gap
- Elementary school:Angel Oak ES 4K-1/Johns Island ES 2-5
Finances and disclosures
- Price:$709,990
- Price per sq. ft.:$306.82
Parking
- Total parking spaces:9
- Garage:Yes
- Garage spaces:9
New listings near 615 Du Bois Drive
- New
$775,000Active4 beds 4 baths3,313 sq. ft.1092 Saltwater Circle, Johns Island, SC 29455
MLS# 26009211Listed by: CAROLINA ONE REAL ESTATE - New
$1,450,000Active4 beds 4 baths3,180 sq. ft.1611 Zurlo Way, Johns Island, SC 29455
MLS# 26009173Listed by: EXP REALTY LLC - New
$699,990Active4 beds 4 baths2,168 sq. ft.3055 Robeson Trace, Johns Island, SC 29455
MLS# 26009165Listed by: SM SOUTH CAROLINA BROKERAGE LLC - New
$614,900Active3 beds 3 baths2,358 sq. ft.1903 Toland Court, Johns Island, SC 29455
MLS# 26009128Listed by: EXP REALTY LLC - New
$400,000Active0.3 Acres1371 River Road, Johns Island, SC 29455
MLS# 26008923Listed by: EXP REALTY LLC - New
$849,000Active3 beds 3 baths2,370 sq. ft.2160 Nicholas David Path, Johns Island, SC 29455
MLS# 26009067Listed by: BEACH RESIDENTIAL - New
$719,000Active3 beds 2 baths2,239 sq. ft.4303 Hugh Bennett Drive, Johns Island, SC 29455
MLS# 26009060Listed by: AKERS ELLIS REAL ESTATE LLC - Open Sat, 11am to 1pmNew
$675,000Active4 beds 3 baths2,590 sq. ft.6030 Rainbow Trout Drive, Johns Island, SC 29455
MLS# 26008967Listed by: CAROLINA ONE REAL ESTATE - New
$315,000Active1 beds 1 baths944 sq. ft.7515 Indigo Palms Way, Johns Island, SC 29455
MLS# 26008959Listed by: EXP REALTY LLC - New
$483,000Active3 beds 2 baths1,416 sq. ft.2794 August Road, Johns Island, SC 29455
MLS# 26008951Listed by: ISLAND HOUSE REAL ESTATE