- CENTURY 21 Real Estate
- South Carolina
- Lexington
- 505 Kingfisher Court
505 Kingfisher Court, Lexington, SC 29072
Local realty services provided by:CENTURY 21 The Harrelson Group
505 Kingfisher Court,Lexington, SC 29072
$245,000
- 3 Beds
- 3 Baths
- 1,708 sq. ft.
- Townhouse
- Active
Listed by: tricia kim, laura hooper
Office: keller williams palmetto
MLS#:626489
Source:SC_CML
Price summary
- Price:$245,000
- Price per sq. ft.:$143.44
- Monthly HOA dues:$136.67
About this home
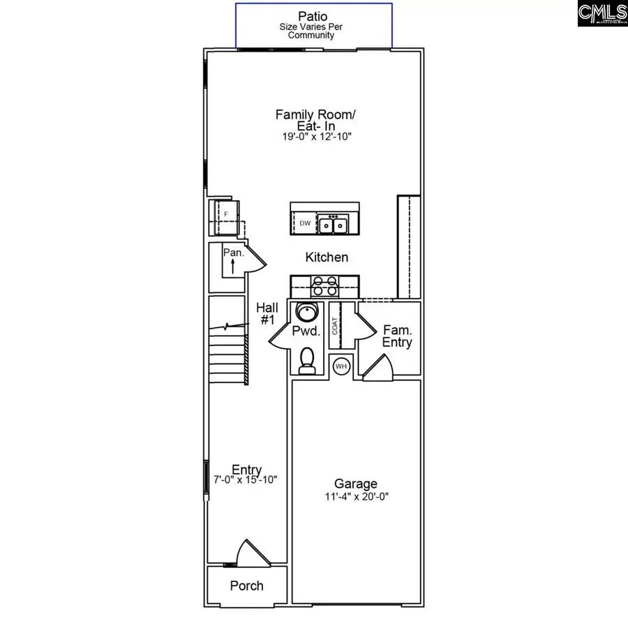
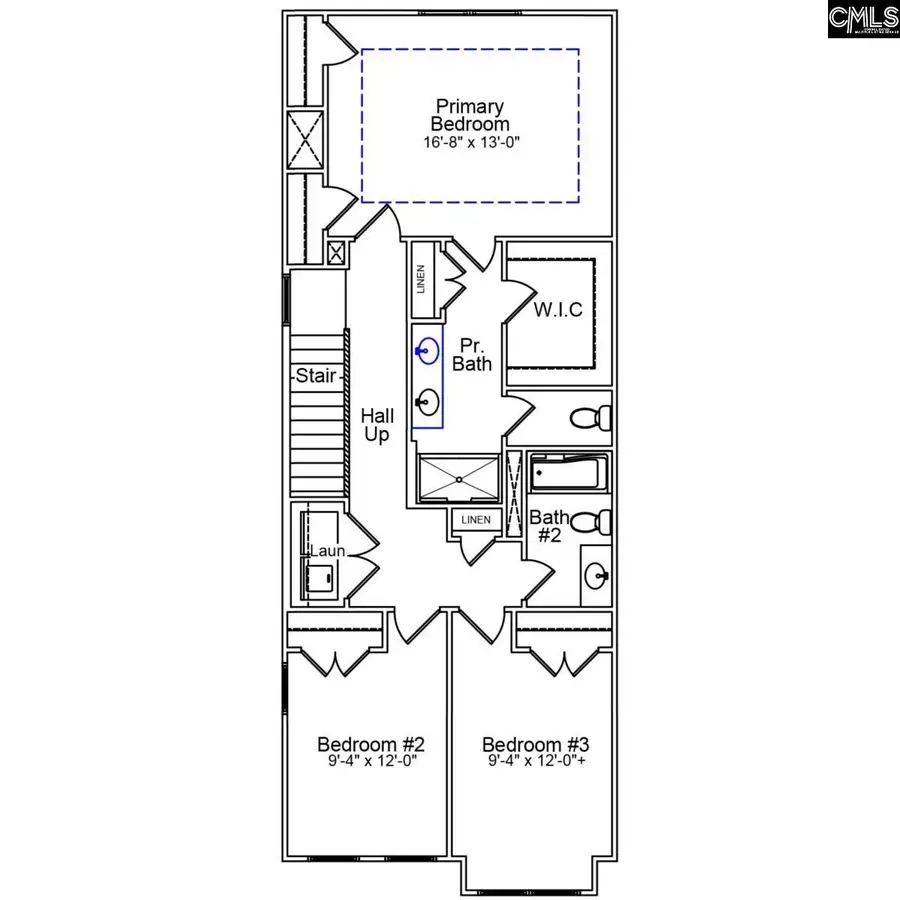
Built in 2023 and move-in ready, this Lexington 29073 townhome features near-new construction with the opportunity to build equity by making it your own. Located on a spacious corner lot in Murray Village, just minutes from Highway 378 and Lake Murray. The welcoming entry leads past the staircase and a convenient half bath into a bright open-concept floor plan featuring a spacious living area, eat-in dining space, and kitchen—ideal for entertaining or everyday living. The kitchen provides ample counter space, abundant cabinetry, and a spacious pantry, providing excellent storage and functionality. Neutral, basic finishes throughout create a clean, modern look and present a great opportunity for buyers to build equity by adding upgrades and personal touches over time. Upstairs, the primary suite includes a private bath and exceptional storage with a large walk-in closet, two additional closets, and a separate linen closet—a rare and highly desirable feature. Two additional bedrooms and a full bathroom provide flexibility for guests, home office space, or hobbies. A conveniently located upstairs laundry closet adds everyday ease. The mudroom area off the one-car garage includes a coat closet and space to add a drop station, enhancing organization and everyday functionality. Additional highlights include a low-maintenance exterior. Location provides easy access to shopping, dining, and everyday conveniences, while being a short drive to Lake Murray, downtown Columbia, and major employers. Zoned for Lexington School District One and close to popular Gilbert-area amenities, Murray Village provides a balance of suburban comfort and commuter convenience. This property is ideal for first-time buyers, downsizers, or investors seeking a newer home in one of Lexington County’s fastest-growing areas. Disclaimer: CMLS has not reviewed and, therefore, does not endorse vendors who may appear in listings.
Contact an agent
Home facts
- Year built:2023
- Listing ID #:626489
- Added:1 day(s) ago
- Updated:February 10, 2026 at 04:12 AM
Rooms and interior
- Bedrooms:3
- Total bathrooms:3
- Full bathrooms:2
- Half bathrooms:1
- Living area:1,708 sq. ft.
Heating and cooling
- Cooling:Central
- Heating:Central
Structure and exterior
- Year built:2023
- Building area:1,708 sq. ft.
- Lot area:0.17 Acres
Schools
- High school:Lexington
- Middle school:Beechwood Middle School
- Elementary school:LakeMurray (Lex 1)
Utilities
- Water:Public
- Sewer:Public
Finances and disclosures
- Price:$245,000
- Price per sq. ft.:$143.44
New listings near 505 Kingfisher Court
- New
$232,900Active3 beds 2 baths1,301 sq. ft.447 Finch Lane, Lexington, SC 29073
MLS# 626490Listed by: CENTURY 21 803 REALTY - New
$209,900Active3 beds 3 baths1,360 sq. ft.1150 Ederbach Drive, Lexington, SC 29073
MLS# 626527Listed by: KELLER WILLIAMS PALMETTO - New
$27,500Active0.5 AcresTBD Peachtree Rock Road, Lexington, SC 29073
MLS# 626485Listed by: NEXTHOME MIDLANDS - New
$235,000Active3 beds 3 baths1,500 sq. ft.113 Opago Way, Lexington, SC 29073
MLS# 626466Listed by: JPAR MAGNOLIA GROUP - New
$275,000Active4 beds 3 baths2,040 sq. ft.525 Timbermill Drive, Lexington, SC 29073
MLS# 626478Listed by: CHOSEN REALTY LLC - New
$239,900Active4 beds 3 baths1,720 sq. ft.175 Savannah Hills Drive, Lexington, SC 29073
MLS# 626459Listed by: CAUGHMAN REALTY - New
$549,000Active5 beds 4 baths4,210 sq. ft.209 Madison Park Drive, Lexington, SC 29072
MLS# 626434Listed by: INDIGO REAL ESTATE LLC - New
$308,285Active4 beds 4 baths2,319 sq. ft.135 Bloomsbury Drive, Lexington, SC 29073
MLS# 626422Listed by: SM SOUTH CAROLINA BROKERAGE LLC - New
$259,000Active3 beds 3 baths1,525 sq. ft.257 Allenbrooke Way, Lexington, SC 29072
MLS# 626412Listed by: CAMERON GROUP REALTY