9 Millbrook Circle, Okatie, SC 29909
Local realty services provided by:CENTURY 21 A Low Country Realty
9 Millbrook Circle,Okatie, SC 29909
$2,850,000
- 4 Beds
- 4 Baths
- 4,320 sq. ft.
- Single family
- Active
Listed by: may river group, tanner sutphin, sloan heintschel
Office: maxey blackstream christie's international real estate (898)
MLS#:503355
Source:SC_HHMLS
Price summary
- Price:$2,850,000
- Price per sq. ft.:$659.72
About this home
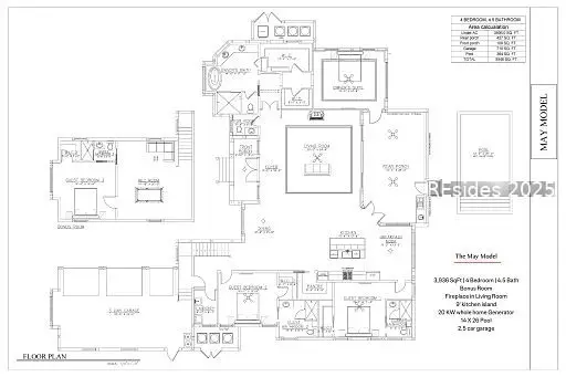
Located within thе prіvаte gates of Berkeley Hall, thіs рroposed new construction offers a rare opportunity to build a custom luxury home in one of the Lowcountry's most sought-after communities, WITH the community transfer fee of $125,000 INCLUDED as part of this pre-construction offering, delivering exceptional value from the outset. Celebrated for its outstanding amenities, championship golf, and elevated lifestyle, Berkeley Hall is where elegance, comfort, and exclusivity define everyday living. This residence will be crafted by May Residential Builders, an award-winning luxury builder recognized for precision craftsmanship, refined architectural design, and enduring quality. Built to 180 mph hurricane-rated standards, each home incorporates premium materials selected for both aesthetic appeal and long-term durability. A recent Lighthouse Award recipient, earning honors for Best Exterior and Best Kitchen, along with Second Place for Interior Design... the builder's commitment to excellence is evident at every level. The showcased May model for this homesite features approximately 4,250 square feet of thoughtfully designed living space, offering four bedrooms and an open, well-balanced floor plan ideal for both everyday living and refined entertaining. A fireplace anchors the main living area, while an optional finished bonus room provides flexible space for a media room, office, fitness area, or additional guest accommodations. Outdoor living is elevated with a private pool included, along with a generator and propane tank for added convenience and peace of mind. Buyers have the opportunity to customize finishes and design selections to reflect their personal style. The May model kitchen, exterior fireplace, primary bathroom, and floor plans are all available for viewing in the photo gallery, offering a clear vision of the craftsmanship, layout, and design possibilities this home can deliver. This home will come fully furnished and decorated....
Contact an agent
Home facts
- Year built:2026
- Listing ID #:503355
- Added:521 day(s) ago
- Updated:April 24, 2026 at 02:17 PM
Rooms and interior
- Bedrooms:4
- Total bathrooms:4
- Full bathrooms:3
- Half bathrooms:1
- Kitchen Description:Dishwasher, Disposal, Microwave, Oven, Refrigerator, Stove
- Living area:4,320 sq. ft.
Heating and cooling
- Cooling:Central Air, Heat Pump
- Heating:Heat Pump
- Central air:Yes
Structure and exterior
- Roof:Asphalt
- Year built:2026
- Building area:4,320 sq. ft.
- Lot area:0.52 Acres
- Exterior Features:Patio, Porch, Rear Porch
- Levels:Two Story
Finances and disclosures
- Price:$2,850,000
- Price per sq. ft.:$659.72
Features and amenities
- Appliances:Dishwasher, Disposal, Dryer, Microwave, Oven, Refrigerator, Stove, Tankless Water Heater, Washer
- Laundry features:Dryer, Washer
- Amenities:Ceiling fans, Furnished
- Pool features:Community Pool, Pool, Private Pool
Parking
- Parking description:Driveway, Garage, Golf Cart Parking
- Garage:Yes
- Garage spaces:2
New listings near 9 Millbrook Circle
- New
$532,500Active2 beds 2 baths2,278 sq. ft.10 Fairforest Lane, Bluffton, SC 29909
MLS# 195937Listed by: HOWARD HANNA ALLEN TATE LOWCOU - New
$425,000Active2 beds 2 baths1,564 sq. ft.37 Fenwick Drive, Bluffton, SC 29909
MLS# 507556Listed by: HOWARD HANNA ALLEN TATE LOWCOUNTRY (222) - New
$695,000Active3 beds 2 baths2,513 sq. ft.100 Herons Bill Drive, Bluffton, SC 29909
MLS# 507964Listed by: REALTY ONE GROUP - LOWCOUNTRY (597) - New
$749,900Active3 beds 2 baths1,969 sq. ft.248 Eagle Landing Lane, Bluffton, SC 29909
MLS# 507508Listed by: CHARTER ONE REALTY (063I) - New
$625,000Active2 beds 2 baths2,289 sq. ft.24 Wendover Court, Bluffton, SC 29909
MLS# 195883Listed by: HOWARD HANNA ALLEN TATE LOWCOU - New
$447,800Active2 beds 2 baths1,864 sq. ft.20 Orion Place, Bluffton, SC 29909
MLS# 507934Listed by: REALTY ONE GROUP - LOWCOUNTRY (597) - New
$385,000Active3 beds 2 baths1,470 sq. ft.39 Basket Walk Drive, Bluffton, SC 29909
MLS# 507797Listed by: KELLER WILLIAMS REALTY (322) - Open Sat, 12 to 2pmNew
$639,500Active4 beds 4 baths2,831 sq. ft.363 Danner Drive, Bluffton, SC 29909
MLS# 507855Listed by: LOWCOUNTRY LIVE OAK REALTY (883) - New
$325,000Active2 beds 2 baths1,280 sq. ft.1 Coburn Lane, Bluffton, SC 29909
MLS# 507913Listed by: EXP REALTY LLC (938) - New
$4,375,000Active6 beds 7 baths7,636 sq. ft.25 Goose Pond Circle, Okatie, SC 29909
MLS# 507884Listed by: SPRING ISLAND REALTY LLC (753)