1627 Sundiata Street, Piedmont, SC 29673
Local realty services provided by:CENTURY 21 Triangle Group
1627 Sundiata Street,Piedmont, SC 29673
$233,589
- 4 Beds
- 3 Baths
- - sq. ft.
- Townhouse
- Pending
Listed by: katherine jarrett
Office: lennar carolinas llc.
MLS#:1584158
Source:SC_GGAR
Price summary
- Price:$233,589
- Monthly HOA dues:$140
About this home
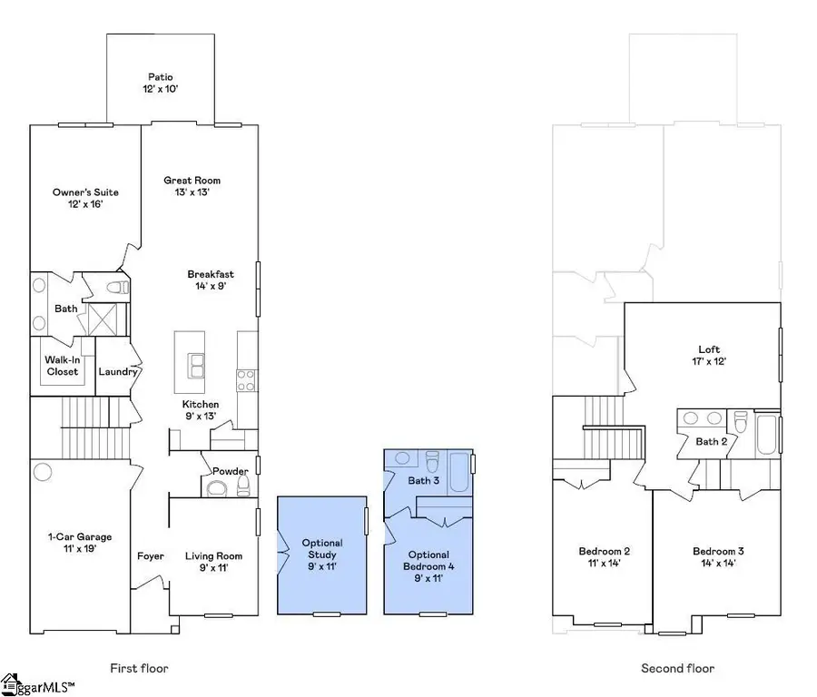
Welcome home to the beautiful Berkley. This home embodies sophistication and elegance. As you enter the home you will find a beautiful light-filled guest bedroom with en suite bathroom. The chef's kitchen features white and gray shaker style cabinets with a stunning quartz countertop, tile backsplash, and a 5-burner gas range with griddle. The kitchen is open to the breakfast room and large great room where you can enjoy hosting friends and family. The stunning primary suite features a spa-like en-suite with tiled shower, private water closet, and large walk-in closet. Upstairs offers an amazing loft space which is great for another family room, media room, or craft room...the possibilities are endless!! Plus, two more secondary bedrooms and a full bath and dual sinks. Woodmont Springs is a master-planned community offering new single-family and multi-family homes, located in Piedmont, SC. Nestled along the Saluda River, Piedmont is a charming southern area bringing tons of outdoor activities, parks and recreation within close reach. Go fishing, kayaking, whitewater rafting, camping and hiking at the Upper Saluda River. Nearby are Greenville Zoo and Piedmont Athletic Complex. 15 miles north is Greenville and in less than 30 miles is Greer for more shopping, dining and entertainment options....
Contact an agent
Home facts
- Listing ID #:1584158
- Added:34 day(s) ago
- Updated:April 14, 2026 at 07:36 AM
Rooms and interior
- Bedrooms:4
- Total bathrooms:3
- Full bathrooms:3
- Flooring:Carpet
- Kitchen Description:Dishwasher, Disposal, Microwave
Heating and cooling
- Cooling:Damper Controlled, Electric
- Heating:Damper Controlled, Forced Air, Natural Gas
- Central air:Yes
Structure and exterior
- Roof:Composition
- Lot area:0.05 Acres
- Lot Features:1/2 Acre or Less
- Architectural Style:Craftsman
- Construction Materials:Stone, Vinyl Siding
- Exterior Features:Patio
- Foundation Description:Slab
- Levels:2 Story
Schools
- High school:Woodmont
- Middle school:Woodmont
- Elementary school:Sue Cleveland
Utilities
- Water:Public
- Sewer:Public Sewer
Finances and disclosures
- Price:$233,589
Features and amenities
- Appliances:Dishwasher, Electric Water Heater, Microwave
- Laundry features:1st Floor, Electric Dryer Hookup, Laundry Closet
- Amenities:int_feat_Ceiling Smooth, int_feat_Countertops Quartz, int_feat_High Ceilings, int_feat_Open Floorplan, int_feat_Pantry, int_feat_Walk-In Closet(s)
Parking
- Total parking spaces:1
- Parking description:Attached, Concrete, Driveway, Garage Door Opener
- Garage:Yes
- Garage spaces:1
New listings near 1627 Sundiata Street
- New
$279,900Active4 beds 2 baths220 Creekstone Drive, Piedmont, SC 29673
MLS# 1587973Listed by: SOUTHERN REAL ESTATE & DEVELOP - New
$289,900Active3 beds 2 baths1,542 sq. ft.110 Blooming Meadow Road, Piedmont, SC 29673
MLS# 335777Listed by: MTH SC REALTY, LLC - New
$429,900Active4 beds 3 baths2,858 sq. ft.348 Allingham Road, Piedmont, SC 29673
MLS# 335762Listed by: MTH SC REALTY, LLC - New
$301,439Active5 beds 3 baths7 Sealy Street, Piedmont, SC 29673
MLS# 1587584Listed by: LENNAR CAROLINAS LLC - New
$399,900Active5 beds 4 baths200 Michael Drive, Piedmont, SC 29673
MLS# 1587514Listed by: NAVIGATE REALTY
$297,719Pending5 beds 3 baths6 Sealy Street, Piedmont, SC 29673
MLS# 1587195Listed by: LENNAR CAROLINAS LLC- New
$244,900Active3 beds 2 baths112 Michael Drive, Piedmont, SC 29673
MLS# 1586969Listed by: LPT REALTY, LLC.
$289,900Pending2 beds 2 baths21 Haynes Street, Piedmont, SC 29673
MLS# 1586922Listed by: REEDY PROPERTY GROUP, LLC - RESIDENTIAL
$569,000Active3 beds 3 baths103 Evans Grove Road, Piedmont, SC 29673
MLS# 1586651Listed by: BHHS C.DAN JOYNER-WOODRUFF RD
$294,719Pending5 beds 3 baths100 Stokely Way, Piedmont, SC 29673
MLS# 1586594Listed by: LENNAR CAROLINAS LLC