1358 Sanctum Street, Ridgeland, SC 29936
Local realty services provided by:CENTURY 21 North East
1358 Sanctum Street,Ridgeland, SC 29936
$398,990
- 5 Beds
- 3 Baths
- 2,361 sq. ft.
- Single family
- Pending
Listed by: mike caylor
Office: d r horton inc. (589)
MLS#:455050
Source:SC_HHMLS
Price summary
- Price:$398,990
- Price per sq. ft.:$168.99
About this home
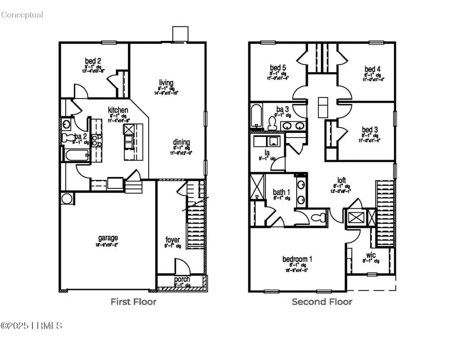
Five Bedroom under 400K! Introducing the Robie a thoughtfully designed 5-bedroom, 3-bath home with 2,361 square feet of flexible living space and a 2-car garage, perfect for families who crave both space and functionality. Located in The Retreat at East Argent, this plan is a fan favorite and for good reason. The first floor features a welcoming open layout anchored by a dream-worthy kitchen that's as practical as it is polished. With an abundance of cabinetry, sleek stainless-steel appliances, a large walk-in pantry, and a large island that doubles as a prep space and social hub, it's designed to keep pace with the busiest lifestyles. The adjoining dining and living areas make hosting a breeze, and the main-level bedroom and full bath provide the ideal setup for guests or a home office. Upstairs, the primary suite is a sanctuary, boasting a spacious walk-in closet, double vanity, linen closet and a large walk-in shower. A versatile loft offers extra room for work or play, while three additional bedrooms, a full hall bath, and a convenient upstairs laundry room check all the boxes for everyday ease. With Smart Home Technology, 2 faux wood blinds, benefits of natural gas and a design that adapts to your life, the Robie delivers the perfect blend of comfort, flexibility, and style. Home is under construction. Pictures, photographs, colors, features, & sizes are for illustration purposes only and will vary from the homes as built. The photos are Not of subject property. . More information on programs and options are available for this home. Model home hours Mon-Sat 10 am-5:30 pm & Sun 12 -5:30 pm...
Contact an agent
Home facts
- Year built:2026
- Listing ID #:455050
- Added:243 day(s) ago
- Updated:March 19, 2026 at 07:37 AM
Rooms and interior
- Bedrooms:5
- Total bathrooms:3
- Full bathrooms:3
- Flooring:Carpet, Luxury Vinyl Plank
- Kitchen Description:Dishwasher, Disposal, Gas Range, Microwave, Pantry, Self-Cleaning Oven
- Living area:2,361 sq. ft.
Heating and cooling
- Cooling:Central Air
- Heating:Gas
- Central air:Yes
Structure and exterior
- Roof:Fiberglass
- Year built:2026
- Building area:2,361 sq. ft.
- Lot area:0.12 Acres
- Exterior Features:Patio
- Levels:Two Story
Finances and disclosures
- Price:$398,990
- Price per sq. ft.:$168.99
Features and amenities
- Appliances:Dishwasher, Disposal, Gas Range, Microwave, Self Cleaning Oven, Tankless Water Heater
- Amenities:Loft, Smart Thermostat
- Pool features:Community Pool, Pool
- Smart home:Yes
Parking
- Parking description:Driveway, Garage
- Garage:Yes
- Garage spaces:2
New listings near 1358 Sanctum Street
- New
$319,900Active3 beds 2 baths1,857 sq. ft.97 Ridgeland Lakes Drive, Ridgeland, SC 29936
MLS# 194810Listed by: EXP REALTY LLC - BLUFFTON - New
$319,900Active3 beds 2 baths1,540 sq. ft.97 Ridgeland Lakes Drive, Ridgeland, SC 29936
MLS# 505015Listed by: EXP REALTY LLC (938) - New
$320,000Active3 beds 2 baths1,266 sq. ft.53 Logan Street, Ridgeland, SC 29936
MLS# 505740Listed by: FATHOM REALTY (817) - New
$775,000Active4 beds 4 baths2,800 sq. ft.342 R&m Plantation Circle, Ridgeland, SC 29936
MLS# 505696Listed by: STERLING ASHLEY, LLC (741)
$356,490Pending4 beds 2 baths1,774 sq. ft.27 Pollen Drive, Ridgeland, SC 29936
MLS# 505682Listed by: D R HORTON INC. (589)
$367,490Pending3 beds 3 baths1,518 sq. ft.916 Sanctum Street, Ridgeland, SC 29936
MLS# 505684Listed by: D R HORTON INC. (589)
$269,900Pending3 beds 2 baths1,158 sq. ft.260 Weathersbee Street, Ridgeland, SC 29936
MLS# 505676Listed by: SERHANT (932)- Open Sun, 11am to 5pm
$499,000Pending5 beds 3 baths2,432 sq. ft.256 Green Acres Road, Ridgeland, SC 29936
MLS# 195155Listed by: THE HOMESFINDER REALTY GROUP - New
$70,000Active1.13 Acres162 Wright Road #B, Ridgeland, SC 29936
MLS# 505655Listed by: ALIGN RIGHT REALTY SIGNATURE HH (655) - New
$345,000Active4 beds 3 baths2,022 sq. ft.105 Okatie Park Circle W, Ridgeland, SC 29936
MLS# 194478Listed by: THE FARIS GROUP BKD BY EXP