0 Mcintosh Dr, Columbia, TN 38401

Local realty services provided by:CENTURY 21 Premier
0 Mcintosh Dr,Columbia, TN 38401
$149,900
  • 1 Acres
  • Lots / Land
  • Active
Listed by: brian bandas
Office: keller williams realty
MLS#:2986824
Source:NASHVILLE

Price summary

  • Price:$149,900

About this home

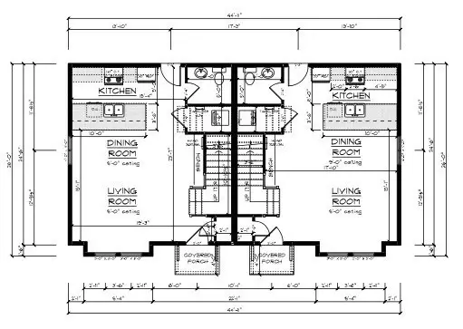
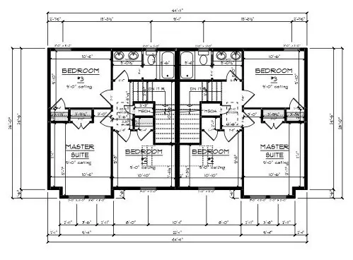
3 Parcels zoned for single family or duplexes - READY TO BUILD! Pleasant views out over the treed neighborhood below. Land has been fully cleared. Infrastructure: Sewer main extension already approved by City of Columbia and engineering plans are complete. CPWS wants improvement to pump station for water pressure at hydrants. Water main is at the street. Site plan drawn by T-Sqaure engineering. Sale includes all site plans, architectural plans, etc.

Contact an agent

contact an agent

Yes, I would like more information. Please use and/or share my information with an independent agent affiliated with the CENTURY 21®  brand to contact me about my real estate needs. By clicking Send message, I request to be contacted by phone or text message and consent to being contacted by automated means. I understand that my consent to receive calls or texts is not a condition of purchasing any property, goods, or services. Alternatively, I understand that I can access real estate services by email or I can contact the agent myself.

If an independent agent affiliated with the CENTURY 21®  brand is not available in the area where I need assistance, I agree to be contacted by a real estate agent affiliated with another brand owned or licensed by Anywhere Real Estate (BHGRE® , Coldwell Banker® , Corcoran® , ERA® , Sotheby's International Realty® ).
 I acknowledge that I have read and agree to theTerms of useandPrivacy notice

Home facts

  • Listing ID #:2986824
  • Added:170 day(s) ago
  • Updated:February 19, 2026 at 03:22 PM

Structure and exterior

  • Lot area:1 Acres

Schools

  • High school:Columbia Central High School
  • Middle school:Whitthorne Middle School
  • Elementary school:J. Brown Elementary

Utilities

  • Water:Public, Water Available
  • Sewer:Public Sewer

Finances and disclosures

  • Price:$149,900
  • Tax amount:$107
MLS LogoCopyright 2026 Realtracs Mls. All rights reserved. Realtracs Mls provides content displayed here (“provided content”) on an “as is” basis and makes no representations or warranties regarding the provided content, including, but not limited to those of non-infringement, timeliness, accuracy, or completeness. Individuals and companies using information presented are responsible for verification and validation of information they utilize and present to their customers and clients. Realtracs Mls will not be liable for any damage or loss resulting from use of the provided content or the products available through Portals, IDX, VOW, and/or Syndication. Recipients of this information shall not resell, redistribute, reproduce, modify, or otherwise copy any portion thereof without the expressed written consent of Realtracs Mls.