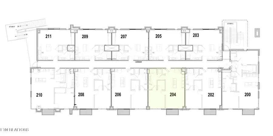
255 S Gay St #204, Knoxville, TN 37902
Local realty services provided by:CENTURY 21 Legacy
255 S Gay St #204,Knoxville, TN 37902
$507,500
- 1 Beds
- 1 Baths
- 691 sq. ft.
- Single family
- Pending
Listed by: mary katherine wormsley, megan riley hatcher
Office: hatcher-hill brokerage, llc.
MLS#:1305918
Source:TN_KAAR
Price summary
- Price:$507,500
- Price per sq. ft.:$734.44
About this home
PRESALE OPPORTUNITY! The first new construction in the heart of downtown in 40 years on the 200 Block of Gay Street! Spacious 1 bed/1 bath with an open kitchen to living room that leads you out onto the FULL BALCONY overlooking Gay Street. A rare opportunity to have a balcony sitting 3 stories up from Gay Street -- The perfect spot to enjoy downtown events and parades. Short term rentals ALLOWED! Short term rentals are only permitted on floors 2 & 3 of the West building and the top floor of the East building. New Construction so property taxes to be estimated by Buyer. No showings at this time as it is a current construction site. Summit Hill Drive Building is estimated to be completed in November 2025, 255 S. Gay Street building is estimated to be completed in February 2026. Please check document section as this contains HOA information, additional disclosures, finish schedule and general information about the project.
Contact an agent
Home facts
- Year built:2025
- Listing ID #:1305918
- Added:299 day(s) ago
- Updated:April 20, 2026 at 07:30 AM
Rooms and interior
- Bedrooms:1
- Total bathrooms:1
- Full bathrooms:1
- Rooms Total:3
- Flooring:Vinyl
- Basement:Yes
- Living area:691 sq. ft.
Heating and cooling
- Cooling:Central Cooling
- Heating:Central, Electric
Structure and exterior
- Year built:2025
- Building area:691 sq. ft.
- Lot area:0.61 Acres
- Construction Materials:Brick, Steel
- Exterior Features:Balcony
Utilities
- Sewer:Public Sewer
Finances and disclosures
- Price:$507,500
- Price per sq. ft.:$734.44
Parking
- Parking description:Off-Street Parking
New listings near 255 S Gay St #204
- Coming Soon
$379,000Coming Soon3 beds 2 baths529 Annandale Rd, Knoxville, TN 37934
MLS# 1337490Listed by: KELLER WILLIAMS WEST KNOXVILLE - Coming Soon
$416,500Coming Soon3 beds 3 baths5726 Lagerfield Lane, Knoxville, TN 37918
MLS# 1337491Listed by: WALLACE JENNIFER SCATES GROUP - New
$830,000Active4 beds 3 baths2,766 sq. ft.952 Spinnaker Rd, Knoxville, TN 37934
MLS# 1337455Listed by: KNOX REALTY - Coming Soon
$399,900Coming Soon3 beds 3 baths1729 Point Wood Drive, Knoxville, TN 37920
MLS# 1337457Listed by: REALTY EXECUTIVES ASSOCIATES - Coming SoonOpen Sat, 3 to 6pm
$310,000Coming Soon2 beds 2 baths513 Floriade Way, Knoxville, TN 37923
MLS# 1337447Listed by: COUNTRY LIVING REALTY - New
$340,000Active3 beds 2 baths1,925 sq. ft.4324 Royalview Rd, Knoxville, TN 37921
MLS# 1337450Listed by: UNITED REAL ESTATE SOLUTIONS - New
$520,000Active3 beds 3 baths1,938 sq. ft.2132 Willow Creek Lane, Knoxville, TN 37909
MLS# 1337443Listed by: TERMINUS REAL ESTATE, INC. - New
$474,900Active3 beds 3 baths2,054 sq. ft.4006 Gumwood Lane, Knoxville, TN 37921
MLS# 711170Listed by: CRYE-LEIKE LAKEWAY REAL ESTATE - New
$395,000Active3 beds 2 baths1,507 sq. ft.6560 Cara Cade Lane, Knoxville, TN 37931
MLS# 1337438Listed by: RED DOOR BROKERS - New
$275,000Active3 beds 2 baths1,701 sq. ft.8501 Ankara Court, Knoxville, TN 37923
MLS# 1337390Listed by: KELLER WILLIAMS WEST KNOXVILLE