853 Walker Springs Rd, Knoxville, TN 37923
Local realty services provided by:CENTURY 21 Legacy
853 Walker Springs Rd,Knoxville, TN 37923
$384,900
- 3 Beds
- 2 Baths
- 1,758 sq. ft.
- Single family
- Pending
Listed by: ashley petras
Office: leconte realty, llc.
MLS#:1331771
Source:TN_KAAR
Price summary
- Price:$384,900
- Price per sq. ft.:$218.94
About this home
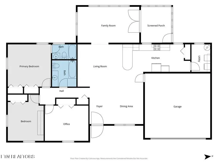
Located in the established Crestwood Hills neighborhood, this 3-bedroom, 2-bath ranch offers 1,758 sq ft of single-level living designed for comfort and functionality. Inside, vinyl plank and tile flooring run throughout the home, creating a clean, low-maintenance living space with a consistent look from room to room.
The layout flows easily between living areas and bedrooms, with several spaces to relax and gather. A spacious sunroom adds additional living space filled with natural light and is ideal for year-round use. Just outside, the home also features a screened-in porch and patio, offering comfortable outdoor areas for morning coffee, quiet evenings, or entertaining.
Several key updates have already been completed, including a new water heater in 2026 and major improvements to the HVAC system in 2024, helping provide efficiency and reliability for the next owner.
Enjoy living in a well-established West Knoxville neighborhood known for its mature trees and walkable streets. Residents are within walking distance to Crestwood Hills Community Pool, a neighborhood gathering spot during the summer months. The county location also offers lower taxes, convenient access to shopping, dining, and major routes across Knoxville, making it easy to reach downtown, Oak Ridge, and surrounding areas while still enjoying the feel of a residential neighborhood.
Contact an agent
Home facts
- Year built:1977
- Listing ID #:1331771
- Added:2 day(s) ago
- Updated:March 10, 2026 at 07:29 AM
Rooms and interior
- Bedrooms:3
- Total bathrooms:2
- Full bathrooms:2
- Rooms Total:7
- Flooring:Tile
- Basement:Yes
- Basement Description:Crawl Space
- Living area:1,758 sq. ft.
Heating and cooling
- Cooling:Central Cooling
- Heating:Central, Electric
Structure and exterior
- Year built:1977
- Building area:1,758 sq. ft.
- Lot area:0.39 Acres
- Architectural Style:Traditional
- Construction Materials:Frame, Stone
Schools
- High school:Hardin Valley Academy
Utilities
- Sewer:Public Sewer
Finances and disclosures
- Price:$384,900
- Price per sq. ft.:$218.94
Features and amenities
- Amenities:Windows - Vinyl
New listings near 853 Walker Springs Rd
- New
$714,900Active4 beds 5 baths2,920 sq. ft.4427 Christine Lynnae St, Knoxville, TN 37938
MLS# 1332039Listed by: EXP REALTY, LLC - Coming Soon
$349,900Coming Soon3 beds 1 baths2324 Peachtree St, Knoxville, TN 37920
MLS# 1332015Listed by: REALTY EXECUTIVES ASSOCIATES - New
$365,000Active3 beds 2 baths1,448 sq. ft.7831 Rollen Rd, Knoxville, TN 37920
MLS# 1332017Listed by: REALTY EXECUTIVES SOUTH - New
$460,000Active3 beds 2 baths1,666 sq. ft.7025 Thomas Weaver Rd, Knoxville, TN 37938
MLS# 1332018Listed by: REMAX PREFERRED PROPERTIES, IN - Coming Soon
$435,000Coming Soon3 beds 2 baths10709 Dogwood Rd, Knoxville, TN 37931
MLS# 1332008Listed by: THE REAL ESTATE FIRM, INC. - New
$279,900Active2 beds 1 baths874 sq. ft.2000 Seminole Ave, Knoxville, TN 37915
MLS# 1332014Listed by: KNOX NATIVE REAL ESTATE - Coming Soon
$525,000Coming Soon4 beds 3 baths8512 Creek Valley Lane, Knoxville, TN 37931
MLS# 1332006Listed by: KELLER WILLIAMS SIGNATURE - New
$324,999Active4 beds 2 baths1,400 sq. ft.5515 Malachi Circle, Knoxville, TN 37918
MLS# 310580Listed by: YOUR HOME SOLD GUARANTEED REAL - New
$399,900Active2 beds 2 baths1,484 sq. ft.433 Creekview Lane, Knoxville, TN 37923
MLS# 1331994Listed by: WALLACE COMMERCIAL - New
$269,900Active2 beds 2 baths1,040 sq. ft.729 Graham Way, Knoxville, TN 37912
MLS# 1331954Listed by: ELITE REALTY