819 Mallard Drive N, Aledo, TX 76008
Local realty services provided by:CENTURY 21 Mike Bowman, Inc.
Listed by: doug beard
Office: league real estate
MLS#:21186968
Source:GDAR
Price summary
- Price:$610,000
- Price per sq. ft.:$234.62
- Monthly HOA dues:$50
About this home
Welcome to 819 Mallard Drive, a beautifully designed new construction home in the heart of Aledo, TX, where timeless craftsmanship meets modern living. This spacious residence offers 4 bedrooms, 2 and a half bathrooms, and a 2 car garage, thoughtfully laid out to provide both comfort and functionality for today’s lifestyle.
From the two story inviting entryway to the open concept living spaces, every detail of this home is designed for effortless living and entertaining. The chef’s kitchen is a true centerpiece, featuring stainless steel appliances, quartz countertops, an oversized island with seating for four to six, and custom cabinetry extending to the ceiling. A seamless flow connects the kitchen, dining, and living areas, creating an ideal space for gatherings both large and small.
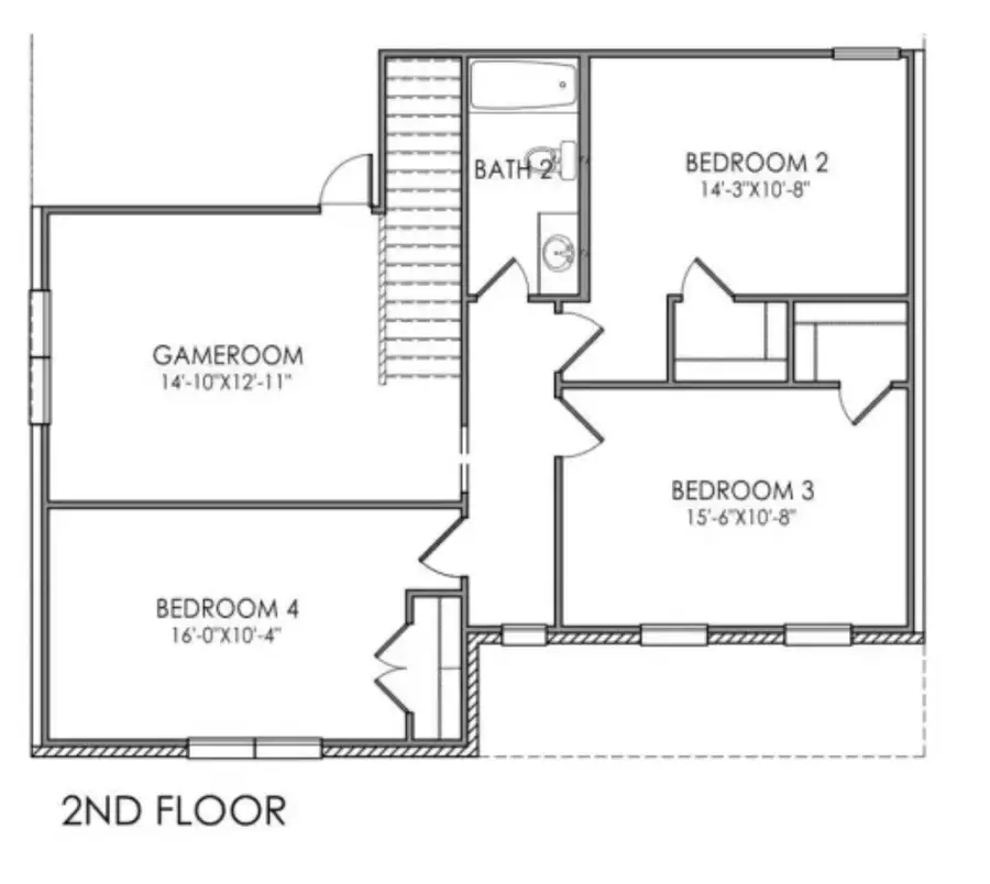
The primary suite is a luxurious retreat with a spa inspired ensuite bathroom, including dual vanities, a walk-in shower, and a spacious walk-in closet. Upstairs, you’ll find additional bedrooms, a versatile game room, and plenty of space for family or guests.
Enjoy Texas evenings on the covered patio overlooking the private backyard, perfect for outdoor dining, play, or quiet relaxation. Located in the highly acclaimed Aledo ISD and within minutes of shopping, dining, and parks, this home combines small-town charm with modern convenience.
Experience the perfect blend of style, space, and sophistication at 819 Mallard Drive is more than a home, it’s a lifestyle.
Buyer or buyers agent to verify all information....
Contact an agent
Home facts
- Year built:2026
- Listing ID #:21186968
- Added:54 day(s) ago
- Updated:April 17, 2026 at 07:21 AM
Rooms and interior
- Bedrooms:4
- Total bathrooms:3
- Full bathrooms:2
- Half bathrooms:1
- Flooring:Luxury Vinyl Plank
- Kitchen Description:Dishwasher, Disposal, Electric Cooktop, Electric Oven, Electric Range, Microwave
- Living area:2,600 sq. ft.
Structure and exterior
- Roof:Composition
- Year built:2026
- Building area:2,600 sq. ft.
- Lot area:0.18 Acres
- Lot Features:Sprinkler System, Subdivision
- Foundation Description:Slab
- Levels:2 Story
Schools
- High school:Aledo
- Middle school:McAnally
- Elementary school:Coder
Finances and disclosures
- Price:$610,000
- Price per sq. ft.:$234.62
Features and amenities
- Appliances:Dishwasher, Disposal, Electric Cooktop, Electric Oven, Electric Range, Electric Water Heater, Microwave
- Amenities:Carbon Monoxide Detectors, Fire Alarm, Security Lights, Smoke Detectors, Wireless
Parking
- Garage:Yes
- Garage spaces:2
New listings near 819 Mallard Drive N
- New
$724,900Active4 beds 3 baths2,914 sq. ft.1507 Greenleaf Court, Aledo, TX 76008
MLS# 21240313Listed by: EXP REALTY, LLC - New
$425,000Active2.49 Acres145 Feed Lot Road #RD, Aledo, TX 76008
MLS# 21241988Listed by: WILLIAMS TREW REAL ESTATE - New
$449,000Active3 beds 3 baths1,945 sq. ft.2144 Village Walk Place, Aledo, TX 76008
MLS# 21242104Listed by: VILLAGE HOMES - Open Sat, 1 to 3pmNew
$549,000Active3 beds 2 baths1,858 sq. ft.508 Sandpiper Court, Aledo, TX 76008
MLS# 21235945Listed by: LEAGUE REAL ESTATE - Open Sun, 1 to 3pmNew
$385,000Active3 beds 2 baths2,006 sq. ft.14944 Chipwood Drive, Aledo, TX 76008
MLS# 21236279Listed by: BRIGGS FREEMAN SOTHEBY'S INT'L - New
$439,990Active4 beds 3 baths2,466 sq. ft.15209 Supreme Street, Aledo, TX 76008
MLS# 21239213Listed by: HOMESUSA.COM - New
$428,990Active4 beds 3 baths2,465 sq. ft.765 Lyft Lane, Aledo, TX 76008
MLS# 21239224Listed by: HOMESUSA.COM - New
$393,490Active3 beds 2 baths2,002 sq. ft.761 Lyft Lane, Aledo, TX 76008
MLS# 21239252Listed by: HOMESUSA.COM - New
$466,490Active5 beds 4 baths2,956 sq. ft.745 Lyft Lane, Aledo, TX 76008
MLS# 21239258Listed by: HOMESUSA.COM - New
$920,000Active4 beds 4 baths3,526 sq. ft.155 Crooked Stick Lane, Aledo, TX 76008
MLS# 21235159Listed by: PRIME REALTY, LLC